中国北方的江南风情!
项目名称:碧水庄园·国翠园
当生活的步伐从外走到内,在碧水庄园·国翠园的样板空间中,设计师将细致入微的情感考量渗入居住的每一个角落。
这座中国最北的江南院子,南韵北居脱胎于南工北作的艺术理念与地域文化思考。让艺术逐渐脱离于自然转而表现人的内心,纯粹让时代重新审视创作,带来精神的平和与生活的享受。
而这一切来到居住空间,线条和色彩所构成的就是所谓“生活理想”,它揭示着一个阶层的向往。清晰利落的直线条与淡雅沉静的灰阶色,架构了最基本的精神秩序。
在此基础之上灵动的曲线与跳跃的红和金,则如静谧旷野的点点虫鸣,愈显大地之沉静。
线条之外、色彩背后,是深藏于心的安宁。“抽象”艺术在毕加索看来并不存在,他认为只不过有人强调风格,有人强调生活罢了。
置于空间之中,墙体与地面的纹理相呼应,不规则的图案打破了风格派艺术家的创作体系,却在不经意间用所谓“抽象”手法具象了现代语境下生活的艺术。
人性化设计给空间带来更多灵活性和交互感,水吧台与桌子的几何拼贴脱胎于“新造型主义”,S形对角沙发却融入了古典浪漫与极致优雅。
流动在空间当中的,不仅是视觉上的重重惊喜,更是生活里的点滴幸福。黑格尔说过,有生活阅历的人决不容许陷于抽象的非此即彼,而保持其自身于具体事物之中。绘画、雕塑、音乐……各自呈现而又通感于美,空间的艺术性丰厚到无处不在时。
对于材质的痴迷和理解,是设计师赋予整个空间最深情的诗意。
不同材质的组合服务于多变造型的层次感,金属和镜面的巧妙运用也拓宽了空间艺术的解读视角,折射与反光更赋予立体造型之外的一种时空维度。
拼贴、堆叠、融合、释放,让空间的气场不落窠臼而浑然天成。
艺术有时候只是一种幻觉,藏匿于肉眼可见的光影。
整个空间的光源通过点线面的不同形式交替呈现,正如螺旋上升的阶梯和层叠嵌套的墙壁。
流溢而出的光芒总是在不经意间打破视觉的惯性,在转角处、在抬眼时,散发出深远而温暖的柔情。
每一天的生活便都是对艺术的探寻。显然设计师知道,元素和技法、意念与表达,若置于生活之外就都毫无意义。
心归之处,既是身体休憩的空间,同样也是灵魂栖息的场域。宁静舒适的氛围营造建立在功能的多样满足之上,同时于细节之处增添了典雅的东方意境。
依据人的个性来创作空间的个性,在满足不同年龄和性格的审美需求的同时,也构建了独属于中国家庭的传统天伦之乐。空间为生活提供了一个个场景,用以承载无数个瞬间的连续性,这种连续性的背后深藏着生活最本质的奥秘。
正如你看到的那样,有人正在向艺术寻求答案,解密生活的寓言、在抽象的故事里隐世而居。这,是属于一个时代的尊荣。
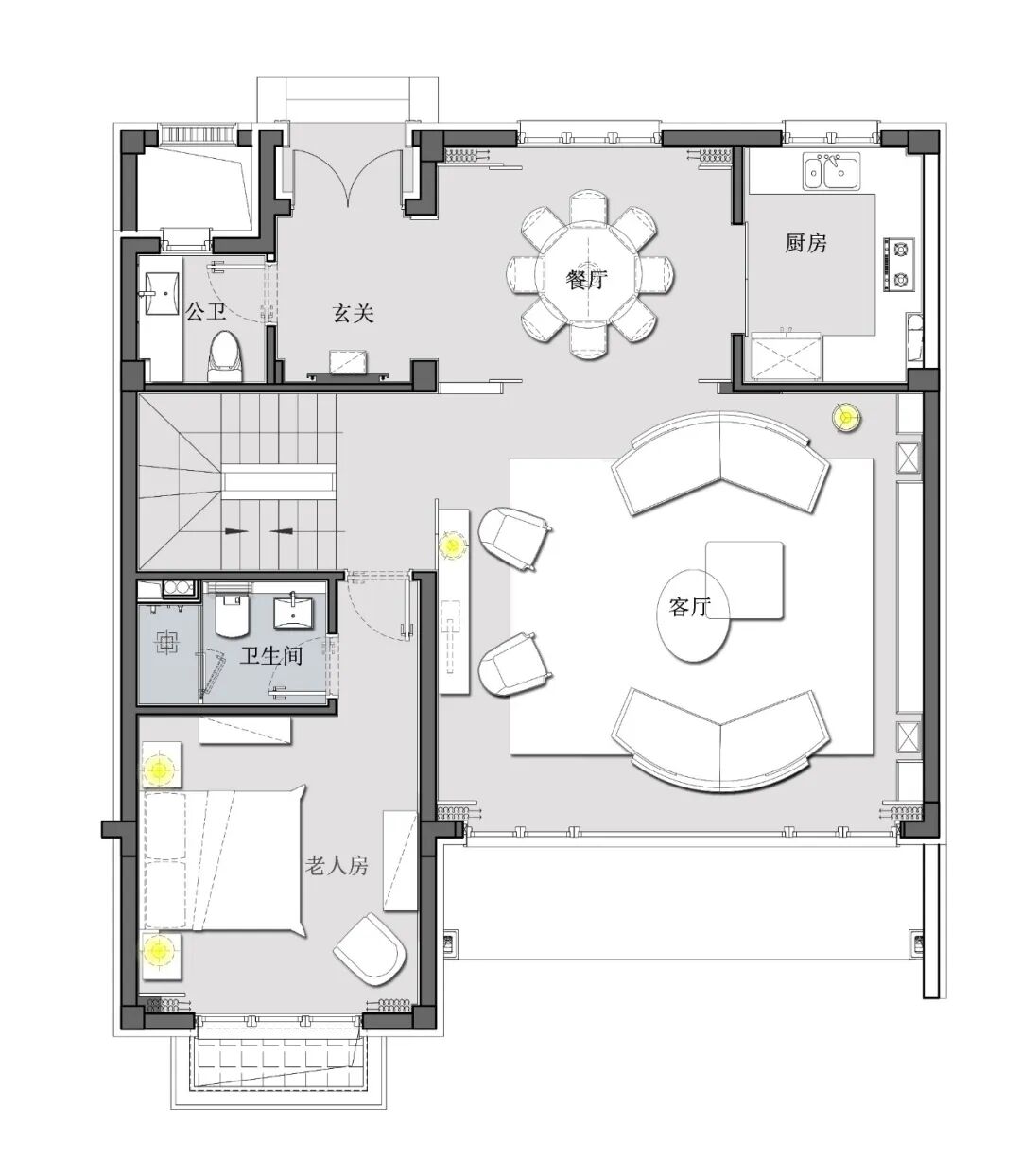
图纸呈现
1F平面图
2F平面图
夹层平面图
-1F平面图

