作品赏析|二十四·单 淮扬新味餐厅 — 全息的觉知
项目名称 | 二十四.单
项目地点 | 南京,中国
项目面积 | 1,700平方米
主要材料 | 木、涂料、石材、涂层纸
设计时间 | 2017年
项目完工 | 2018年3月
自先秦之后,中华智慧逐渐参与并深入的自然觉醒中,“二十四”冥冥之中成为一个特殊的数字,熟悉且神秘。季节二十四节气、太极二十四式、风水二十四山法…无穷变换,不离本源。这正是餐厅创始人用于思考美食制作的来源,用现代料理的方式将古老的淮扬食味重新演绎。“二十四单”的生长过程似乎并非单纯的建造,旧厂房改造、空间窄小、自然采光杂乱等都只是寻常外因,而赋予空间血肉性格,建立新的未明体验,从多维的角度,启发参与其中的人的觉知感受,是本次营造所面对的新课题。

二十四·单 淮扬新味餐厅,位于南京城南的国创园内。国创园西靠明城墙,北接内秦淮河,经由19世纪晚期的江南银元局到上世纪50年代建立的南京第二机床厂,延续了近130年的工业文脉,后经过设计和修缮,改建成了如今的文创产业基地。

主入口
入口标识
餐厅取名“二十四·单”,其中之二十四即中国传统二十四节气,意喻餐厅所采用的食材均新鲜而时令,并辅以现代的烹饪手法,赋予传统淮扬菜以新生,这也是餐厅创始人的初衷。因此,餐厅希望设计师通过对老厂房的再次改建,将品牌诉求不着痕迹地融入空间设计,为食客营造一种儒雅安心,同时又充满创意和惊喜的就餐氛围。
二十四 · 单
结构与动线

西入口门厅

西入口门厅

西入口门厅
二十四·单餐厅从平面看是一个呈东西向排布,且进深较长的矩形。其东西向各设有一个入口,主入口东临来凤街,而次入口则面向国创园内部,一东一西,一侧市井喧嚣,一侧遗世独立,形成了两个截然不同的环境氛围。

西入口门厅-咨客区

西入口门厅-交通分流
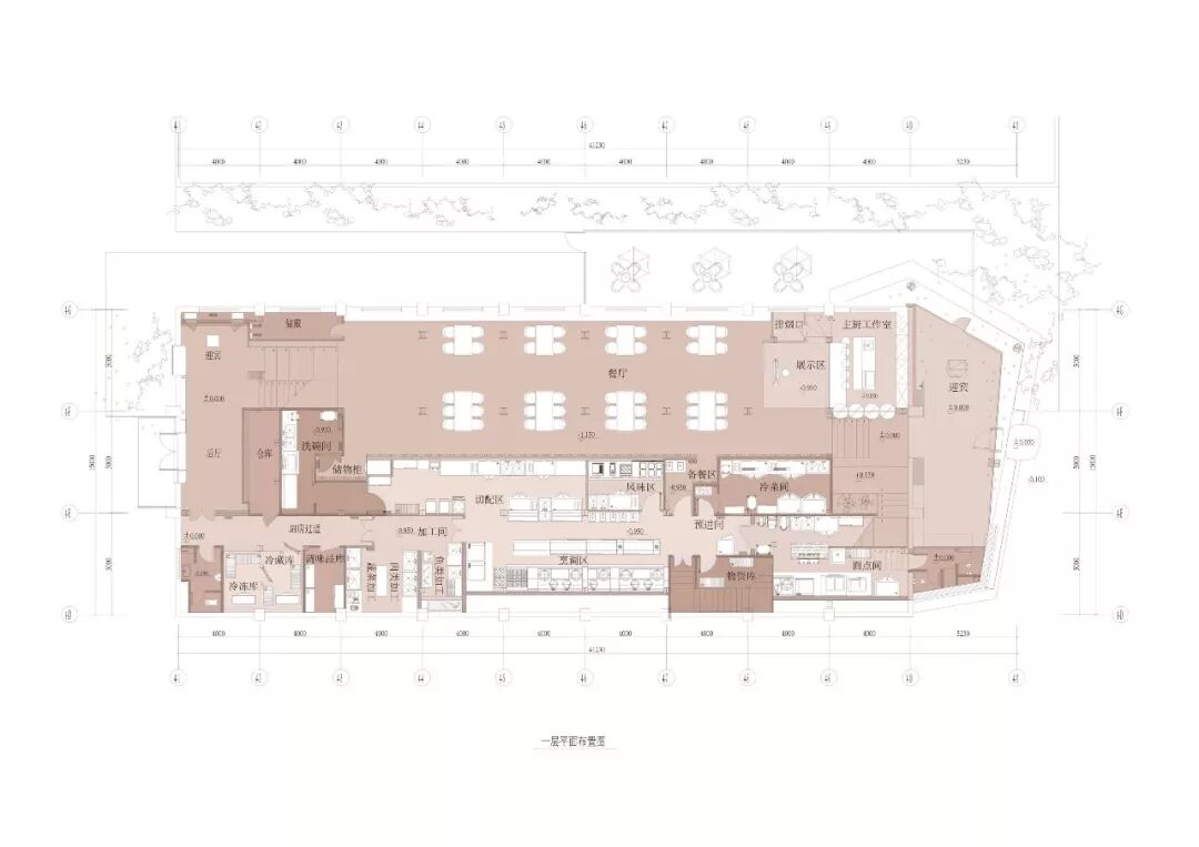
设计师将层高10m左右的单层建筑空间分割成3个部分,首层向地下借了部分层高,形成公共餐区和半开敞式厨房。二层为包厢,过道的南北两侧排布了大小不等的6个包间和1个茶室兼图书室,均以节气命名。三层则主要由办公区域,以及几个独立包间组成。

西入口门厅-书架局部

西入口门厅-交通局部

书架局部
餐厅的整个空间结构分明,功能清晰,但动线设置却十分有意思,有种误入桃花源后,仿佛阡陌交错的感觉。也正是这种交通动线的设计,不断引导着食客由最初的探索到之后豁然开朗的心境,整个过程让人很容易忘却建筑外部的喧闹,而全身心地感受并进入空间的核心。
二十四 · 单
东西入口
东西两处入口各有特点。东面主入口临街,黑色而巨大的屋檐向外伸出,下方2块巨大的原石石板和一排竹子围成的栅栏,在屋檐的庇护下形成一道自然的过渡。

东入口外立面

东入口前厅

过厅局部
东入口门厅
设计师采用大面积落地玻璃打造立面,高窄而厚重的木门右上角悬挂着并不起眼的餐厅名字。在这里,木门与玻璃立面的位置关系颇为讲究,设计师将木门位置设置在正对一层餐厅的入口处,这样一方面从街边路过的人们虽然可以透过玻璃看到前厅的别致装饰,却看不到公共餐区内部;另一方面,在引入自然光线的同时,也为餐厅保持了一定的私密性,引人一探究竟。
西面次入口则完全不同。内嵌入建筑红砖外墙的3块巨大黑色切面,将入口聚焦到中心,营造出现代工业感的同时,与精细的黄铜制logo在视觉上形成反差。
二十四 · 单
材料与细节
餐厅整体色调素雅。墙面、天花主要以白色涂料和浅色木板包覆,公共区域地面采用冷冽的深色石材铺设,而包间则选择了相对温暖的实木地板,在视觉和知觉上将功能区域自然分隔。

一层厅食单元
一层厅食单元

一层厅食单元
从主入口步入餐厅,经由前厅进入一层空间。在这个下沉式的空间内公共餐区和半开敞的厨房平行而居。设计师希望此时此刻,食客与厨房之间是一种相对独立而又相互关联的关系,大约可以通俗地被理解为视觉上“藕断丝连”。

一层厅食单元-明厨与餐台
一层厅食单元-明厨与交通
设计师采用黑色的条形钢板纵向排布,在厨房的玻璃立面上形成格栅。这样,在人行进的过程中,前进方向的格栅完全遮挡视线,而只有当停驻并正对格栅的时候才可以看到厨房内热火朝天的景象。

一层通过空间

厨师工作室

厨师工作室
公共餐区的另一侧,设计师采用了宣纸裱糊的屏风墙将杂乱的采光和斑驳的墙面阻挡在就餐空间以外。宣纸略微毛糙的表面柔和了光与影,如同一层面纱带出了场所儒雅的气质。

东入口体验区
为了将入口处的“竹林”概念从室外引入室内,设计师在门外以及前后厅处树立了许多高外不一的黑色穿孔金属管,并将灯源置于管内,以模拟出竹子的形态。当夜幕降临,灯光从金属管的孔洞中渗出,就仿佛夏夜竹林里的萤火虫在闪烁,模糊了城市乡野的界限,也带出了对自然的向往。

过厅往二层
二层咨客区

二层通过空间局部

二层品酒空间
沿厅右侧拾阶而上,到达二层私密就餐区,通道中置,两侧各为大小私密就餐单元,为促进食客快速通过,避免公区停留,黑色木饰面材质制作的轻薄界面由顶面包裹至立面,并将各单元相互串联,呈现出相对压迫且神秘的气氛,白色石材地面配合灯光序列,成为引导进入的显性指示。

二层就餐空间

二层洗手区
由通道立面设置的隐框门进入,忽然开朗之余更多的是面对隐逸环境的兴奋与自信,临窗界面依旧采用宣纸屏风将自然光线过滤并充斥空间,光线照射后的树影在某个时段内成为主角与佳肴一同演绎。




