作品赏析|七月
项目名称:七月
建成年份:2018
建筑面积:300㎡
我说春风十里,不如你
2018,初春
七月×Mur Mur Lab
我的灵魂和我如此遥远,而我的存在却如此真实
一切都在变化,没有东西会消失。一家老上海的理发店转型女子生活体验中心,业主找到我们,他期待能在这里有所突破——创造一个符合当下流行趋势,又不拘泥于既有审美范式的设计。对Mur Mur Lab来说,每一次突破,都是在面对不同人的期盼中,不断探索建筑学与建造、设计与人关系的边界。在原有边界中创造一个完整的空间,这将是一个可以自洽的设计。就好像在房间里盖一个房子。


▲场地是一个面向商业广场的三层小楼。立面像一个表情,代表着对周围的态度。而内部的空间,则可以自成一体,怡然自得。沟通是一种快速获得信息的方式,而内省是建立内部秩序体系的途径。空间,就像是在两种途径间建立起联系的空隙,和物体表达的媒介。最终的设计趋近真实的愿景,同时又希望建构一系列场景超乎想象。

▲我们说,空间像表演。自己就在演一出戏。


▲一层空间像一个浸入式的剧场,水磨石包裹的地面和墙体沉稳厚重,自成一体,让你有种向上仰望的欲望,一片天幕。它像覆盖着舞台的穹顶,微微隆起,轻轻接触,一冷一暖像在对话。





▲拱的要素既是覆盖,也是限定。在二楼,镂空的拱朝着不同的方向铺开,重重幕幕,空间像被拉开了几个层次;层层叠叠,又好似无尽。纺布是时装的展场。女朋友说,温和的曲率,柔软的包裹配上鲜花甜点,窝在这里美美的喝上一番下午茶的欲望都有了。


▲空间的表情庄重有序,又可爱的一撩,露出两个小角,是一层的橱窗。反射着天光云影,坚硬的玻璃砖呈现出帷幕般的柔软肌理。平静之下,暗藏一段空间拼贴的叙事和戏剧性的冲突。

▲未来商店是Mur Mur Lab一直在意的。而在这里,它更像是一种奇幻梦境的拼贴。空间与场地的环境,附近机场起落的轰鸣声与现状,童话和暗黑。一种魔幻非现实的感觉,一个展出梦境的未来商店。


▲灵魂和现实的距离遥远,存在也是真实的。此时,线下可能是平静的,而线上热闹非凡。还有什么,比当下片刻的宁静更重要呢?
空间用语言表达时候,总会显得苍白。直接用眼睛看见的颜色、形态,置身空间感受到的气氛、味道,体验的丰富度,在描述之下似乎都会略显不足。我想说,我们只能试图表达。

▲立面图

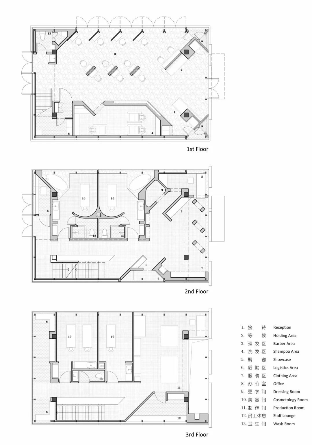
▲三层平面图

▲分析图

