作品赏析|補時咖啡与艺术空间
设计公司:拾集建筑
项目地点:中国,深圳
项目时间:2017.12
项目面积:350㎡
主材:水磨石,不锈钢,竖纹玻璃
Our time for yours, for now, for later,
for the time of our choosing
以我们的时间交换你的、此刻的、以后的、
我们想要的时刻
-- Raqs Media Collective

▲项目位于深圳蛇口海边的海上艺术中心,这座优美的白色建筑出自日本建筑大师桢文彦之手。项目拥有长达24米的建筑幕墙立面,室内设计如何与建筑优雅融洽又不失特色,这使我们在接到设计任务时无比兴奋又颇感挑战。



艺术与生活的链接
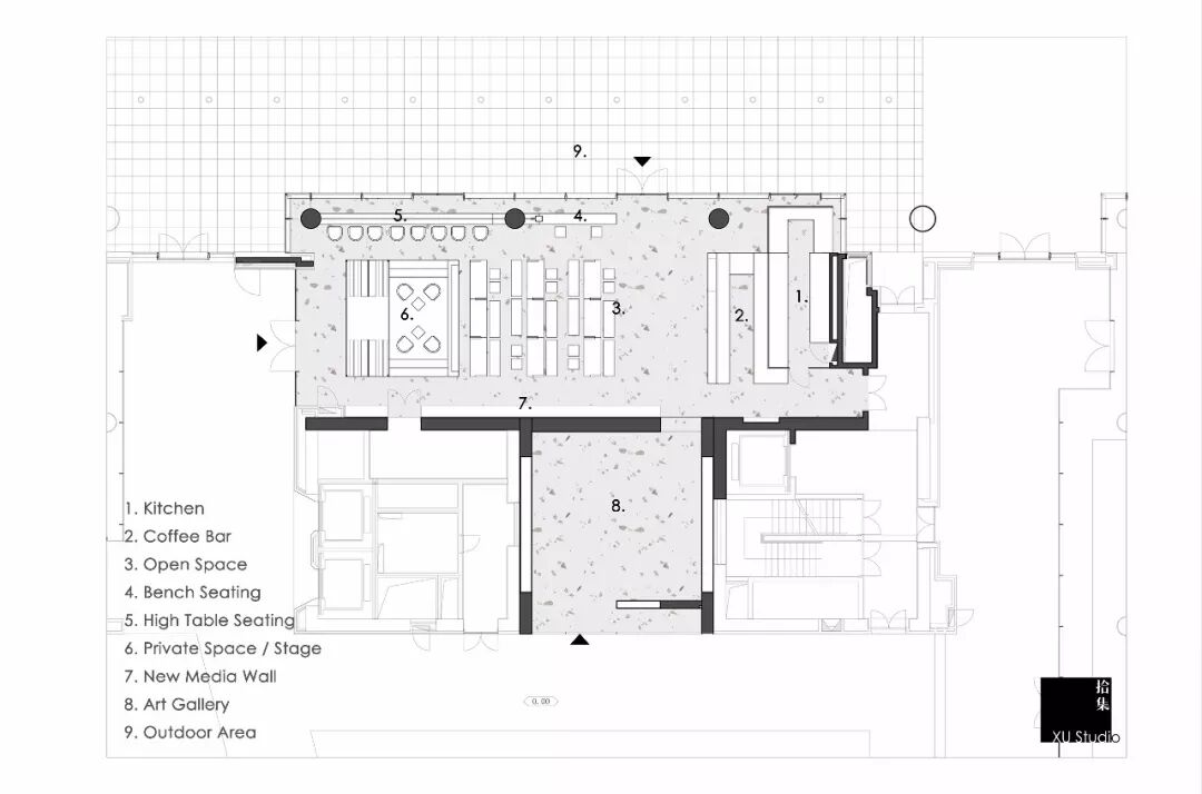
▲项目平面呈凸字形排布,我们选择沿户外靠近海岸的长条空间作为咖啡及知识分享区,凸出的方形作为艺术空间,链接海上文化中心中庭。顾客由建筑中庭进入纯白的艺术空间,户外自然光透过高而窄的弧形门洞指引顾客前往探索,穿过门洞,挑高6米的全落地窗大空间跃然眼前。


没有背景音乐的有声咖啡馆
▲区别于传统咖啡店的慵懒背景音乐,我们能听到时而磅礴时而细密的海浪声,来自于空中悬挂的艺术家作品“海浪”,这是一件通过采集世界各个海域海浪声以钢珠晃动碰撞呈现的新媒体艺术装置。侧墙面则有大型LED屏幕同步播放海域音响,给人视觉听觉的双重撞击。




▲空中悬浮着10个巨大发光圆盘,灵感来自于设计师儿时的记忆,坐在窗边看雨水打在水塘中泛起的层层涟漪,因时间的推移呈现出大小不一的圆圈,意图抓住这个瞬间与大家分享。夜色中,落地窗后的悬浮发光灯盘格外醒目,倒映在户外静水池中。

▲吧台以银色不锈钢灯带勾勒,悬吊于上方的镜面不锈钢盒子藏住各种设备同时映射出空间圆盘;厨房以半透渐变玻璃包裹形成一个发光盒子。

反连锁的连锁
▲抬高的区域以竖纹玻璃与金属网围合形成半私密空间,当场地转化为知识沙龙时,金属框架落下投影幕,抬高区域成为专家们的讲台。

▲开放式的大空间与可移动拼接的家具为运营业态带来无限可能性,咖啡餐饮、讲座沙龙、艺术展览、沉浸式戏剧表演都能一一满足。
空间与业态的随时可变、设计呈现的因地制宜是補時作为“反连锁的连锁”的重要性能,我们在補時上海第一家店便充分考虑了空间的灵活性,并因现场条件及定位需求采用不同的设计语言和手法表现。


▲XU Studio为補時海上文化中心店特别定制了Frame系列餐桌,概念来源于用最简单的金属框架支撑木桌面,通过左右5cm的错位,自然形成间隔互不干扰,又在需要时可以链接成大长桌。


▲立面图以及平面图

