明斯克:柔雅温暖,用绿植与装饰物调和空间的寂静
Buddha Apartment 是位于明斯克的一座公寓,由ZROBYM architects 的 Roman Kot 和 Alexey Korablyov 共同设计完成,考虑到房型并不是规整的方正结构,设计师们便“定制”了许多的家具,让每一处功能区都合适且实用。

▲整个空间采用灰白基调,和煦的阳光下,室内显得温暖而柔和,定制的白框隔断分隔出入户口与客厅,并保证了光线可以穿透进原先的死角区。


▲灰与白的配色尽显柔和优雅,雕刻精致的吊灯或是装饰画,都让室内充满了艺术气息,青葱的绿植成为“静”中的灵动元素,调和了空间的静谧。



▲半隔断的电视墙后方为厨餐厅,两侧的镂空保证了光线、空气的流通,也满足了屋主对通透空间的追求,靠着角落,屋主放置了一张简洁的木质工作桌,让屋主的工作多变灵活。


▲根据房屋尺寸,设计师们定制了许多的家具,甚至是衔接天花的石膏线条,都被精心处理。




▲厨餐厅被利落的线条布满,清新的色彩下,显得简洁明了,地面的花砖与墙面的装饰画,增添趣味,用餐与料理也可以感受到装饰的魅力。


▲通往卧室的过道,设计师们定制了整面的书架,书籍的封皮,为素色空间增添色彩。


▲在卧室木质地板上铺设了厚实的地毯,带来柔软也温暖的气息,木质、针织、绿植,简单的元素构成生活的美好。

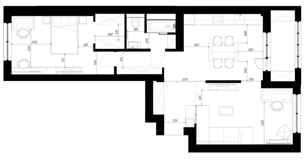
▲平面图

