“有了孩子,那就带他一起培养对工业风的审美理念”
一对热爱工业风的屋主夫妇,对于家中到来的新生命,他们做了一系列的考虑,包括:如何在同样面积中增加储物空间,如何在继续工业风的氛围中,确保满足孩子的审美以及游玩的乐趣,最终,所有的问题都被HAO Design的设计师Ivan Chen解决,改变传统的设计概念,重新架构整个功能区。


▲考虑到孩子出生后空间对储物会有越来越多的需求,设计师便尽可能多的增添室内的储物空间,入口处与混凝土墙面“融合”的灰色储物柜,解决了进出门的生活准备。

▲室内的每一处,都体现了屋主夫妇对工业风的热爱,混凝土的墙面,复古的置物柜,金属的线条,即便是孩子,也会爱上着鲜明又酷炫的风格吧!

▲隐形的移门后,是一个简单的储藏室。

▲全新的空间拆除了室内大量的隔墙,以开放式的布局让孩子可以自由玩耍,让光线与空气都尽情的流通。



▲除了隔墙外,墙面以及天花的表层也被铲除,直接的裸露,让空间拥有工业风的利落与硬朗,并通过人字形拼贴的木质地板,平衡空间的氛围。

▲阳台的植物墙、充沛的光线,可以尽情的洒入室内,为工业气息增添活力与生机,屋主夫妇的审美并没有因为孩子的到来而改变,而是配合孩子一起,培养共同的审美,可以是硬朗利落的,也可以是优雅质感的。




▲主卧延续了公共空间的风格,但同时,在冷硬的工业风中加入了柔软的织品,带来温暖与舒适的触感,蓝色,是静谧,是优雅,也是一种追求精致的生活态度。


▲与卧室相连的小隔间,定制了整面的衣柜,木元素与黄铜的搭配下,优雅且质感。



▲整个儿童房就像一个童趣十足的游乐场,浅蓝的墙面,定制的家具,兼具了睡眠以及储物、玩耍的需求。

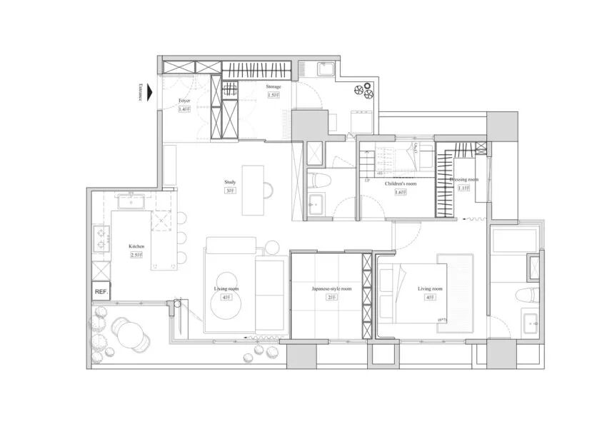
▲平面图

