这样装简单又温馨
今天我给大家带来的案例虽然面积不大,但是依然可以在有限的空间中打造出日常所需的各种功能。给有需要的朋友们,做些参考~
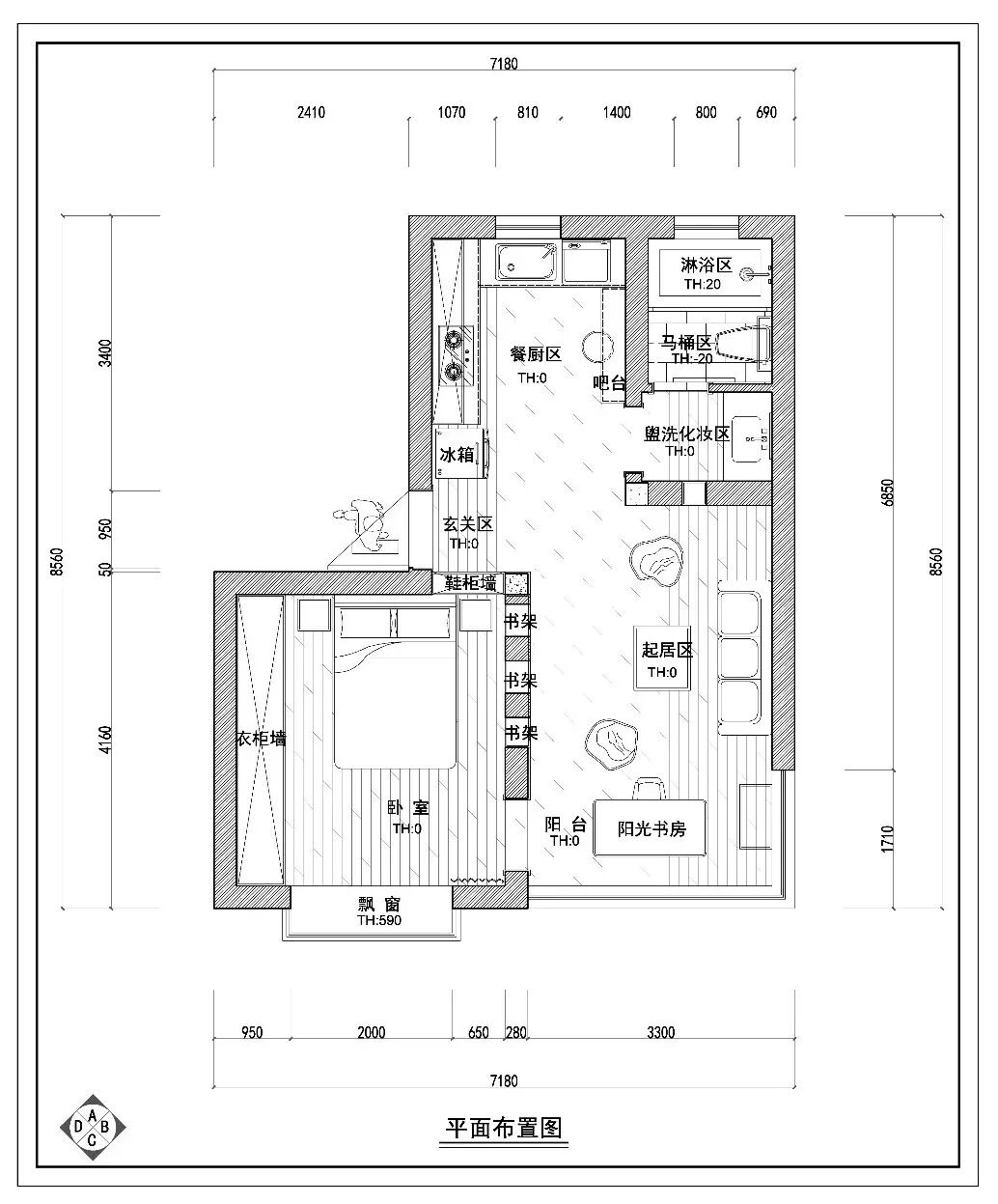
平面布置图

玄关

▲一进门就是各个空间的交汇处,没有独立的玄关,动线交集,省下了动线空间;

▲进门的左侧是厨房,小房子的厨房面积不大,不过也能满足基本的下厨需求,冰箱在鞋柜对面,默默的解决了没有玄关的问题;
厨房



▲厨房操作台后方有一块悬空的吧台隔板,做饭的时候空间不够可以放些碗盘在这里,当然,做完饭直接坐这里吃饭就行了;
卫生间

▲把卫生间的洗手台设计在门外,上面挂着圆形镜子,木质感的装修搭配着白色文化砖,十分文艺;


▲卫生间的墙砖和地砖选择了同种颜色,让整个空间的整体性变得更强了;


▲为让空间的光线共享,在洗手盆与客厅之间的墙面上,留空出一个小洞共享光线;
活动区

▲从玄关进门的右侧是个活动区域,其中包含了客厅、书房等功能;

▲这面卧室和客厅之间的墙被装成了书架,可以放上一些喜欢的书;



▲把沙发和书桌都放在这,虽然有些紧凑,但还是很实用的;

▲沙发墙装上置物隔板,摆上自己喜欢的装饰画,可以提升整体的格调;
书桌


▲书房设置在家里阳光最好的地方,保证采光;



▲精致的装饰品,也让空间显得多了几分文艺的气息;
卧室


▲把卧室的一侧墙面装成衣柜,提供了强大的衣服收纳空间;

▲与客厅之间的这面墙,都是半空的书架,让空间透而不空的感觉,很大方;

▲壁挂式的床头柜,还有一盏床头灯,小巧实用;


▲精心布置的小飘窗,在午后也是晒太阳的好地方。

