当高级灰遇上精致工业风

精致工业风
Exquisite Industrial Style
说起工业风,就会想到“黑白灰”、“砖墙”、“裸露管线”等串联起来的酷劲十足的印象。但这些并不是工业风的全部,今天小编就分享一个精致优雅的工业风美宅,给大家看看工业风这个“硬汉”,也是可以温婉多情的。
以金色勾勒都会丛林中的淡淡巧寓
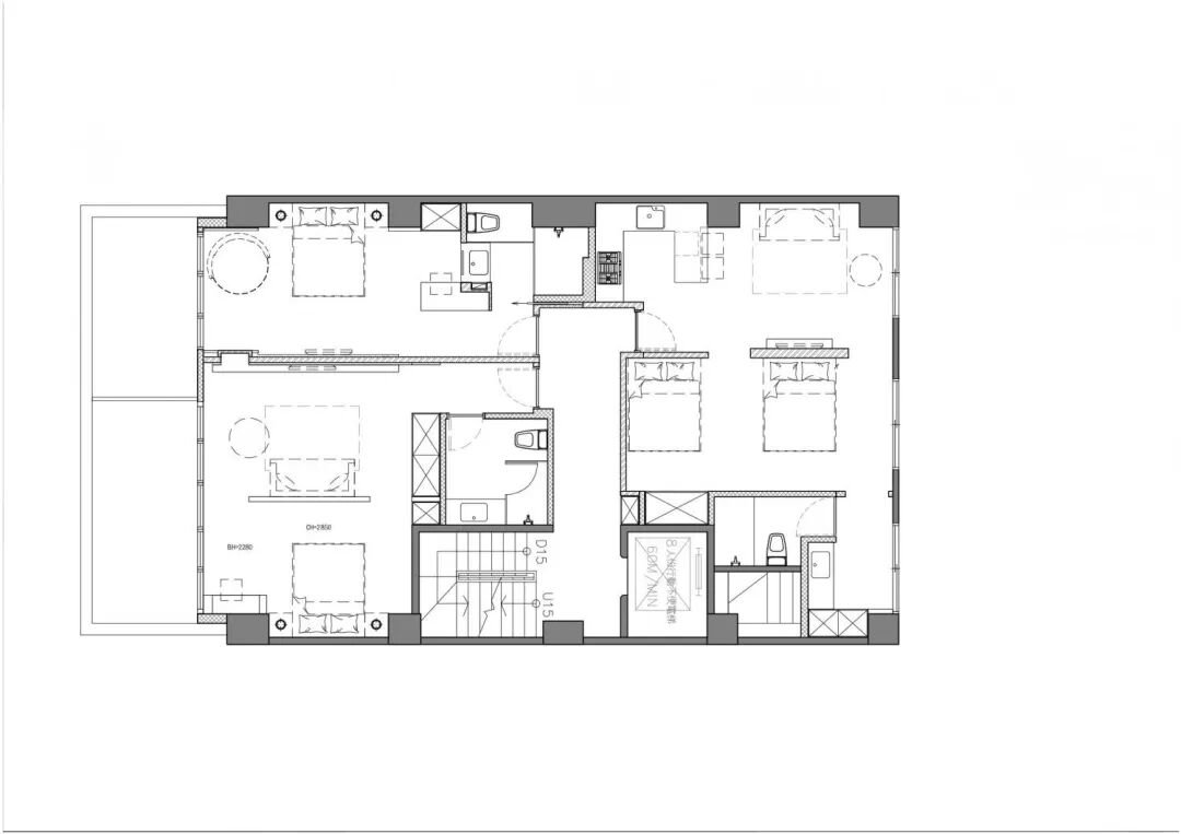
设计公司:和和设计
空间坪数:45坪
房屋格局:3房
房屋类型:单层
房屋状况:老屋翻新
业主想要…
1. 将作为民宿使用
2. 希望呈现柔和优雅风格
Before:
「身在都会丛林内,我们常觉得周遭纷纷扰扰、十分繁忙,因此打造都会感住宅时除了在设计上会较俐落简洁之外,我也会希望加点休闲的元素,让人回到家里能得以放松,得到片刻歇息。」和和设计总监简嘉仪说道。

在这间位于城市里由老屋改造的民宿,屋主希望打造让旅客宛如回到自己家中的自在居所。和和设计以女性视角出发,以柔和优雅作为空间主调,将室内隔出三个套房,分别为家庭房、两人大套房与两人房。墙面漆上仿清水模特殊漆料呈现简约干净的风格,并搭配人字拼地板提升空间暖度,而每个房间则各施以湖水绿、粉红、蓝色跳色区隔所属氛围,最后再以金色系的灯具、边桌、茶几勾勒空间线条画龙点睛。而卫浴延续室内干净简洁的风格,但改以黑色五金增添中性性格也让空间个性更有层次。

客厅设计
在家庭式套房内,入口玄关侧设置吧台满足房客煮食需求,而双人大套房内则以藤编屏风区隔起居空间与卧房,并让视觉通透放大空间感受。




卧房设计
卧室空间延续墙面漆上仿清水模特殊漆料呈现简约干净的风格并弱化房内梁柱,而人字拼木地板则提升空间暖度,最后运用整面的镜面门片放大空间视觉感受。








卫浴设计
卫浴延续室内干净简洁的风格,但改以黑色五金增添中性性格也让空间更有层次,壁面将瓷砖人字拼贴也与房内木地板相呼应成为亮点。


细节设计
民宿内的三个房间各施以湖水绿、粉红、蓝色跳色区隔所属氛围,并以金色系的茶几、吊灯、壁灯、边桌勾勒空间质感。




After
「如果能重来,希望能将卫浴家具升级,让空间使用更为舒适,同时休闲感受也能因此更突出。」和和设计总监简嘉仪K. CHIEN
刚中带柔的工业美宅




























设计公司:和和设计
空间坪数:32坪
房屋格局:2房
房屋类型:单层
房屋状况:老屋翻新

