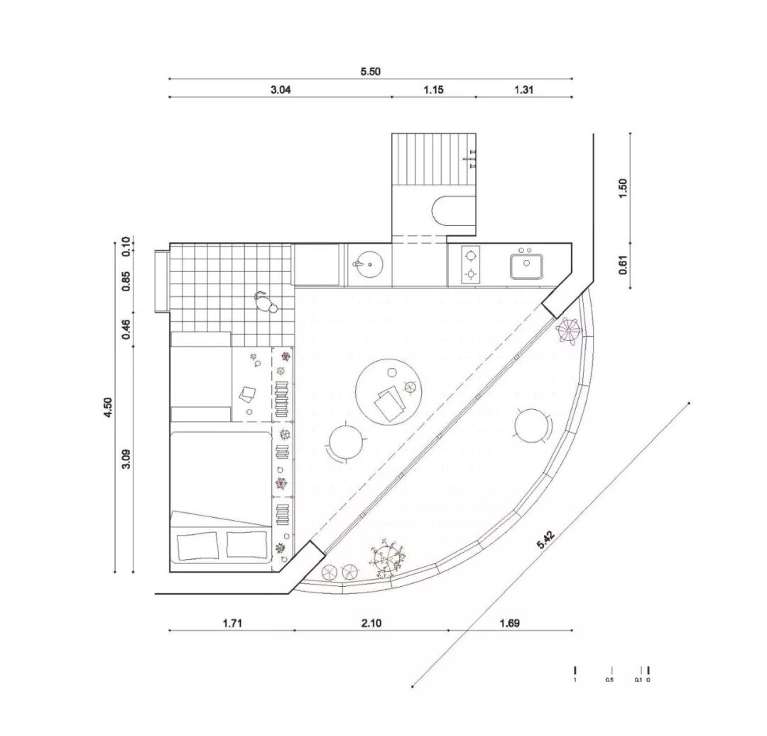
18平的小公寓 | 原木纯白极简范儿
这套公寓是阿根廷建筑师IR arquitectura最近重新设计的,是上世纪50年代在布宜诺斯艾利斯Chacarita社区建造的房产的一部分。它占据了一层“ochava”,也就是建筑一楼的一个角落,可以俯瞰下面的街道。
就像所有独特的“微小”设计一样,它能够在不影响空间感和宜居性的前提下,将很多东西融入其中。
整个“白色”中庭的效果通过增加玻璃天花板来增强,让光线和附近树梢的远景同时进入。
从外部看,阳台——包裹在精致的白色波浪状穿孔结构中——既异想天开又完全现代。
毫无疑问,这个小公寓的空间感通过增加这7平方米的空间得到了加强,从街道一侧的立面上可以看到它所有的白色波浪形的阳台。
● ● ●

