混搭复式——150平混搭小复式 美术系业主的家

▲ 建筑面积150平,女主学美术出身,有一定美学基础,与设计师一起打造赋有个人风格的住宅,木色矮鞋柜与换鞋凳打造入户区

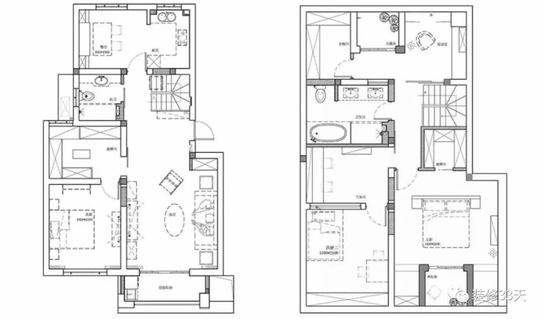
▲ 平面布置图

▲ 


▲ 


▲ 


▲ 


▲ 


▲ 


▲ 


▲ 


▲ 


▲ 


▲ 


▲ 


▲ 


▲ 


▲ 


▲ 


▲ 


▲ 


▲ 


▲ 



上一篇:混搭时尚——130平混搭时尚三室 多元素跳色浪漫美居
下一篇:复古美式——130平复古美式混搭 不规则入户功能多