北欧——108平纯净北欧三室 雕花石膏添精致度

▲ 使用面积108平,半包造价16万,对老房翻新,业主希望在轻松的环境下陪伴女儿成长,入户端景简约清新

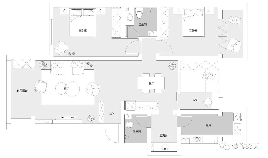
▲ 平面布置图

▲ 透过中部留空的隔断鞋柜,望入公领域空间,整体宽敞明亮,视野采光俱佳

▲ 通体大气的白色乳胶漆墙面,用精致的石膏线勾勒天花造型,一盏分子灯呈现简约气质

▲ 客厅休闲一隅,开放式书架下方设计储物柜,选择高级灰乳胶漆点缀白色墙面

▲ 电视背景墙左侧,采用黑色,原木色,绿色,三色碰撞,平衡和谐,充满生机

▲ 白色文化石铺贴背景,搭配同色调层板,放置可爱绿植,打造充满自然气息的休闲阳台

▲ 餐厅木色与白色的搭配与客厅风格保持一致,使用通透的白色谷仓门作书房与餐厅的隔断,不影响空间采光且美观实用

▲ 餐厅添置餐边柜,既满足平常家庭收纳需求,又增添生活气息

▲ 厨房人字拼地面与立面不同的拼贴方式,起空间上的划分作用,灰蓝色定制橱柜增添色彩的美感

▲ 书房采用榻榻米加衣柜的形式,让收纳与舒适度共存

▲ 次卧利用阳台设计成地台休闲区,增加抽屉收纳,满足实用性

▲ 主卧同样延续白色乳胶漆墙面点缀雕花石膏线,原木家具,黑白软装,金色元素装点出精致感

▲ 卫生间干湿分区,六边形拼色地砖,搭配深灰色半墙瓷砖与防潮乳胶漆,黄铜墙镜,提亮小空间

▲ 卫生间实用爵士白花纹,搭配黑色工字竖拼,黑白搭配呈现经典

▲ 软装配置参考
▲ 软装配置参考

