玄关左侧就是厨房,厨房内采用绿色哑光烤漆门板呼应主题,配的金色把手带来一丝复古质感,照明由轨道射灯提供,非常适合长条形的狭窄空间。


从玄关往里走,就进入了餐厅。重新规划后的布局,空间动线非常流畅。

圆形餐桌造型十分优雅,搭配定制颜色的七号椅带来一丝中古时髦感。十分有设计感的花瓶搭配和自然风格插花,再次呼应了丛林主题。

巨幅像素拼图装饰画增加空间的趣味性,也让整个客餐厅显得更大气。

很多出租屋通常只能满足短期租住的需求,缺少日常生活所需的功能性和实用性,但设计师看中了这套屋子的潜质,欣然接下这个任务,打造出一套比普通住房,更美更实用的森系小屋。

为了让空间更加开阔,原本的三房改为两房,虽然房间变少,但每户人家的需求不一样,屋主希望有一个比较开阔的客厅,以及容纳多人聚会的公共空间。希望卫生间和客厅区域舒服,因为平常只有两个人居住使用,卧室房间够用即可。

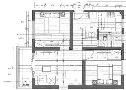
户型面积:75㎡
整体费用:20W

▲平面户型图
改造提示:
这套房子原本户型是三个卧室加一个过道客厅,房门都开在外边的厅;设计师在格局上做了修改,改为两室一厅,把原过道厅改为卫生间的干区,厨房变为开放式,将原来有阳台的主卧变为客厅,两个卧室门都改在厅里,这样原来的过道更加开阔,并且让客厅的功能得以更好地发挥。且卧室门从原过道移入室内,不对入户门,更加私密。

推门就是满眼作为主题的水绿色,墙面采用古典装饰木线条,搭配干净清爽的爵士白大理石瓷砖,营造优雅时髦的感觉。

进门的过道做为卫生间的干区,同时又充当了玄关的功能,对步入客厅起到一个缓冲作用,圆形吊镜作为装饰又兼具功能性。



玄关左侧就是厨房,厨房内采用绿色哑光烤漆门板呼应主题,配的金色把手带来一丝复古质感,照明由轨道射灯提供,非常适合长条形的狭窄空间。


从玄关往里走,就进入了餐厅。重新规划后的布局,空间动线非常流畅。

圆形餐桌造型十分优雅,搭配定制颜色的七号椅带来一丝中古时髦感。十分有设计感的花瓶搭配和自然风格插花,再次呼应了丛林主题。

巨幅像素拼图装饰画增加空间的趣味性,也让整个客餐厅显得更大气。


客厅的沙发背景墙使用颜色饱和度较低的粉橙色乳胶漆,因为饱和度较低不会和绿色主题产生违和感。丝绒沙发提升了空间的高级感,棉麻质地的宜家平织地毯带来一丝自然感。

客厅内统一采用了细腿元素,让整个空间更加通透。

原木小边几和平织地毯,羊绒盖毯的搭配营造舒适自然的质感。

复古绿窗帘和橙色灯罩搭配很时髦


舒适惬意的阳台一角,可作为客厅向户外的延伸,丝绒椅和大理石茶几的搭配时髦现代,白色窗纱前的一抹绿色格外清新悦目。


主卧的壁纸,将我们迅速带入丛林的感觉中,枫糖橙的窗帘和床头呼应着丛林蜜意的大主题,也为沉静清凉的绿意中注入一丝活泼和温暖。

大理石吊灯增加高级感,猫头鹰首饰盘趣味十足。

床头不对称的床头灯设计非常流行,一边是吊灯另一边是落地灯,虽然造型不一样,但通过控制色彩和外形,一样能在视觉上取得一种和谐对称的效果。

次卧采用了褐色的墙面,能营造出一种大地和泥土的感觉,窗帘用了和墙面接近的一种黄褐色,丝绒材质加上灯光的折射呈现出一种金色的质感,将略显沉闷的墙进行了提亮。

漂浮的球形灯是这个房间的亮点,平添了几分浪漫主义的气氛。


卫生间里用一面大尺寸的镜子是个不错的选择,狭小的空间在视觉上得以延伸,同时也非常实用。

绿色墙面搭配金色五金,颇具个性的黑色复古马桶盖,都营造出一种有情调的精致感 。

市面上金色五金有很多,但要注意挑选所有五金的色彩,保持金色的统一不要有太大色差,否则会给高级感打折。

合理利用房型进行改造,不仅可以给生活留下更多使用空间,也为空间美化留出无限想象。
