515㎡现代别墅,繁华之上、简而不凡!

家的轮廓存在于每个人心中,或温馨精致,或个性鲜明,风格迥异,但有一共通性,所有人都无法否定,家必定舒适自在。换言之,使人身心得到放松的设计才是塑造完美居所的重要前提。
设计理念
如何才能随心所欲地创造自己梦想中的家、梦想中的生活,并且丝毫不被已有的条条框框所制约?此次设计以人为本,意在打造家居生活与设计空间融合互通,缺一不可的独特场所,让艺术在创作中实现人工与自然的交融,在浸润中绘出跳跃的未来蓝图,以塑造视觉艺术的隽永之美。
一层客厅

生活就是一个又一个的细节,处处留心,皆是生机和感动。一个舒适的家,可以让我们享受城市之外,只属于家的宁静与欢愉。

客厅充分利用空间自身的采光,致力于优化空间的个性化与舒适度,以流畅的空间叙事设计手法将业主在空间内所有的生活轨迹完整、细致地呈现出来。空间中材质与颜色的呼应让家融为一体,为“感受”赋予可能。

客厅保持理性而精简的装饰,强调一种简练的高级感,尽量不增加多余无用的装置,打造简约而不简单的高级质感。

材质与材质之间进行艺术上的碰撞,擦出别致的生活氛围,色调上以中性色为主,保持整体空间氛围的沉稳。

沙发背后高挑的铁艺置物架,在墙面分割出不同尺寸的几何轮廓,且镂空式设计降低了高度带来的压抑感,更显轻盈。

电视白色背景墙清新、淡雅,天生自带高级感,与客厅整体氛围统一和谐。

权衡客厅整体空间的氛围感,这里加入了碳钢悬吊壁炉,仿真火焰更注重环保。设计单品的点缀则以艺术的审美视角诠释高雅的生活情趣。



空间的软装搭配会考虑到不同角度的审美,在物品的挑选中讲究造型搭配,再用各种元素穿插其中,展现空间质感。
一层餐厅

对于分区的界定,不再仅仅局限既定的格局性,更多的思考其动线的贯穿及空间趣味性的梳理,本套案例以通透的黑框玻璃让客餐厅保证独立的同时,也可以发生日常的联系……

餐厅延续了整体的简约优雅,强调一种简练的高级感。圆形吊灯优雅垂落,将餐厅简约到了极致,与餐厅菱形地砖形成呼应,统一和谐,照亮一方天地。

餐桌上的盆栽吐露新嫩的枝叶,在空间里注入浪漫的灵魂,带给人眼前一亮的新鲜。

餐厅增设西厨吧台和社交厨房的概念。中西合璧,体现着空间豪宅气质,更流露出主人高雅的生活格调。生活的仪式感由此展开。无论是在家中开趴还是独自小酌,一个吧台就可以将人从日复一日的枯燥中拯救出来。
楼梯
THE STAIRS

楼梯是视觉的焦点,好的楼梯设计一定是豪宅空间的点睛之笔。设计时遵循、安全、美观、舒适、实用的原则展开,可以成为空间中的艺术品之一。



原木色的台阶在白的映衬下略显强烈,仿佛使你跳脱出这种白的单调,但又踏入了原始的自然,让整个家都有一种惬意的舒适感,没有过多繁琐的造型却营造出会呼吸的居家生活空间。

二层起居室

这样的生活场景,是忙碌工作的享受,是感受独处的一方,是情感维系的场域,而窗外的景色与光影是生活最好的映射。

二楼起居室以简练的白墙,原木色的地板为底,搭配以灰色现代布艺沙发来点缀,简约中是柔和悠远的意蕴。
二层父母房

二层部分则为父母房空间及儿子房的私领域空间,循着原木色的楼梯,营造丰盈气质的轻雅风格,独立而静谧。


父母房延续了主基调,使得空间调性具有连贯感与简洁美。床靠背景墙以灰色打底,辅以原木色家具和白色床品,为房间注入温馨舒适的感觉。

三层主卧

主卧的状态,呈现着一家之主的形象与仪式感,品质和使用状态的呈现,代表了现代舒适居家生活的最高表达。

主卧延续整体空间氛围,以原木色和白为主调,原木地板配衬纯白色床品,营造悠然娴雅的氛围。静穆的艺术气质与细腻的感情于其中悄然生发,点亮居住者的精神世界。

阳光透过窗户倾泻下来,最舒适的莫过于那抹慵懒。岁月的痕迹也随着时间的流逝慢慢开始加深,在这个空间可以暂时抹去烦恼,放空自己 。
卫生间

双台盆、落地浴缸、独立淋浴间和独立马桶间,简洁、现代的空间因为有尺寸的加持获得了极大的舒适体验。
三层书房

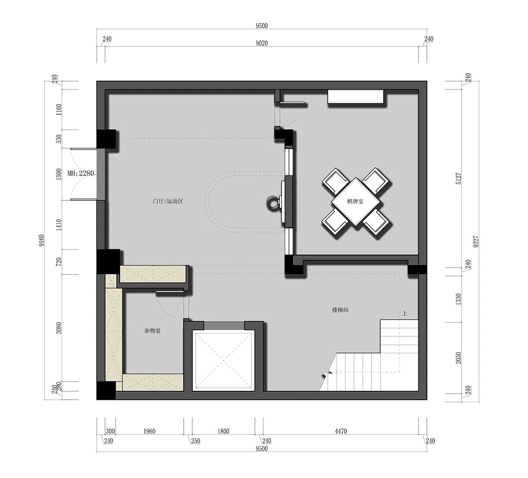
地下室


生活是一场进行中的美学。设计不仅要满足人们的视觉审美,更要完善使用者对于居家享受的追求。

地下室多功能的复合布局让空间价值实现最大化,在不同分区的的顺畅流转中,自然的气韵自由穿梭,释放美感与层次。


此外,设计师藉由精致细腻的陈设、冷暖相融的材质、明暗有序的组合,以期呈现集品质、艺术、舒适为一体的轻奢生活方式,表达年轻一代的活力与自我空间的建设,带着各自不同的特性与喜好。


同样简约的家居配饰打造精致与舒适并存的休闲区域,在兼容并蓄、张弛有度中与自然形成对话,重新定义设计与生活的关系,成为屋主艺术个性的低调表达。

平面布置
△地下室一层
△三层平面图

