超美的流行色别墅设计,简雅有范儿!
雅致东方

本案设计精心打造“山隐之下,悠然自得”的中式宜居环境,汲取现代独特前卫的审美意趣,融合中式传统文化精髓,运用多样化的设计手法,采用2020年年度流行色“经典蓝”和诸多艺术家作品,缔造一个优雅闲适,乐山乐水的“隐”居环境。
2F-客厅

空间色以2020年流行的经典“蓝”作为主题色,在情感和心理的角度上,蓝色能让人感觉平静和可靠,让人产生信赖感,在中式意蕴中重新赋予经典蓝丰富的现代涵义。

客厅为两层挑空空间,尺度上的把控给予空间更多的舒适性,使得身处其中的人获得精神与心理上的放松。硬装简洁的线条,干净的底色,它描述了山隐之下的东方哲学远离都市不被喧嚣琐事烦扰,又不违背自然初心,领略清幽雅致。





茶几上青花瓷器和其他蓝色摆件,汲取东方雅致意趣,将温婉优雅、精致极简暗藏于内,独领东方式美学风雅。

在日光交错中的敦实拓印和其下微微着尘的卷帙,连同月色下微光摇曳的古老烛台,也着力再现起居空间的中式典雅和考究。



客厅左侧三宅一生的折叠灯具,艺术加诸特殊纸张的成果,在展开之前触感细腻柔和,伸张开来却立体动感,线条硬朗。依傍移门引入的日光月色,擅长与光影对话。它将光明与阴影恰如其分地平衡,是独特而美妙的灯饰工艺。

远处,蓝色的灯挂椅,形成尺度上的视觉中心,旧时寓意“步步高升”的老物件,被设计师披上流行的色彩,新与旧的对比成为独特的艺术风格。
2F-餐厨




餐厅空间与西厨岛台相邻,原木色餐桌与灰色绒布餐椅满足主人会友宴请宾客:日常早春,友人,清茶,几盘时令鲜菜,人间有味是清欢。




3F4F-卧室


左侧花艺罐颜色深沉如墨,与灵动的花艺形成鲜明的对比,仿佛主人凭窗而望,将室外的一抹绿意蔓延于室内。

床背板上的挂画如皓月当空,而靠窗一侧的盆栽则描摹出“明月松间照”的画面来。床榻周围有轩窗对镜,工艺考究的琉璃夜灯,手工藤编收纳篮及刺绣团扇,琉璃吊灯补足了较暗端的光线,近窗的那端则可“收四时之烂漫”。



床对面的简约现代艺术画作,具有中式趣味的青花瓷器,以及精巧的小桌案,以点带面丰富了简约大气的卧房空间。辅以日式回流瓶、拓印和摇椅,勾勒出一幅主人借室内一番景色洗去一身浮躁,留一份安宁于内心,悠然自得的闲逸之心。

豆蔻花梢二月初,年少即须臾




剑道、男子气、传统儒学



虽然属于竞技类运动,剑道却是培养谋略的御心之术。正如房间墙壁所挂“不动心”的题字,彰显了居所主人对教育尤其是对男孩身心发展的超前见解。
竹影婆娑,气韵灵动

老人房注重场所精神的营造,删繁就简,摒除过多复杂、陈旧的元素,用自然景观“竹”的艺术化装饰背景墙,竹影婆娑间,秀逸有神韵,纤细柔美, 老人晚年淡泊且气节高雅的的心境于空间、于每一处物件,都得以体现。

一幅摊开的画卷置于桌面,与墙面的书法作品,桌面的蚕丝灯,描摹出一幅人间日常画面。
1F-书房/品茶区


书画室以淡雅的杏牙黄为主色调,空间中的书桌以亚克力作底,摊开的画卷描摹了四季万物之色,气韵生动而不失大家风范。遥相呼应的是两个桌前圆木凳与背后的卷轴画。桌边左侧的黑白墨色花瓶与芦苇的搭配也更添野趣与闲适。
主人椅具备历史感,古朴造型更添稳重,和桌前的四脚方凳呼应,斑驳痕迹依然留存在凳面,新与旧的传承与延续体现在每一处物件之中。


身为文人雅士,必修的技能不过“四艺”,书画室供主人琴棋书画,被赋予抒发志趣味和荡涤心灵的意义,在这里既无丝竹乱耳,亦无案牍劳形,所作所为全然遵从内心。这里是家中书卷气的汇聚之处,也是令子女耳濡目染的家族精神之核心。





图纸呈现

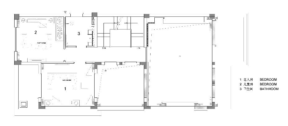
1F平面布置图

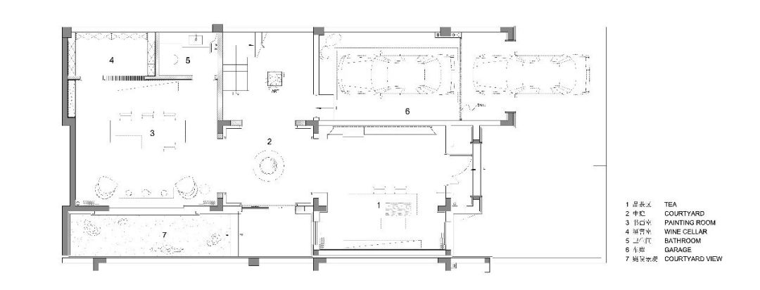
2F平面布置图

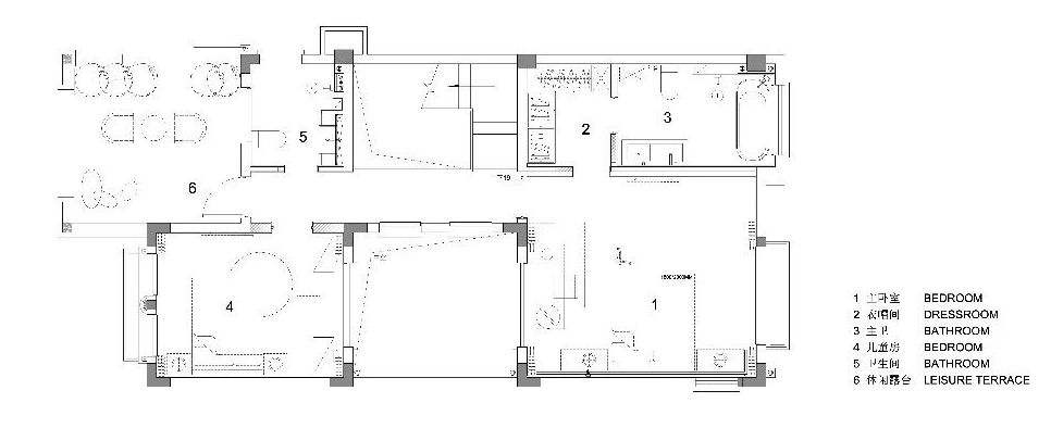
3F平面布置图

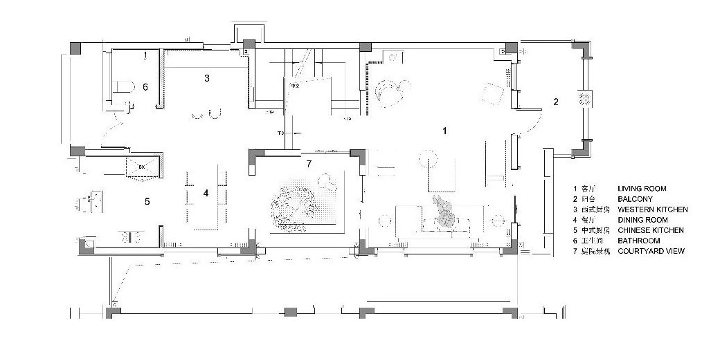
4F平面布置图
● ● ●

