住宅每间房合理尺寸一览表,对业主、设计师都实用!
每套住宅均是由各种不同功能的房间组成的,每种房间的开间进深均有个合理尺寸,每种房间尺寸合理是户型设计达到不同户型要求的基本保证。目前市场上的主流高层产品:“经济型”、“舒适型”、“享受型”这3类户型设计,这里分享专题中主要以“经济型”户型设计合理尺寸进行论述。

入门区
主要指入门玄关即门厅的设计,玄关原指佛教的入道之门,现在泛指厅堂的外门,也就是居室入口的一个区域 ,避免房间一览无余。
(1)玄关设计的三要素:鞋柜,衣柜,对景墙;
(2)对于小户型,玄关不需要占太大面积,一般宽度在1200mm。放置800-1000mm宽,300mm左右深鞋柜足以。

注:鞋柜宽
500-1500mm,深 300mm左右,高 900-1300mm
起居室
起居室是家庭群体生活的主要活动空间,包含门厅、客厅、餐厅。现在狭义上一般主要指客厅。
客厅是家庭的中心枢纽,是家人或家人与亲友共享的沟通、交往、休憩、娱乐空间。客厅的尺寸主要是根据沙发、茶几摆放和电视视距的考虑。

(1)经济型户型客厅面积最小在10㎡以上.;
(2)进深方向考虑三人沙发及一组单人沙发,至少大于3000mm;
(3)同时需考虑视觉效果,目前市场电视观看视觉为屏幕对角线3倍,以普通40英寸电视为例,合理视距为3000mm,除去沙发及电视与墙距离,净开间尺寸在3300mm。

三人沙发长度深度分别为1700~2400mm,800m-900mm;双人沙发长度、深度分别1300~1600mm单人沙发长度、深度600~900mm,
850~950mm;电视柜深度400~600mm,常见的茶几长1000m~1400m,宽400~800mm,方形1200~1400mm。
餐厨区
即餐厅+厨房,餐厅是日常进食的主要场所,每套户型都应该设置独立的进餐空间。餐厅的设置方式主要有三种:独立餐室、客厅兼餐室、厨房兼餐室。

a.经济型的餐厅:使用面积6㎡以上;
b.餐厅的空间尺寸:需要考虑座登和人同行的活动空间:人通行宽760mm,人座位占用宽520mm;c.可靠墙布局,靠墙面最小尺寸3000mm。
注:4-6人餐桌一般长度1000-1400mm,宽度600-1000mm
厨房的设计除考虑人体和家具的尺寸外,还应考虑家具的活动便捷、操作方便。
此外,厨房主要分为操作厨房(K型厨房)、餐室厨房(DK型厨房)、起居餐室厨房(LDK型厨房)3类,厨房布局形式包括I型 、L型、U型、II型 、岛型。经济型厨房主要考虑I型、L型厨房,其余占用面积较大时不利于操作台布局。
(1)I型厨房系列
这类两点一线式厨房最适用于狭长的房间。占用面积较小,要想达到理想效果,一面墙不能短于3000mm。I型厨房储存中心的最小净宽要求1500mm以上,最小净长3000mm左右,经济型户型厨房操作台最小尺寸2100mm。

其他:冰箱宽:580-630mm,双开门900mm;水槽宽:770-820mm;灶台宽:700-750mm 微波炉宽:480-520mm。
(2)L型厨房系列
这类厨房的橱柜沿着两面相邻的墙布置,非常适用而高效,舒适型厨房中较为实用,L型厨房的最小净宽要求1800mm以上,最小净长3000mm以上。

卫生间
卫生间作为家庭的洗理中心,是每个人生活中不可缺少的一部分。一个完整的卫生间,应具备入厕、洗漱、沐浴、更衣、化妆,以及洗理用品的贮藏等功能。
(1)座便器所占的面积为370x600mm;悬挂式洗面盆占用的面积为500x700mm,圆柱式洗面盆占用的面积400x600mm;正方形淋浴间的面积为900x900mm。

(2)浴缸
a.浴缸的标准面积为1500-1800×700mm,三角形1200-1500*1200-1500。
b.具体到安装上,浴缸与对面墙之间的距离最好有1000mm,想要在周围活动的话这是个合理的距离。
c.浴缸和其他墙面或物品之间至少要有600mm的距离。

d.安装一个洗面盆,并能方便的使用,需要的空间至少为900×1050mm,这个尺寸适用于中等大小的洗面盆,并能容下一个人在旁边洗漱。
e.那么两个洁具之间应该预留200mm,这个距离包括座便器和洗面盆之间或者洁具和墙壁之间的距离。
阳台
景观阳台:一般在1.5-1.8m以上,做健身房在1.8m以上
生活阳台:1.3-1.5m,方便设置洗衣区域,摆放洗衣机后0.7-0.8m活动空间

书房
书房主要考虑书架、书桌和休闲沙发的摆放,无需摆放大床,设计尺寸并非较为严格。经济型可将赠送房间及较小房间设计为书房,或者与儿童房间结合。
书房:5㎡

经济实用书房主要考虑办公桌及书架设计,另外可增加休闲区域,一般5㎡左右房间即可布局。
从家具考虑:电脑桌:长800-1200mm,宽480-620mm;书架:宽600-2100mm,宽较为灵活,深240-280mm;双人沙发:宽1200-1700mm,深600-900mm。
次卧
经济型次卧主要考虑儿童房间布局、单人或者双人次卧。家具摆放无需较为复杂,根据不同使用功能,合理尺寸不同。

经济型次卧受面积控制,单人次卧可考虑只放置床及衣橱,面积在6-8㎡之间。单人床:长2000mm-2020mm,宽1200-1220mm;床头柜:宽450-600mm;衣橱:深550-600mm;门:宽900mm。
(1)儿童房:7.2㎡

对于经济型次卧儿童房布局,考虑到电脑及书架,衣橱等,在面积受限制下:开间最小净尺寸可≥2400mm;进深方向可≥3000mm。
具体尺寸:①单人床:长2000mm-2020mm,宽1200-1220mm;②衣橱:深550-600mm;门:宽900mm;③书架:深240-280mm;④电脑桌:宽800-1400mm,深480-620mm;⑤座椅:宽450-650mm,深450-600mm。
(2)双人次卧:9㎡

双人次卧,增加一定舒适性及实用功能,卧室净开间尺寸≥3000mm,可设置梳妆台;进深方向减少一个床头柜,增加活动空间,进深净尺寸≥3000mm。
具体尺寸:①双人床:长2000mm-2020mm,宽1500-1520mm;②衣橱:深550-600mm;③门:宽900mm;④梳妆台:800-1200mm,深400-550mm;⑤座椅:宽550-650mm,深450-600mm;⑥床头柜500-600mm。
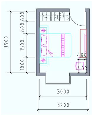
主卧
经济型主卧考虑床榻和更衣区,以及影视功能。
(1)主卧:10㎡以上

从家具方面考虑:
①净宽:床长度2000mm+卧室门1000mm,开间≥3000mm;
②进深:床宽1500mm+床头柜1200mm+衣橱600m,尺寸≥3300m
③从影视方面考虑,市场34-37寸液晶电视合理视距在2600mm-2850mm,结合建筑设计《必须遵循建筑模数协调统一标准》以300mm、600mm…作为水平模数,所以要求主卧开间在3000mm以上。
④其他尺寸:双人床:长2000mm-2020mm,宽1500-1520mm;衣橱:深550-600mm;门:宽900mm;床头柜500-600mm;电视柜:宽600-2400mm,深400-600mm。
(2)净进深增加到3900mm以上,可设置梳妆台800-1200mm宽,人的活动空间加大。

从家具方面考虑:
①双人床:长2000mm-2020mm,宽1500-1520mm;②衣橱:深550-600mm;③门:宽900mm;④床头柜500-600mm;⑤梳妆台:800-1200mm,深400-550mm;⑥座椅:宽550-650mm,深450-600m;⑦电视柜:宽600-2400mm,深400-600mm。
经济型户型各功能房间指标小结(套内面积)



