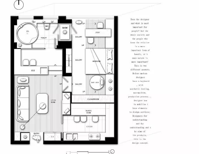
“好户型”的布局,做到这几点就够了!!

什么才是好房子,住起来舒适的房子就是好房子,作为设计来说,如何设计出让客户喜欢的好房子,先来从整体上说总结有以下几方面。
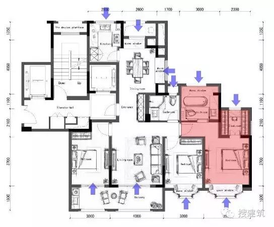
一、户型方正 南北通透 全明户型
① 为什么说到好户型时就会说南北通透呢,南北通透的户型有什么优点:
1、采光效果好,即使是阴天屋内也不会过于暗。
2、通风效果好,空气形成对流快,有利于促进室内空气循环,保持干燥。
3、冬暖夏凉,南面的房间更能吸收到阳光,朝北的房间清凉一些,自然冷热的交叉循环。
4、私密性强,居室能够散布在南北两头,房间与房间之间互不交叉搅扰。
5、视界多样,南北通透的房子能够看到不同朝向的景色,视界广阔。

全屋南北通透,十大采光面,连套房式主卧做到了让人惊讶的南北通透全明。
② 方正的房子整体利用率高,拐角多会白白浪费不少空间,看起来面积好像很大,住起来却觉得地方不够用,所以方正的房子是最理想的,可以让使用面积最大化。

整体户型方正,三开间均朝南,保证了采光和通透性,中规中矩,属于经典户型。
二、大面宽 短进深
所谓面宽,指的是房屋东西墙面之间的宽度尺寸,而进深则是指与面宽垂直方向的深度尺寸。大面宽短进深是比较适当的空间设计,这样的设计可以加大屋内的采光,舒适度更强。



四开间朝南户型,南向更多阳光。
三、功能分区合理、布局合理
功能分区合理、动静分区:动区是活动较为频繁的区域,应靠近入户门设,如客厅、厨房、餐厅等;静区主要供居住者休息,相对比较安静,应该布置在户型内侧,如卧室、书房等。两者应该分离,减少相互之间的干扰。
布局合理:厨房与餐厅的距离要近,方便厨房操作人与用餐人的交流;卧室与卫生间的距离要近,方便晚上使用洗手间等等。

·
那么,对于室内设计师来说
怎样的平面布局才算好设计?
1、对位与均衡
原则要点:对位是指平面中所有的构件,墙体,家具的对位关系,能对齐的尽量对齐,新手常犯的错误也在这里,所以空间显得凌乱。 均衡是平面布局的一大原则,讲究的是空间布局的匀称,避免出现那边很拥挤,那边很空荡。
应用技巧:对位可以是居中对位也可以是居左或者居右,但对位要讲究,不可不考虑,会让人感觉空间不简练,动线不流畅。

图中的虚线基本都是对位辅助线

平面布局不均衡的例子,左松右紧,上松下紧
2、比例与尺度
原则要点:圣奥古斯丁说:“美是各部分的适当比例,再加一种悦目的颜色。”比例是物与物的相比,表明各种相对面间的相对度量关系,在美学中,最经典的比例分配莫过于“黄金分割”了;尺度是物与人(或其他易识别的不变要素)之间相比,不需涉及具体尺寸,完全凭感觉上的印象来把握。
应用技巧:比例是理性的、具体的,尺度是感性的、抽象的。如果你没有特别的偏好,不妨就用1:0.618的完美比例来划居室空间吧,这会是一个非常讨巧的办法。例如这间根据“比例与尺度”原则营建的院落。墙体、窗户的长宽比例符合黄金分割。梯形棚架与长条桌的相似,在一定尺度上改善了空间距离,让窗外的景色仿佛近了许多。

本可以摆放大一号的家具,比如沙发,却选择错了,让空间显得小气

尺度与比例合理的平面布局
3、主从与重点
原则要点:当主角和配角关系很明确时,心理也会安定下来。如果两者的关系模糊,便会令人无所适从,所以主从关系是家居布置中需要考虑的基本因素之一。在居室装饰中,视觉中心是极其重要的,人的注意范围一定要有一个中心点,这样才能造成主次分明的层次美感,这个视觉中心就是布置上的重点。
应用技巧:明确地表示出主从关系是很正统的布局方法;对某一部分的强调,可打破全局的单调感,使整个居室变得有朝气。但视觉中心有一个就足够了,就如一颗石子丢进平静的水面,产生一波一波的涟漪,自会惹人遐思。这间客厅的“石子”就是那个花枝招展、流光溢彩、独一无二的吊灯!如果多放一、两盏的话,整体美感就会荡然无存。

这个案例里的主卧室就很气派,其他空间就有弱化,这就是主次。
平面布局还有很多要点,比如优化户型本身条件,提高空间的使用率,满足住户的需求,如两居改三居,三居该四居等等,专业级的设计师,在平面方案阶段已经思考到立面与空间的统一与呼应了。

