196㎡ 狭长户型,这样设计简单又温馨


房子朝东,开放式的设计
最大化的增加了室内采光
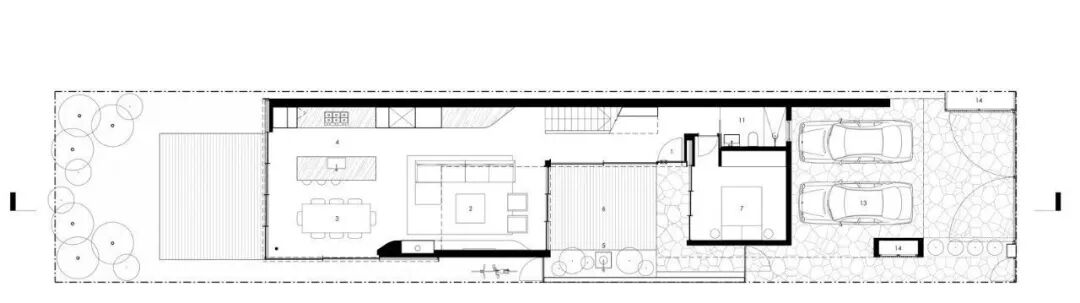
一层住宅内部被庭院划分成两个结构
与上层的人行道相互连接

▲设计模型
▲剖面图



▲平面图
一楼是,整个空间呈长条形
以白色为主原木为辅的色调来搭配
灰色的沙发、木质茶几、编制地毯
极简风装修,质感爆棚

白色的砖墙做为电视背景
底下用水泥做成电视柜
与一旁的壁炉相连
形成一个整体


开放式的厨房拥有大量的橱柜
满足了各种储物需求
灰色大理石挡板在白色橱柜的衬托下格外显眼
在加上暖色调的木地板和高脚凳的衬托下
注入自然温馨的气息

客厅与厨房之间没有明确的划分
白色的橱柜延伸到楼梯口
成为客厅沙发的背景
尽头的弧形设计,带有曲线韵律
使整体看起来不那么死板


起居室连接着一个小露台
大面积的落地窗
将大量的采光引入室内
同时也映衬了窗外自然、生动的绿植景观


将木条换成了石块
做为庭院与老人房之间的过度
也有防滑的作用

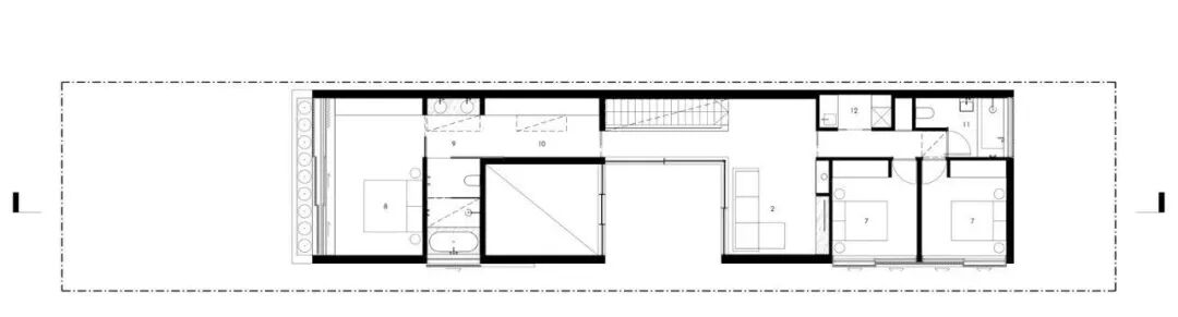
上层的私人空间
有一间主卧,两间次卧


主卧大面积的窗户
为室内带来良好的视野和采光
利用格栅和窗帘来保证私密性
卫生间的设计
同样是白色+原木的搭配设计
双洗漱台方便两个同时使用
大理石材质的天然纹理
在简约的空间里显得更加高级


淋浴区的墙壁用大理石瓷砖铺贴
以玻璃做隔断
顶部和墙面还开了方形窗口
将窗外的美景引入
让洗澡也变为一种享受


建筑外观▼



