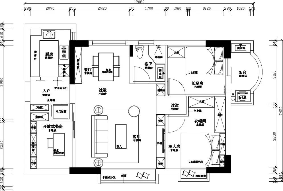
开放书房与客卧随意切换 97平简约三室
▼

▲ 使用面积97平,入户落尘区铺贴拼色六角砖,设置黑框玻璃移门与厨房隔断,同时保障玄关采光和通透性

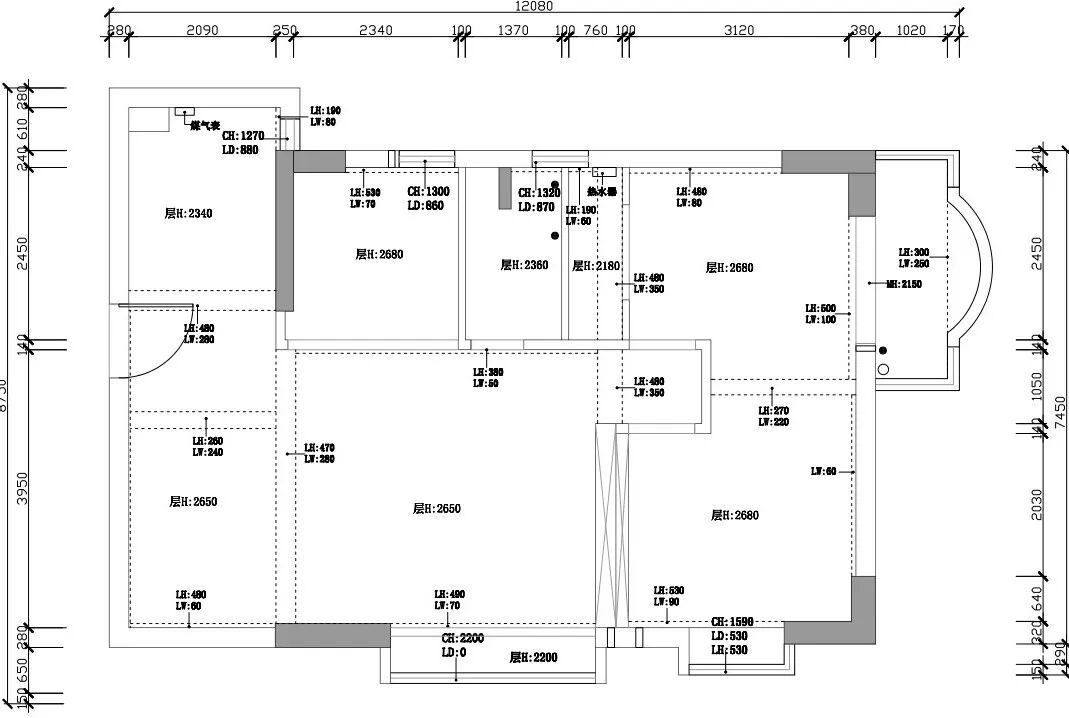
▲ 原始结构图

▲ 平面布置图(把原本书房与餐厅位置互换,既扩大餐厅区域,也把客餐厅形成相互对流的状态,增加通风采光度)

▲ 靠墙设计置顶鞋柜,中部留空并预留插座,方便后期增设电子设备,一侧留出双开门冰箱位置,解放厨房空间

▲ 经过玄关,客餐厅相连,南北通透、采光充足,以过道做自然分割

▲ 客厅,木纹砖加铺大张地毯,极简顶面点缀组合吊灯,沙发背后是可开放可独立的书房,可以满足空间的多样化需求

▲ 以白色为基调,木色家具作为点缀,整个空间温馨而舒适

▲ 靠窗设计卡座式沙发,可作休憩一角,底部可用于储物

▲ 定制整面收纳型电视背景墙,提高客厅储物能力,白+木的设计增添层次感

▲ 客厅望向餐厅视角,顶部嵌入灯带制造出悬浮效果

▲ 餐厅,地面延续木纹砖,北欧风餐桌椅搭配留白墙面修饰色彩装饰画,清爽简约

▲ 靠墙设置大面积定制柜,满足餐边收纳,中部留空,花砖铺贴背景并预留插座,打造西厨区域,体现业主对生活情调的小追求

▲ 柜体一侧设计开放格,可作摆件装饰区

▲ 厨房,将2.5米L型格局变成5米U型格局,大大增加操作台面及收纳空间,地面铺贴木纹砖呼应橱柜,使视觉更加整体

▲ 半开放式书房,将墨菲床、储物柜、书柜三者结合到一体,需要时拉上移门与窗帘,可作客卧使用

▲ 利用转角位置设计隔板书架,提高空间利用率

▲ 老人房,将床靠墙放置,床尾设计顶天立地收纳柜,留出宽敞的L形走道,黑框玻璃门外是阳台空间

▲ 弧形阳台,木纹砖墙地一体,预留出洗衣机与洗衣池位置(平面图上可以看到洗衣池位置),顶部设计晾衣架,既是观景台又是生活阳台

▲ 主卧,延续白+木基调,用吊灯、窗帘、地毯为空间添彩,打造出清新自然的舒眠环境

▲ 定制1.8m榻榻米延伸设计床头背景收纳柜与L型量体,墙面内侧设置全身镜,满足日常换衣的基本需求

▲ 留白墙面点缀北欧风壁灯,开关设计在抬手就能碰到的地方,方便实用

▲ 卫生间,墙地面通铺灰色石纹砖,成品浴室柜与半开放式镜柜解放台面空间,干净整洁

