神奇的30㎡复式小屋!“柜门”后的空间竟然这么能“装”!
户主个人比较注重生活的简单精致
房屋采用独特的入室结构
应用收纳柜原理
将房子各个功能收入“衣柜”
完全避免了小户型的杂乱感
整个设计化腐朽为神奇
给人意想不到的惊喜
玄关平面图↓

由于该房子地理位置特殊
入门口设置在上方
出入交通才会更加方便

入门后的玄关
铺上地毯、置一个换鞋凳
特别舒适方便
左侧墙壁镶嵌木板
可以悬挂衣物
也不用担心弄脏墙壁

走下楼梯才是生活空间
站在这里无法窥见房子全貌
恰巧避免了私人空间直面玄关的尴尬
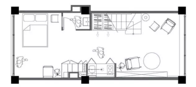
设计图↓


粗略的一看
30㎡的复式房子的大致情况
似乎尽收眼底
其实,里面暗藏玄机

先看看台阶下的空间
看似平淡无奇
似乎只是个普通的收纳柜
其实里面颇为神奇~
噔噔噔噔~↓

用抽拉式的衣柜设置
方便主人精心挑选衣物
三种高度的收纳柜
可以根据衣物尺寸、功能不同
分类放置,整齐美观

不仅可以悬挂大衣西服
下面的抽屉也可以放置领带内衣
这俨然是一个“高级衣帽间”
简直化腐朽为神奇
也为房子节省了大量的空间

而另一边的大“柜门”
一丝不苟、十分整齐利索
但聪明的你们应该猜测到
它一定不像表面那样老实

铛铛铛~
惊不惊喜!意不意外!
一半是个正常的收纳柜
用于收纳杂物
另一半成了个简单精巧小厨房

黑色迷你的圆柱形抽油烟机
一层简单的置物架
可以摆放陈列各种调料瓶
右侧放置碗碟
下方的洗碗池也是设计的十分合理
看到这样精致的小厨房
不得不让我遐想
男主着实是个有品位又懂得生活的人
小编不由少女心泛滥
想嫁~~

客厅空间布置简单
尽量宽敞也注重功能性

占据整面墙壁的实木色的书柜
不仅拥有大的容纳量
在外观上也十分的惹眼
腾出了足够的空间
供业主与同事朋友在家小聚

直线式的空间规划
让客厅和卧室的光线
直达房子的每个地方
令光线十分充足

这是浴室吗?
美的让小编有种进入太空舱的错觉

极简的洗浴设备
搭配洁白的浴室
更是体现了户主成功男士的精简和品味

从浴室看向卧室
有没有被这个角度炫到?
好的设计总会带来惊喜

灰白色系的卧室
搭配简易的床头柜
简约舒适
床头柜上放上一束干花
为这灰白色系增添一丝生机

卧室光线充沛
一觉醒来
看着洒下的阳光
也让人有充足的动力
为一天的工作努力奋斗~


卧室竟还有个小“衣柜”
显然!已经有了功能强大的“衣帽间”
再在房间放衣柜已经没必要了
设计师当然也不会犯这样的错误
那么,它一定另有玄机↓

原来是卫生间~
这栋房子真的到处都充满了惊喜
别样的装修与设计
增加了房屋的层次感与艺术感
真的让小编
不服都不行呀~
^_^哈哈

