为什么深色调更显高级?

越深色,越雅致
Darker and more elegant
常言道,浅色显轻盈,深色显气质深色在空间上,能让居室显得宁静雅致,高贵大气
深色系并非沉闷晦涩,别样的搭配,另有一番令人舒畅的设计感受。低调奢华,极具品味,越深色越显气质。今天给大家带来两个来自CARTELLE DESIGN的案例。
圣彼得堡109㎡公寓
CARTELLE DESIGN

Cartelle Design 是一家位于圣彼得堡的室内设计工作室,这间 109㎡的3室公寓是为一个4口之家打造的,内饰设计以时尚、现代为主,糅合了天然材质与几何线条。
玄关地板以深色哑光
地砖铺设,与客餐厅区域做出区分
左侧墙面规划挂衣架和鞋柜
宽大镜面加深空间开阔立体的视觉感
并以书籍与摆饰品凝聚目光焦点
为空间注入优雅品味
宽敞的起居室是公寓
中心,开放式的格局奠定明亮的空间感
以木色、白色筑起温暖舒压的氛围
并点缀些许黑色与沉稳靛蓝

人字拼橡木地板赋予
温暖的天然气氛,宽敞的芥黄沙发
与蓝色墙壁形成撞色对比
一浅一深的织物茶几搭配出高压质感
背景墙使用混凝土板
和天然木质镶木窗框相互映衬
塑造明晰视觉焦点
将飘窗打造成电脑桌
为主人提供明亮的办公区域
厨房区域采用深色调
木质餐桌穿插在黑色大理石台面,形成中岛
不仅呼应了哑光黑色的一体式橱柜
深浅色与异种材质的搭配堆叠
出独特个性的空间场景
大理石防溅板中部
设计有置物架,间接照明塑造层次感
主卧带衣帽间和淋浴间
采用勃艮第红点缀简约的白色区域
筑起透亮气息,天然木材延续
公共空间的柔和色系
自然纹理的大理石
背景墙提升质感,隐藏式灯带
结合顶部黑色吊灯,形成
非比寻常的漫射光感
兼具立体感与收纳性的吊顶
装有空调,仿佛入住饭店般令人放松自在
暗紫色墙面创造静谧氛围
透过天花板的间接照明营造出
空间的温柔感,令实木
长桌显得优雅温润
因房主有衣物收纳需求
在卧室特别规划有步入式衣帽间
以兼具通透感与隐蔽性的茶色玻璃构筑
内部空间依据衣物收纳需求
量身定做多种收纳柜
儿童房采用中性色调
大面积原木引入明亮暖光,模糊了
墙面与地板的界限,让房间尽可能宽敞
以创造更多活动游戏的空间
在设计这间儿童房时
设计师以「纯净的墙面」为基础
减少不必要的装饰和结构
这样孩子们就可以自由地表达
自己、发挥创造力
高低床一旁的楼梯
兼具功能性与材质拼接的设计感
赋予空间活泼的气息
主卧淋浴间以石材为主
珍珠白大理石与质感粗糙的黑色
墙面形成强烈对比,镜面
与茶色玻璃展现出空间的深度
与之相对的,客用浴室
色彩鲜艳,勃艮第红营造出
优雅高贵的氛围,黑白分明的色块
将洗手台与淋浴动线融为一体
镜子背后的灯带
散发出舒适温暖的光线
设计:Cartelle Design
地点:俄罗斯圣彼得堡
面积:109㎡
莫斯科136㎡轻工业风住宅
CARTELLE DESIGN
这是一对年轻夫妇家
位于俄罗斯联邦莫斯科,面积为 136㎡
由 Cartelle Design 设计
以混凝土、木材和金属等元素装饰
营造出温馨而严谨的氛围

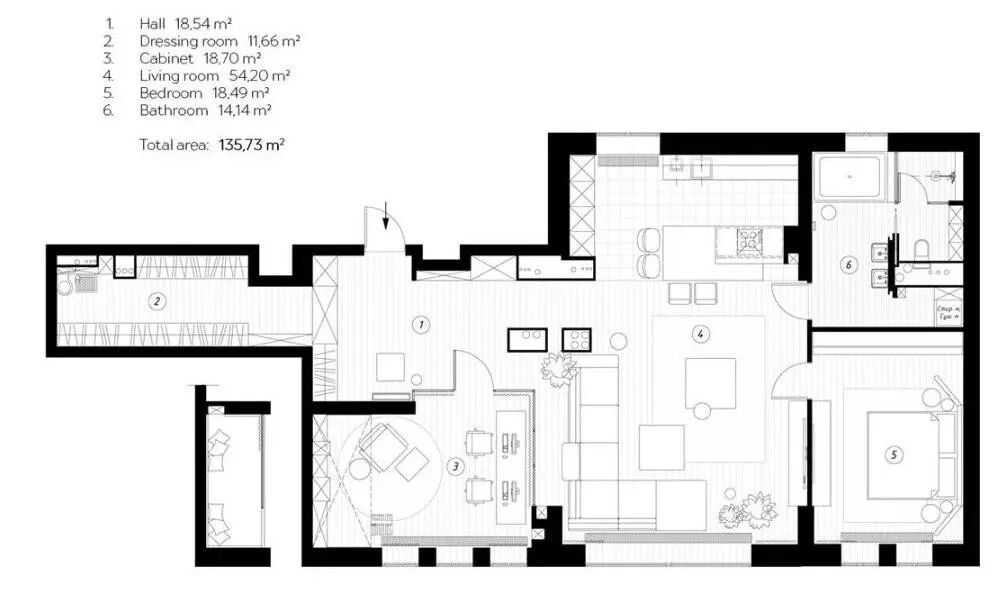
▲平面图
进门就是 18.54㎡ 的玄关
设计师将功能性与美观结合在此
一整排的储物柜满足大量的储物需求
柜门后还隐藏了一个 11.6㎡ 的储物间
看起来也一点不显凌乱
沙发凳、落地灯、穿衣镜
以简洁的视觉效果打造出超时尚前卫的感觉
离玄关最进的是书房
面积为 18.7㎡
为了保证空间的开阔性和采光
设计师采用玻璃做墙
内部有纱帘,需要安静工作时可以拉上
变为独立办公区域
新布局的家拥有一个宽敞的生活区
总面积为 54.2㎡
以白、灰、黑的配色为主
加上木材的自然感和纺织品的明亮色调
显得舒适又大气
黑色的背景墙利用线条纹理装饰
既有视觉延伸感又拉升了空间高度
顶部在加上灯带渲染
使得整个背景墙更加富有层次
沙发选择了模块组合款
深蓝色与灰色拼接
环绕配套的茶几,呈 L 型摆放
鲜艳的色彩既可以表现出特有的个性
同时又能活跃室内气氛
开放式的厨房与餐厅结合在一起
用黑色的瓷砖分割区域
简约时尚的搁板做为厨房储物
很方便拿取调味料
背景墙上可以保留的斑驳痕迹
与天花板相呼应
增加了现代工业感
白色的餐桌从操作台延伸出
与地板配色相同的黄、黑餐椅
让整个空间看上去更加协调
卧室面积为 18,49㎡
暗色系的空间让人身心放松
很有归属感
床头选用屏风设计
两边有落地灯、床头柜
顶部加入隐藏式灯带和地毯
让卧室更显温馨
卫生间有 14.14㎡
暗色系的色调延续了卧室设计
双洗漱台做为一个转折区
简洁的造型很时尚

