89㎡现代简约,稳重舒适,成熟大气

这套89平米的房子,整体户型格局方正实用,在现代风格的空间基础下,搭配上深色稳重的家具色调,带来的是一个成熟舒适的大气氛围。

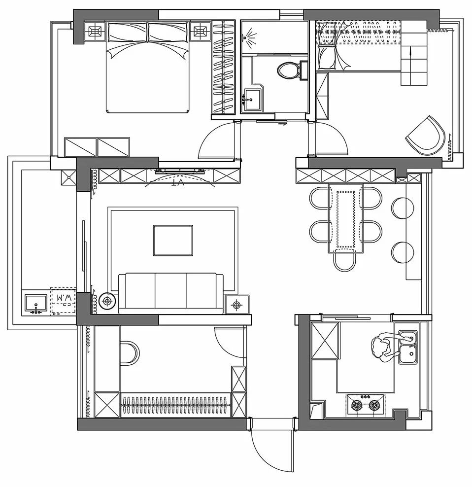
图·赏 picture



平面布置图


客厅


灰色调的现代风格客厅,灰色地砖与地毯,搭配浅灰色布艺沙发,整体空间氛围显得简约而素雅,沙发墙上方的导轨灯,搭配中间一组球形的组合吊灯,整个空间都充满了现代舒适的大方氛围感。


沙发墙的一幅几何图案装饰画,角落还有一盏黄铜质感的球形落地灯,客厅中间的这个黑色铁艺架茶几,整体呈现出一个端庄沉稳的气质。


▲定制电视墙中间留空出电视机位置,下方的插座层也可以作为摆放书籍的展示位置,整体带来的是一个现代优雅的舒适空间感


客厅与餐厅隔着过道,客厅区域的顶部留空,餐厅整体吊平的天花显得更加简洁的空间。


餐厅


餐厅的灰色餐椅+黑色餐桌,与客厅的家具风格上保持一致,整体显得端庄而又稳重舒适。


▲一组铜质感的吊灯,为餐厅带来的是一个优雅档次的用餐氛围。


通顶的餐边柜中每一个柜子都做了空格,并且空格不在同一个平面上,使得空间更加跳跃有设计感。


▲餐桌靠窗布置的同时还在窗边设置了一个小吧台,让餐厅显得更加有情调感


吧台连着一旁的酒柜,台面上布置着鲜花与绿植,加上两张布艺吧椅,为空间添加了几分优雅舒适的气息。


卧室


卧室床头墙留白的设计,左侧吊扇一张长线吊灯,结合黑色的床头靠背,带来的是庄重简洁的设计感。


阳台打通纳入到卧室,摆上绿植显得格外的自然精致。


儿童房


儿童房上铺是床,床下是衣柜与休息空间,摆上一张粉色的儿童沙发,窗户粉色+绿色的搭配,整体显得浪漫而又童趣。


留出大面积的活动区给孩子,还放了一块小黑板,墙面的积木,让儿童房更加有童趣感。


厨房


厨房挨着大面积的窗户,整体白色的橱柜吊柜,在U形的操作台下,为主人提供了一个舒适优雅的做饭体验。


卫生间


卫生间在简洁的墙面地砖基础,搭配深黑色的洗手盆与淋浴房推门,呈现出一个稳重舒适的卫浴空间。


上一篇:188㎡现代简约,素色的空间,优雅的气质
下一篇:65㎡北欧混搭,文艺气息+成熟气质,舒适庄重而实用