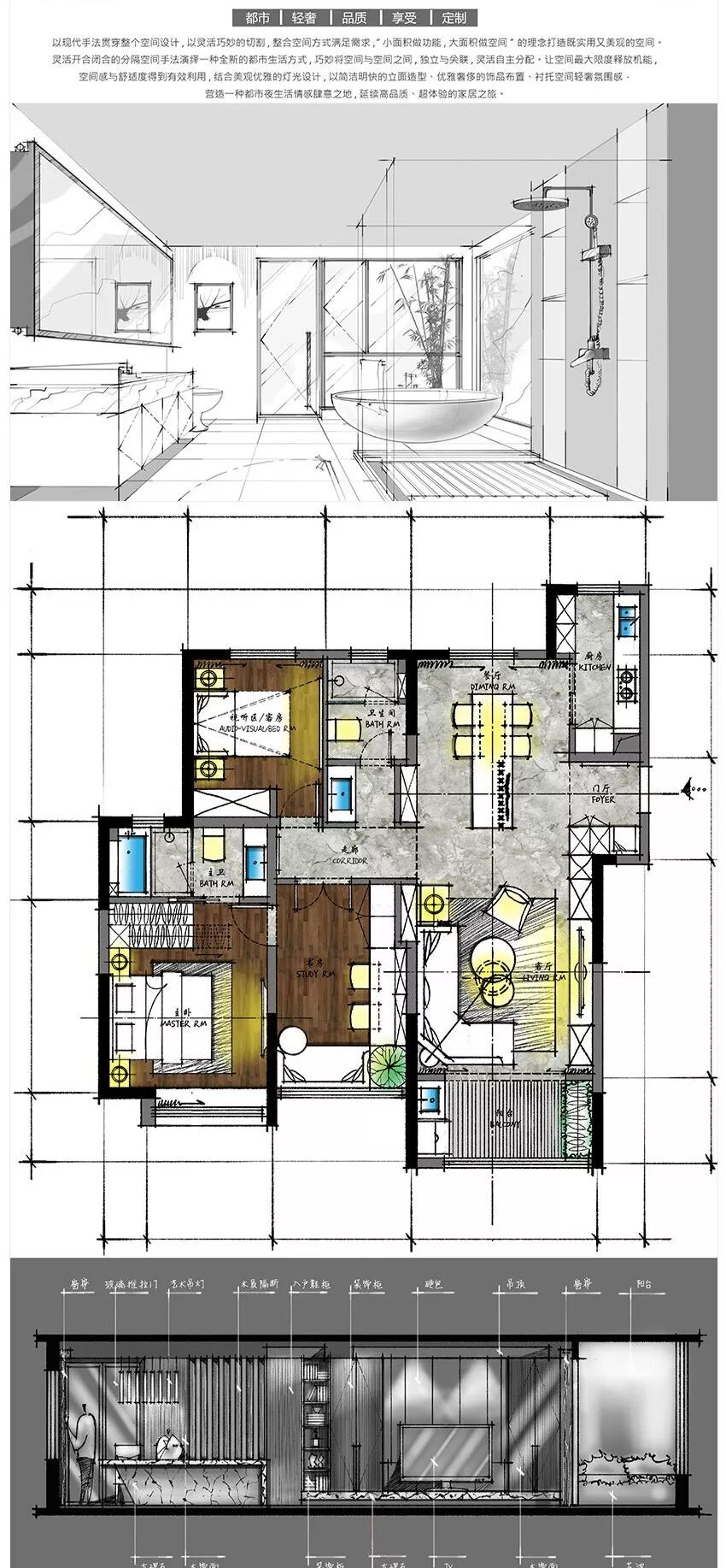
一个户型,根据不同风格,不同人群,做出N个方案,你必须看!
一个户型到手后,你是按什么流程进行设计,深化,落地的?这里给大家分享一个超牛的户型方案思维。
包括风格模式,各种人群模式,以及大师思维模式。
原始平面图

不同类型的客户人群,做出不同的方案!
每一套方案 都值得认真学习,思考...
1.巴厘岛风格的平面方案
特点:强调度假体验,空间大而开放
大量景观及绿植引入到室内,身临其境

2欧式风格 做出平面方案!
特点:实用和豪华,一个都不能少

3.中式风格 做出的平面方案!
讲究工整与严谨,最好能加入中式元素

4.现代简洁风格 做出平面方案!
特点:大气,开放,时尚

5.异形风,喜欢一步一景的业主做出的平面方案!
很多设计师都想玩,但玩不好的风格

6.扎哈大师风 平面方案!
霸气的曲线,不可一世的风格!

7.霸道总裁的业主,平面方案!
特点:房间不多,但讲究空间流动性 社交感

8.仓井空,哈哈 苍老师 你懂的...不多说
特点:泡澡的空间,床一定要大,别说我邪恶啊
9.迪拜土豪,高要求做出的平面方案!
特点:突出玩,突出社交,一个卧室就够

10.给刚需业主人群做的平面方案!
特点:卧室要多,你懂的,最好有很大收纳空间

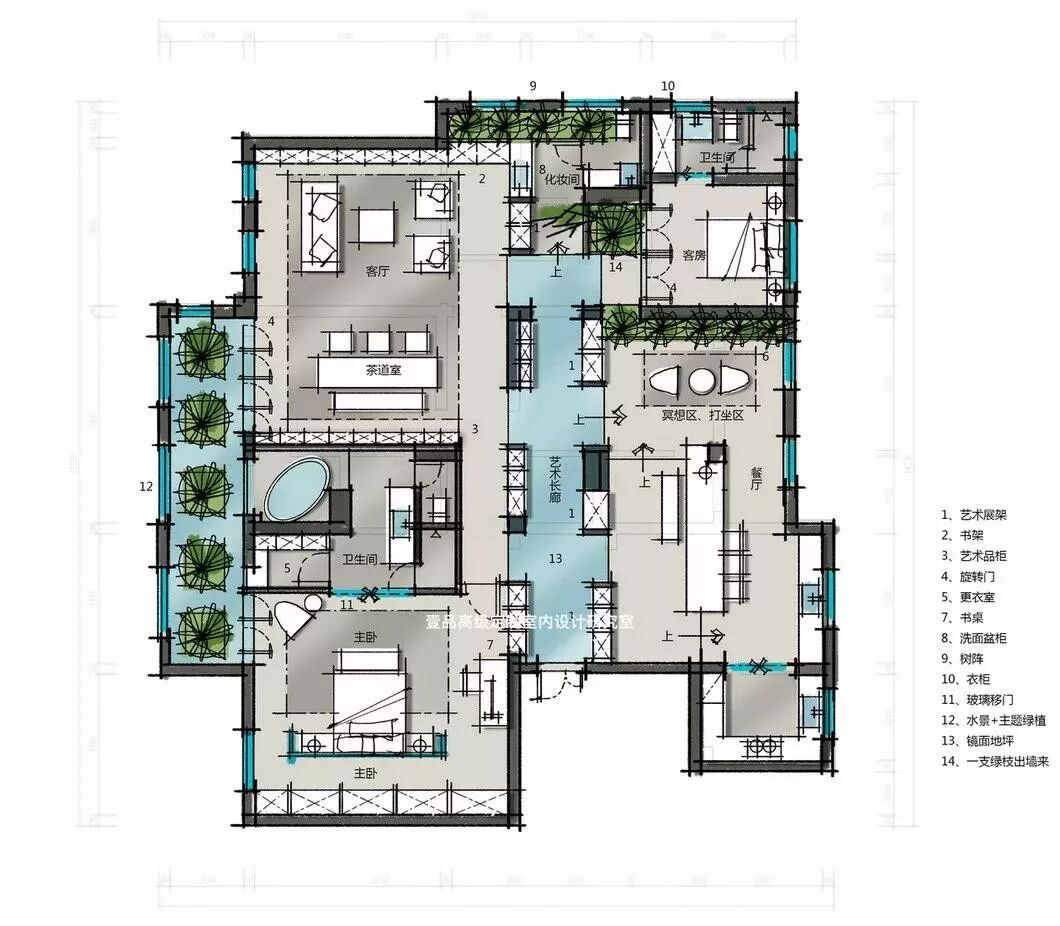
下面是壹品曹的大平层作品
根据大师的思维模式 做的方案
接下来的每一套平面方案 都值得深入细看...
结合JAYA的擅长的平面,做出的方案!

结合SCDA设计 擅长的平面,做出的方案!

结合YABU擅长的平面,做出的方案!

结合傅厚民擅长的平面,做出的方案!

结合季裕棠擅长的平面,做出的方案!

结合凯莉赫本擅长的平面,做出的方案!

结合李玮珉擅长的平面,做出的方案!

结合梁志天擅长的平面,做出的方案!

结合如恩设计 擅长的平面,做出的方案!

结合唐忠汉擅长的平面,做出的方案!

下面是另一位方案大牛三哥的方案
看完我想撕了我做的那些方案


怎么样?
是不是想说:有一种方案,叫别人的方案?

