客厅书房一体化设计,一房能当两房用
很多业主在装修过程中
往往会没有多余的房间来设计书房
其实如果没有独立书房
不妨尝试下客厅书房一体化设计
开放式空间更赞!
下面就跟有其屋小编一起去欣赏下吧!

大部分人
不知道怎么更多的利用玄关
如果想让整个房间看着空间大一点
用铁框+玻璃
作为屏风是个不错的选择
既考虑到实用性
也更有美观性~

如果是一整面的玻璃
那实用性就很差了
在下面还设计了一个
小小的换鞋椅

整个换鞋凳一直从玄关到书房
这也会在视觉上
给大家带去更好的效果~

客厅和书房一体化设计
为了让整个房间看上去和谐
在客厅简单的放了
布艺沙发和茶几

在电视机前方
还隐藏了一个投影幕布
这也让空间得到更好的利用


书房就在客厅的背面
中间放了一张书桌作为隔断


选用白色的门柜
是为了让整体看上去更清爽干净

书桌的设计也是煞费心思的哦~
在桌脚的位置
还特地预留了各种手机电脑的走线位置


客厅的后面划出一块做书房
客厅+书房的设计形式很受欢迎
不仅提高了客厅的档次感还能一屋两用
餐厅的位置就是在玄关处的对面
也就是在客厅的旁边
采用的也是极简的家具风格



明黄色的吊灯比较挑眼
目前整个客厅环境基本是单色系的
加上一点跳跃的元素
在整洁中加入一点活跃~

在餐厅白色的移动门后
还有一个小空间储物间
里面可以一些杂物等
也可以选择摆放一架钢琴
给演奏者一个独立的空间

餐桌旁边的置物架
是一个开放式的储物空间
可以放上各种家里常用的餐具等~


厨房的改动是比较大的
这是一个全开放厨房
配色上主要还是白色为主色调
加入了比较耐脏的深色
相信很多女性都会爱上这样的厨房



主卧的设计风格和客厅处
基本都差不多
非常的简约大方



柜子设计十分独特
中间镂空
虽然说半隔断但是不影响采光



在主卧的床头背后
打造了一个小小的衣帽间
看着虽小
但是内部空间还是足够大的

比起客厅的简约风
儿童房还算是比较调皮
床铺是榻榻米的设计
靠窗光线好


重新设计之后的卫生间
洗手台比之前大很多
这让卫生间视觉上变得空间感更大一些



不浪费任何一个角落
在卫生间的一个小角落中
放下一个刚好合适的浴浴缸


如果你也喜欢上面这套装修后的房子
那就一起来看看他的设计图吧
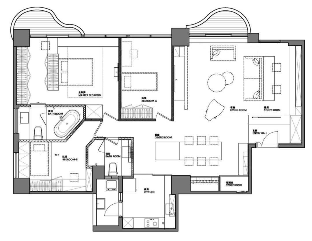
整套房的格局
原本是一个三室两厅的户型
为了让客厅看着更大点
就把原来的厨房改成开放式

▲平面图
在主卧和厕所之间多设计了一个斜角
这样就让主卫里面多了一个放浴缸的位置
也让厨房的面积变大了

▲原始平面图

▲布局调整
蓝色部分为收纳空间,红色是储藏室
屋内的四周基本都是有收纳空间的
三室两厅住的基本是4口之家了
除了设计上要有美观
更要有收纳实用性的考虑
▲收纳

