小户型设计,如何兼顾美观与实用?

小户型设计
Small apartment design
在很多人眼中,觉得小户型的面积比大户型小,所以在装修方面会比较省心。其实不然,小户型因为面积比较小,但是要在功能上完善,提高空间使用率和居住的舒适度,达到和大户型一样的效果,花的心思绝不会比大户型的少,从美学角度来说,小户型的设计其实也可以出彩,只要因地制宜,在充分利用空间,保证功能的前提下,美观是完全可以兼顾的,当然,收纳设计尤为重要,许多小户型竣工时超级美,住一段时间后十分乱,问题往往出在收纳设计上,许多时候并不是没有考虑收纳,而是没有充分结合的生活习惯,比如玄关柜离门口很远,可能就形同虚设了,因为很多年轻屋主偷懒,进门后东西随便一扔。
今天,给大家分享三套台湾虫点子设计的小户型案例,非常具有参考意义,这些案例既满足功能,还具有绝对的美感。同时,设计师在空间处理上采用可开可闭的设计,保证空间的通透性,又能照顾到私密性的需要。
47平设计师自宅
引光入室的自在栖居

当初我看到这个空间虽然室内坪数很小只有14坪,但是竟然有一个将近4坪的大露台而且对外的景刚好都没有建筑物阻隔,虽然没有什么漂亮的山景或是海景,但视野很开阔光线很充足,于是我当下立马就决定买下了。

原始平面图上其实这空间原始状态并没有那么方正,我一直在思考的不是要做多炫的设计,而是当我生活在这空间时我会怎么使用?
就像我每次在规划客户的家都会在心里一直不断想像,客户在这空间里会怎么使用怎么走动怎么生活
进而就会影响到我设计的格局跟动线配置,所以我觉得我在这空间最大部分的时间就是在沙发上耍废,以及我很爱泡澡(忙碌一天工作的舒压)还有就是想要有一个大餐桌可以在上面工作跟招待朋友。

概念图上可以很清楚看到我们几乎让室内空间全部开放,每个空间其实都有两种以上复合使用功能,尤其是在我操作过这么多的小坪数空间后的心得。
我常常跟客户说:空间小就要尽量让空间保持可能的开放性,即便需要处理隐密性的问题其实都可以用设计手法结合
当一个人在这空间时就可以全部开放,当两人三人以上时又有不同的拉门或是遮蔽装置。在台北买房子很辛苦 每一坪/一公分都要斤斤计较才行

因此在设计配置上,我先打破原有框架把室内无结构力之隔间墙拆除后,利用了原始先天格局不良的状态,让每个空间都依照畸零配置把最重要的客厅厨房跟浴室放开窗面最大的一侧,让需要安静的房间跟书房塞到最后面,刚好利用中间的柱子做一个活动拉们区隔公私领域。
厕所的空间我们让他变成一个悬浮的空间延伸到户外,希望能让每个空间有一种暧昧的延伸感,不管是视觉或是使用上都有不同的感受。

其实 我家很简单 (可能也因为太小)这张图就可以讲完全部设计了,由左至右 - 书房-主卧-客厅(浴室)-露台,房间与客厅除了用地板高低差界定,旁边也有铁件拉门区隔

我们也在中间设计了一支旋转电视,看似很简单的设计,我们为了不要让一些线路外露(又不想中间铁管太大支)所以尺寸算的很精准,也利用厕所地板的折板造型变成收纳电器的机柜。

主卧毕竟是睡觉的空间,所以我希望营造一个温暖的感觉,地板使用海岛型木地板(踩起来还是比超耐磨温润一点只是不好照顾)用纹理较大的实木皮搭配墙面的硅藻土手刷感涂料,空间基调刻意与客厅空间有所区隔。

书房与主卧:让书桌侧墙也变成主卧床头版,原有平面的L空间变成衣橱空间,天花板在交接面刻意用黑色缝隙脱开延伸到柜子墙面,跟客厅区隔也使用铁件拉门+雾面玻璃

拉门的开关示意图,因为希望关起来光线还是可以穿透所以用了雾面玻璃,未来若希望遮光度提高天花预留脱开的缝隙可以另外安装窗帘,保留一点未来弹性

房间左侧的矮柜我们刻意悬空处理,侧边的光线营造柜体轻巧感也将墙壁材质表现出来

书桌前方用洞洞板让未来展示做一些弹性(可放层板以及吊挂东西用)

(开关拉门示意图)

床头后的书房空间左侧原有的畸零格局,我们利用白色量体延续到书房墙面,藉由上下脱开的沟缝延伸,右侧矮柜量体则延伸至书桌下方,有一种量体交错的错觉

预先在墙面崁入铁片的书架层板让墙面切割减到最少

桌上及侧边矮柜我们都预留了线槽,之前的使用经验就是会有一堆线躺在桌上,所以我们后来的案子其实都有做类似这样的设计,盖子可以打开将插座藏在里面

因为我有收藏手工眼镜的兴趣所以右侧特别设计一个玻璃盒,平常可以拉开抽板来拿眼镜,随心情换想要的风格

我的设计之中特别注重的就是空间与空间中的界面,界面-是一种过渡空间,我喜欢这之间是模糊的,好像有一种延伸或是暗示性的把人,从一个空间带到另一个空间,像我家这个房间过渡到客厅的界面,用了一条黑色L型缝隙延伸也呼应的厨房的天花折板

房间往客厅方向:公共空间色调以白色为主,大面积的白灰色搭配一点软件的色彩,左侧厕所使用穿透性玻璃让空间看起来较大,刻意拉高的地板让厕所也变成一种展示,右侧为开放式厨房的中岛结合餐桌的设计,沙发后方其实还隐藏一个空间:是展示空间也可当成书桌,营造一空间的模糊趣味性
因为厨房空间小,我希望有多一点的收纳以及工作空间,所以就将原有厨房墙面打除后变成开放式中岛的设计,下方有洗碗机以及收纳柜跟木作的桌板结合,假日最喜欢坐在餐桌上工作,喝杯小酒听个音乐就很像在咖啡厅工作的感觉

中岛使用仿雪白银狐的人造石包覆,开门一进到空间中的第一眼很重要,就应该要有点精品质感



中岛:我只用了两支铁管支撑强调桌板的线条,桌面下用了一条细的镀钛金属包覆增加细腻感,很喜欢这个大餐桌虽然家很小但是有一个大餐桌很好用,可当成书桌或是朋友来聚餐/讨论工作/厨房料理台等等功能

厨具部分我也很讲究细节,除了美学上沟缝要对齐,机能上因为上方柜体较高所以也使用日本的下拉五金,对很多妈妈来说很省力的机能,炉子我也选用IH炉搭配单口炉,其实现在大部分的食材都可以用IH炉来烹煮就很够用了(又安全)
水槽则使用好整理的结晶石水槽,虽然贵一点但雾黑色比想像中好整理看起来也舒服

厕所往客厅一角,沙发后方的悬浮铁板主要是靠旁边量体以及缆绳悬吊支撑,塑造一个漂浮感也变成一种空间界定的穿透趣味,沙发后方有个桌面高度的平台,可以放置东西用也可当成桌面使用

客厅往房间视角,房间变成一个独利包厢的口字型概念,但又维持其穿透开放性,中间为旋转电视,下方电视柜是利用折板概念形成

到了重点区域-客厅:这角度可以很清楚看到我将房间与客厅用材质来做区隔,一个温暖一个较白产生一种对比感,沙发后面有个隐藏空间再过去就是我最爱的大露台

我让厕所的悬浮平台延伸到户外,制造一种介面模糊的感觉,也让空间有种内外延伸的错觉,沙发后方脱开的留白将务外阳台的自然光带进室内
脱开的留白手法将户外带入空间,减法的设计概念。户外使用好整理的塑木当作地面材,营造休闲感

我们利用中间的剩余空间设计了一个储藏室(不管空间多大都需要一个可以放家电及行李箱的空间)将储藏室拉门结合厕所拉门,变成双面使用的门片

到了厕所部分很多朋友最好奇的就是我家开放式的厕所,我觉得一个家最重要的除了客厅就是厕所了,厕所只要弄得好整个家就都会感觉到很舒服
尤其一天当中我们会不断的上厕所还要洗澡,其实在厕所的时间也不少
所以我一开始就设定我家厕所一定要半开放式,所以使用大面玻璃为区隔,解决隐密性问题有拉门及帘子做区隔

以往厕所都给人一种不干净或是脏脏的感觉,为了营造一个兼具机能(好整理)及展示性的厕所,所以材质部分除了地面使用义大利无接缝地坪之外,墙面也使用100X60超大块的石材砖,尽量让缝隙减少(也减少清洁的问题)

因为我不喜欢马桶下方的藏污纳垢问题,所以也选用悬吊式马桶(只是后方需增加墙厚)也因为墙面变厚,正好可以做一个凹槽放瓶瓶罐罐的东西很好用
右侧洗手台请铁工特别订制,做完后外面再包覆人造石一体成形(也减少面盆边缘的藏污纳垢),我们的卫浴设备及五金配件都刻意找黑色的形式,因背景为白色墙面让五金配件也变成视觉焦点

厕所因为深度窄,所以无法做淋浴拉门,所以就用一半式的玻璃作界定,稍微可以阻挡大部分的水,重点还是必须注意在湿区必须确实做好泄水以及高低差的区隔,这样就算没玻璃其实也可以阻挡大多的水到干区

因为是订制的浴柜,也设计一个解决以往卫生纸没地方放的空间,整合在人造石台面上

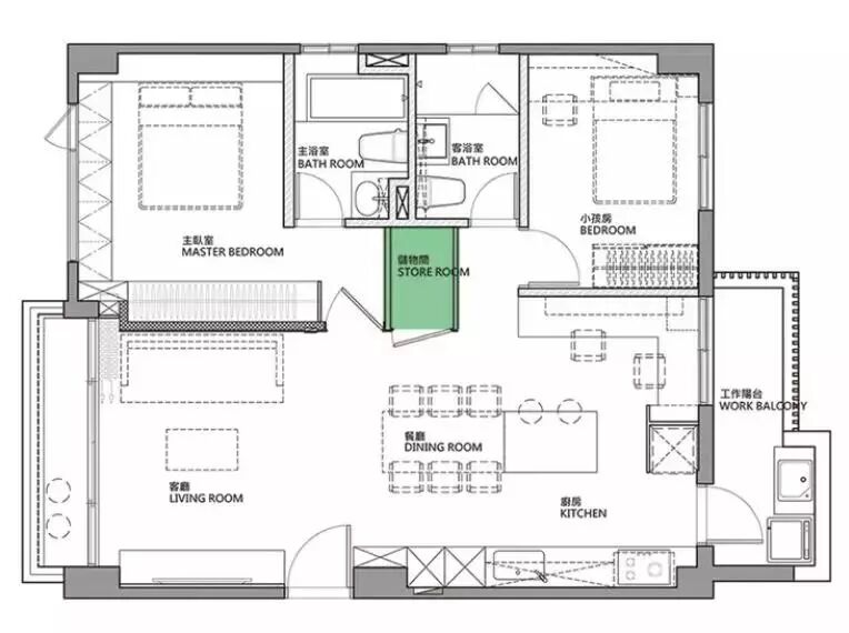
两居室的空间改造
73平小蜗居的优化设计
房子位于中国台湾,面积约 73㎡
由虫点子创意设计
依照屋主的喜爱
整个风格色调选用灰白色+原木色搭配
原始户型是一个三房两厅的格局
经过设计师的重新布置
加大了主卧面积
并把原有走道空间变成了储藏室
还将书房的墙面拆除
设计成厨房中岛
▲原始平面图
▲原始建筑
▲轴测图
▲平面图
客厅使用水泥墙面
铁件+木材的电视柜
让整体看上去简洁又大气
暖色调的沙发与灰色墙面形成对比
黑色的铁艺吊灯与壁灯
很好的渲染了整体氛围
在沙发旁边
隐藏着通往卧室的门和储藏室的入口
融为一体的设计很受屋主喜爱
拆除了隔墙后
书房变成了开放式设计
简单的木头书桌+铁艺书架
搭配从窗外透进来的阳光
显得格外舒适
室内也能看到窗外的绿植
在这里办公、看书很是惬意
因为整个空间的基调偏冷色系
所以设计师在厨房中使用大量白色橱柜
让整体看起来更宽阔
也富有活力
厨房与书房之间隔着岛台与餐桌
洞洞墙将侧面空间完全利用
墙后还放着冰箱
靠近书房的一边则做成了书架
虽然是开放式设计
收纳空间却很多
餐桌连接着白色的岛台
清新的色调搭配上木质餐椅
顶部延伸的天花板界定了区域
在利用三盏吊灯照明
温馨又浪漫
卧室延续了水泥墙面+原木设计
依然是屋主喜欢的风格
加宽床头位置作为床头柜使用
有大量的储物空间
床头的大梁用倾面天花板隐藏
有拉高视觉的效果
床尾是敞开式的落地衣柜
上下搭配白色柜门
窗户下方做了小的卧榻
能当座位使用底部还有不少储物空间
卫生间也以灰色调为主
用特殊形状的黑色地砖铺面
墙面上大理石瓷砖
不仅防水还有易清洁
淋浴区用玻璃隔开
做干湿分离设计
墙上的小窗户用来通风换气
很是方便
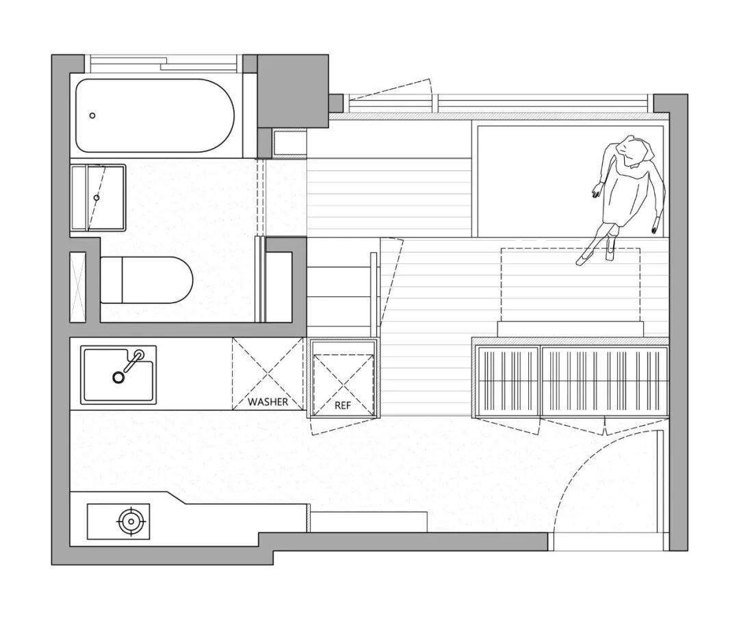
17平米袖珍公寓
一个人的豪宅
台湾工作室A Little Design已将台湾台北的一家前钢琴工作室改造成一间带内置节省空间的家具的小公寓。
公寓前身为钢琴工作室,面积仅为17.6平方米,天花板高度为3.4米。横跨公寓的混凝土梁进一步限制了可用空间。

这个小公寓的房主忙碌的职业生涯需要她经常出差,偶尔在国外生活很短的时间。在台北的时候,她很重视在较大的生活空间上短途通勤。尽管它的面积很小,但这个地方已被重新配置为包含实际比例的所有必需品。装饰方案也有助于小空间流动,具有平滑的木质效果家具和地板,清新的白色墙壁和存储设备,以及智能浅灰色调装饰。

紧凑休息室的沙发区也是简约的工作空间。一个匀称的桌面从对面的墙壁折叠出来,足够大,可以舒适地握住笔记本电脑,参考材料和强烈的黑咖啡。在壁柜内,在折叠式桌面下方,隐藏了几个鞋子存储空间。

由于夹层卧室没有站立高度,因此衣柜被整合到公寓的入口通道中。其他储物柜利用楼梯下方和浴室门上方的每一寸空间。

当折叠式办公桌/鞋柜关闭时,小型休息室显得更宽敞,通风。客人可以使用整洁的地板、阅读灯,通过沙发/沙发床提供工作照明。主要生活空间的狭窄通过门口通向入口通道,以及开放式双层楼梯的视野来对抗,并且在夹层平台上露出躲猫猫。

通往浴室门的一步会导致楼层的变化。该平台为木质沙发框架和相邻书柜的一部分进行整合,并且还在其盖子下面隐藏了存储空间。第二个书柜作为一个细长的白色塔单元爬上浴室门的一侧。

浴室门滑开,以免侵占地板空间。设计团队在项目期间改变了浴室和厨房的位置:“与整个空间的小面积相比,浴室相对较大,而厨房缺乏实用性 - 它甚至太小而不适合冰箱。”

设计团队还将入口通道和厨房相结合,创造了一个连续的空间。

新的厨房位置,现在有一个冰箱,洗衣机和两个墙壁安排的电炉的空间。


在小厨房厨房中实现了相对大量的厨房工作面,其还具有安装在工作台面高度上方和下方的充足存储架。

木制开放式厨房搁架温暖了浅灰色和白色厨房装饰的外观。

木制楼梯在夹层楼上爬上床。

现代简约的栏杆可以防止楼梯与房间的其他部分隔离。

陡峭的立管迅速爬上垂直空间。

桌面和抽屉位于混凝土梁下方,横跨公寓。一个小型室内植物和一个台钟令人愉快地装饰表面。

大号床垫在白色卧室的宽度上适合边缘到边缘。由于床边空间不足,现代壁灯提供阅读灯。

在团队将旧浴室位置与厨房交换后,其布置的规模略小。然而,新的灰色和白色浴室现在受益于自然阳光和更好的通风。一个高高的滑动镜面门穿过橱柜,使浴室看起来更加明亮,给人一种更多空间的错觉。

在镜面门的后面,有一个狭窄的凹槽,配有方便的毛巾和洗浴用品架子。当门位于罗纹玻璃浴室门前时,门也提供额外的隐私。

白砖效果瓷砖覆盖每面墙,并装饰浴缸匹配。

微型公寓的流行不是我们对台北市高房价问题的回答,而是生活问题的长期演变和客户带给我们的任务的结果,”王先生补充道,他的工作室之前曾设计过这座22平方米的微型公寓位于市内。“我们希望设计的尝试可以为这种生活类型提供一些方案和可能性。

一层平面图

夹层平面图


