她家基装4.3万搞定117㎡3房,卧室榻榻米衣柜太实用了!
本案为117平现代简约三居室,室内装潢色彩明艳却不凌乱,简约硬装加上温馨软装,有家的自在感。
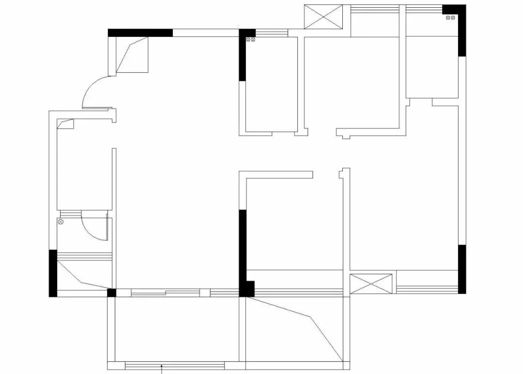
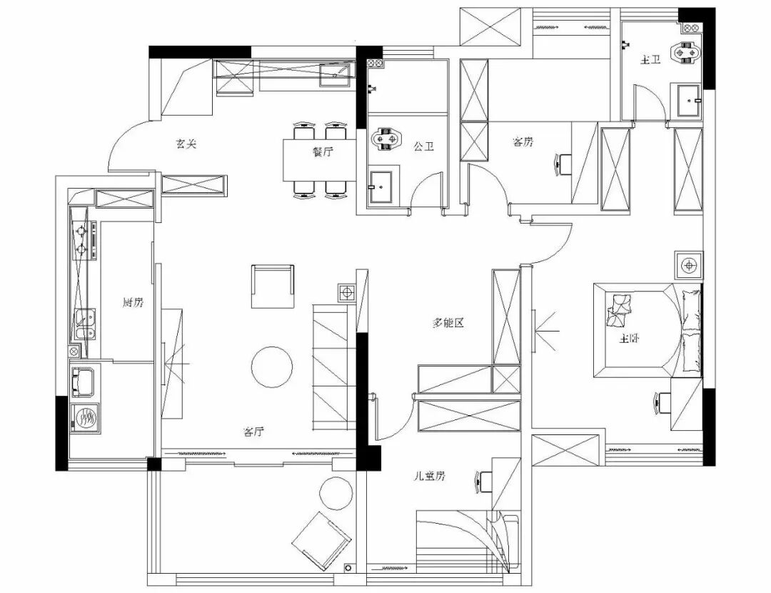
户型图

▲ 原始结构图

▲ 平面布置图
客厅
亮黄色沙发搭配灰色墙面,明暗结合,空间层次感强;地面通铺木地板,简约顶面用点光源取代主灯,空间宽敞明亮。
沙发墙上规则悬挂五幅装饰画,装饰画的图案与沙发上的抱枕互为呼应,治愈感爆棚。
将原儿童房改造成多功能活动区域,用吧台设计作分割。另外,吧台还可以作为临时工作区来用。
阳台
与客厅相连的阳台布置成了休闲区。亮色六边形花砖搭配铁架盆栽,外加一套室外休闲桌椅,整体给人舒适小清新的感觉。
餐厅
餐厅与客厅互通,保证餐厅采光。餐厅的整体风格延续公领域的格调,餐边增设西厨,亮黄色瓷砖拼贴出动感背景。

简单的木质餐桌搭配撞色餐椅,呈现无限自然生机。
厨房
厨房走的是小清新路线,门口放有文艺范十足的绿植和挂画。
厨房花砖地面,搭配墙面白色方砖与黑色美缝,打造北欧料理空间。

次卧
次卧安装了榻榻米床铺与大面积收纳柜,榻榻米靠着休闲飘窗放,房间虽小,但可利用的面积一点不少。

儿童房
儿童房选择了色调柔和的绿色、蓝色,靠窗安装了L型木作写字台,增加空间机能。
主卧
主卧整体以简约为主风格,浅色空间搭配深色家具,简简单单营造舒眠氛围。
卫生间
卫生间用大面积的灰色瓷砖搭配局部花砖进行装饰,蓝灰色成品台盆柜与整体风格完美相搭,小空间蹲坑淋浴空间功能重叠。

