这就是家,最美好的样子吧!

屋主记
我和先生、孩子长期居住在北京,因为老人的关系,经常来千岛湖小住,久而久之萌生了在这里安家的念头。当初一眼相中了窗外“波上寒烟翠”的美景,毫不犹豫选择了这里。为了不负好景,特地邀请本空设计操刀设计。理念上,注重实用性、舒适性和自然生态的结合。
原户型是传统的三室两厅,本身不需要多少改动。玄关、厨房、餐厅、客厅做成开放式循环空间,有效利用空间的同时,动线更加合理。
今年8月,带孩子小住时日,享受难得的闲适。在紧张的城市生活里,这是多么奢侈,又多么幸运。
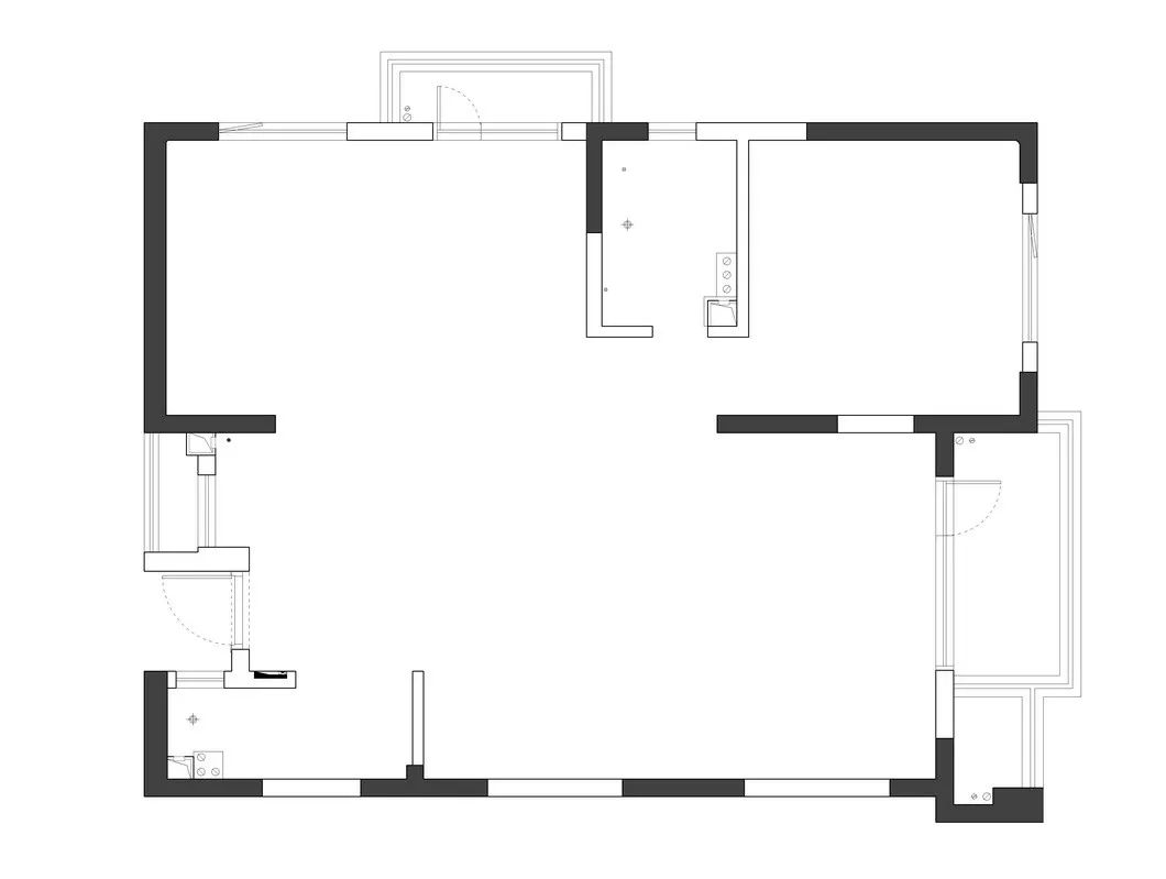
户型图

户主要求:
1、需要空间开阔,光线要好
2、中间房间作为多功能的房间,不用固定。
3、主卫需要一个浴缸
改造设计:
1、原本的户型从进门的位置到客厅的阳台是对通的,所以在进门的位置做了一个小的玄关,在不影响的过道走的情况下做了小的屏风。
2、做玄关的那面墙正好背面朝着餐厅,所以就把那面墙做成了黑板墙。
3、厨房是开放式的厨房,冰箱的位置是特意隔出来的,这样冰箱和灶台还有水池的区域就呈现了一个三角形的动线区域,在生活中使用起来也会很方便。
平面动线图

平面布局图:
1、是说明厨房的冰箱和水槽灶台形成三角形,这样的动线是最短的,也是最舒服的。
2、进户的位置鞋柜的位置不是很够,所以改动了次卫的墙体,并且做了一个内移门。因为次卫结构做开门比较占用空间,所以这样改动既有了玄关的鞋柜,也解放了次卫的活动空间。
3、次卫还改动的位置就是放洗衣机的区域,因为洗衣机不想放在阳台,所以就把次卫的空间往客厅移了点,隔出一个放洗衣机的空间,然后客厅那边的空间就做了一排的储物柜
收纳平面图

上图中“收纳空间”占整个使用空间的比例。15%左右的比例是比较合理的,不然你家过两年就不没有地方放置物品了!
‘收纳就像手机的内存,刚开始购买的16G的手机感觉就够用了,等过1年后发现需要增加内存,外置内存很麻烦,内置内存厂家又不保修’

进门处的鞋柜是通过把原有的墙面往里移动了30公分,做成了一体式嵌入鞋柜。打开房门,进入视线的是典型的黑白灰设计,白色的一体式鞋柜和墙面、黑色把手、灰色的地板砖和生活贴画营造了干净轻松的氛围。

利用黑板漆在餐厅打造一面景观墙,墙面上制定了生活计划,不需要多么精美的画作就能让温馨感爆棚。工业风铁椅具有独特的美感,并且耐用,与条凳的组合碰撞出别具一格的火花。

开放式餐厅既美观又安全且娱乐性极强。开放式餐厅将厨房和客厅连接起来,从而使得整个家庭的风格保持一致,增加整体的协调性。

由于没有阻隔物,在做饭时,其视线能够遍及整个餐厅和客厅,增加了小孩玩耍时的安全保障,同时又能与家人聊天,增进感情。


居住的质感不是靠物质的华丽堆砌,而是借由适宜的光线、材质元素的搭配以及经过细心计算的生活动线,交织成凌驾于奢华之上的纯粹空间。黑色的彰显与白色的内敛,搭配上灰色软装,在空间中产生了互动对话。

独特的小家饰更体现了一份居家的温暖,给空间增添了一些乐趣,更多了一份生活感。

背景墙简约自然感,使空间显得更加柔和舒适。

客厅中灰色的布艺沙发搭配深色茶几与实木地板,十分简洁自然,粉色的抱枕、各种绿植与装饰品对素色的客厅进行有序得点缀,整个客厅拥有清新的朴实感,同时也给我们带来了丰富的视觉感受。

开放式厨房增加餐厅与厨房的开放度、采光度。靠窗户的区域我们设置为洗菜盆的位置,合理利用自然光。L形的台面使烹饪的时候操作更加方便。整个厨房采用石英石台面和原木色作为厨房配色方案,不至于抢去餐厅的风头,又会觉得在整个空间中融入感很强。



一体式的床使空间更加简约却不失简单。一昧强调简约精神并非单纯不作为,让空间显得干净简单,反而是必须花更多的功夫,利用色彩跳跃的绿植点缀,营造简约而温馨空间感受。

多功能长桌不仅能满足看书的需求,也能满足女主人卸掉舟车劳顿妆容的需求。具有强大实用收纳功能的铁艺架可以轻松收纳下我们旅行中的小物品。

主卧与次卧同时打开房门形成南北通风,延伸的实木地板从中柔化了空间界限


以木色系为主的空间里,透露着一种温暖自然的气息,与灰棕色跟白色的结合,变得更加耐看且有层次感。在内敛低调的居室里加点不一样的颜色来丰富整个画面感,绿色会是绝佳的选择,因为它会使整个空间变得更加清新自然。

充满童心的挂画营造出了别样的艺术空间感,家长和孩子在此享受简单快乐的亲子时光。家长和孩子的互动,不仅有助于孩子的发展,父母也可从中观察孩子的成长历程。

下午时光,湖面的风轻轻的吹动了我右边脸颊上的发丝,此时此刻孩子正在午睡,没有城市的喧闹,一切是那么的安静美妙。
● ● ●
欢迎转发
↓↓↓

