房子太小,如何设计实用的入门空间?

自古以来,
中国人就非常讲究门户隐私,
而设计门厅的主要功能和意义,
也大抵是为了打造一个室内与室外的缓冲之地,
既能避免客人一进门就对整个居室一览无余,
又能发挥出一定的收纳功能,
达到美化与实用并举的目的。

其实从风水学上来说,
“赤裸裸”的门厅也是一大禁忌,
若是没有任何隔断或遮掩的话,
会破坏室内纳气、聚气的效果,
家人的运势也会受到影响。
我们且不论这风水学是否值得参考,
无门厅的房子,
总给人一眼望得到头的感觉,
确实在美观方面也是有所欠缺的!

今天我们从三个方面来聊一聊有关门厅的话题,看看应该如何打造出一个实用而不失美感的入户空间呢?
1.大门正对餐厅
如果你家的户型正好与下图相似,入户大门正对着餐厅,可以从两个方向来着手解决入户无所遮挡的问题。
方 案 一
在入门的左边设置一个柜体,不仅可以充分利用空间,还能放置鞋子、包包、外套、钥匙等常用物品,大大满足了一家人的收纳需求。
而且这种方法非常简单、实用,可以对室内产生一定的视觉屏障,保证了厅内的安全性和距离感。

方 案 二
如果你想对餐厅一侧进行遮挡,也可以在大门的地方设置一个玄关隔断,起到保护隐私与美化装饰的双重效果。

隔断使用的材质、形式也可以充分想象,例如木隔栅、玻璃、雕花、餐边柜、多宝格等,都能将住户含蓄内敛的入户风格尽情表达,保持空间延展性的同时又有一定的遮挡功能。



那么除此之外,还有没有更多的设计方案呢?小编为大家收集了一些精彩的入户空间设计,看看你能不能对号入座,从中获得灵感呢?






2.大门正对客厅
有不少户型的入户门是正对着客厅区域的,家庭成员的各种活动、行为状态全都一目了然,给人的心理会造成一种不安全的感觉。
如果在客厅与大门之间设置一组收纳柜或一面隔断,就能有效解决干扰和心理安全问题,使人们的出门入户过程更加有序。

当然,如果你想采用半敞半蔽式的设计来提升层次感,也可以在房间装饰中起到非常抢眼的效果。





3.大门正对走廊
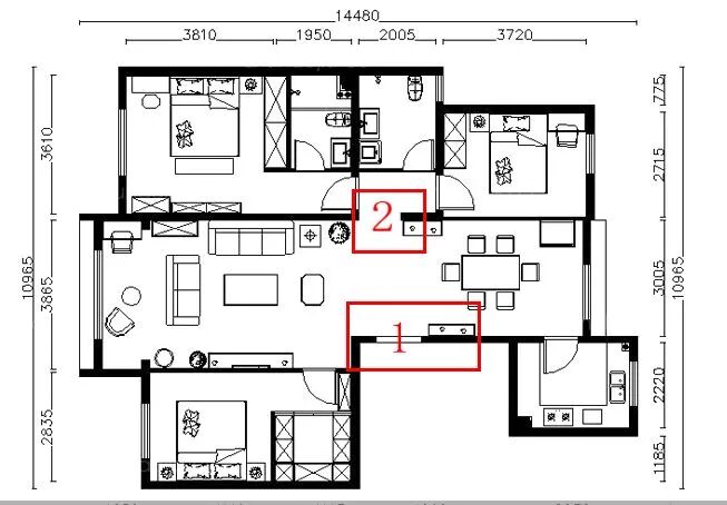
有些户型一进大门就面对着一条走廊,而走廊的尽头便是卫生间,这对于重视风水的人来说,不但容易吸纳污气,影响身体健康,还会阻挡财运的降临。

所以为了破除这种风水禁忌,我们可以如下图标记2的地方那样,在过道中间设计一个隔断,既能重新优化室内格局,又能起到美化空间的作用,使空间环境更加富于变化。

如果不想大刀阔斧地进行改造,不妨借鉴一下下面的设计方案。








● ● ●
欢迎转发
↓↓↓
▼

