打卡轻钢网红,“新中式”学校建筑
学校某种程度上类似一个小型的城市,建筑、交通、景观的相互交织形成了物理空间,不同年龄的学生与教师组成了小型的人类社会。如今,我们所居住的城市物理空间正随着人们生活方式的改变而不断地创造出新的事物,学校亦然。

校园远景
传统的校园规划突出教学区,忽视生活区和交流活动区,而对于新时代的教育建筑而言,校园不仅是传授知识和进行研究的场所,更是全面提高综合素质的生活环境。与传统的讲授式教学不同,现代的教学模式更注重体验式教学,主张学生从生活中去体验,从实践中去学习。

学校主入口

西侧沿街立面
正所谓“工欲善其事必先利其器”,我们将体验式教学这种时新的模式落实于校园建筑内,从空间硬件上加强了对新型教学模式的表达,令校方所期望的教学模式在良好的物理平台中得以实施。

平陵书院牌坊

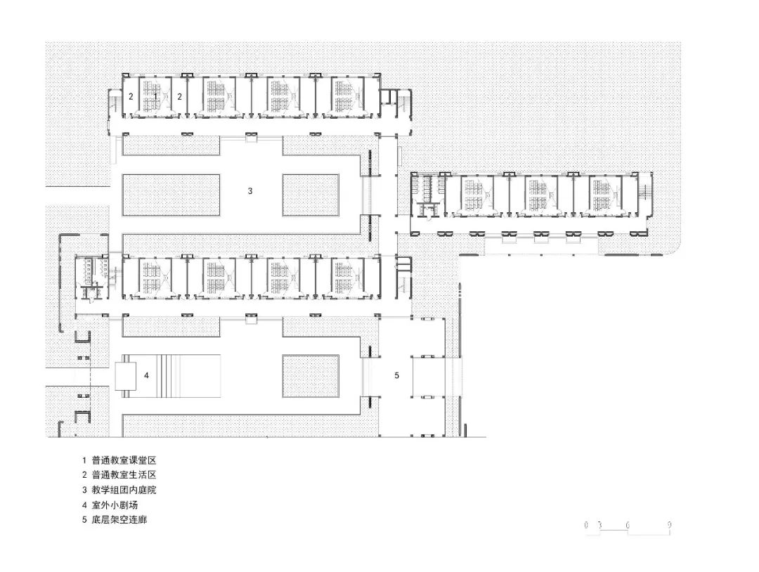
中央庭院

教学楼西

教学楼立面
根据实际情况,设计初始我们制定了三个设计目标:
1)从整体校园规划层面出发设计体验式教学空间,针对校方对体验式教学的理解与构想,结合学生的兴趣设计贯穿校园的体验式空间体系。为学生的交往交流与日常活动提供更多的可能性与多元化的空间。
2)从教学单元层面出发设计体验式教学单元,改变传统讲授式教学的教室布置形式,以一种变化的、非固定的单元教室取而代之,以适应日益变化的全新教学模式。
3)重视学校历史,决不因日新的教学模式变化而完全舍弃学校过去的历史文化底蕴。

教学内院

教学楼立面
我们摒弃了千篇一律的标准化、装配式建造方式,针对各种不同的新型教学模式,积极思考和探索个中差异与共性,不断尝试新的校园建筑空间。

教学内院

教学内院

教学内院

校园局部

校园局部

校园局部

校园局部

校园局部

校园局部
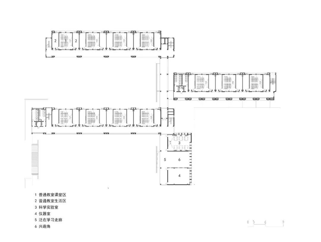
教学区一层平面-北

教学区一层平面-南

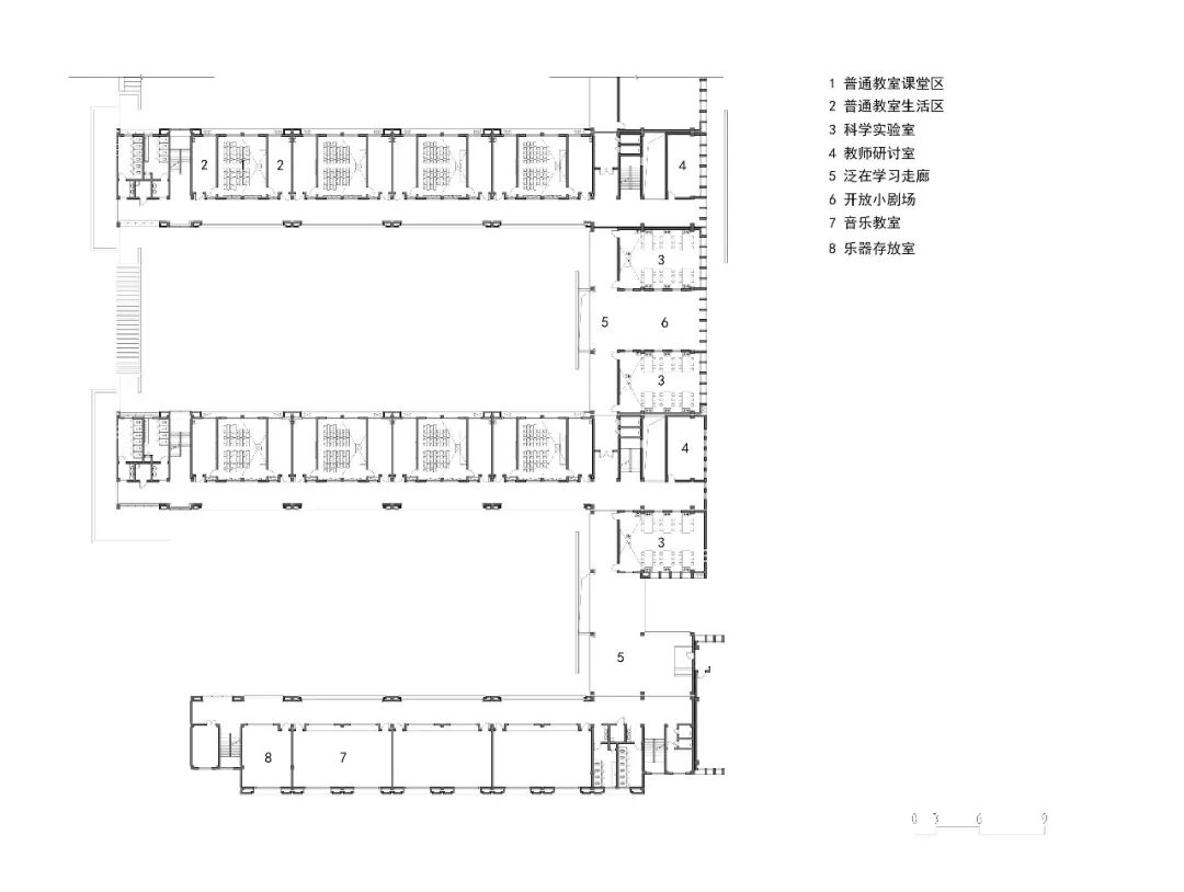
教学区二层平面-北

教学区二层平面-南

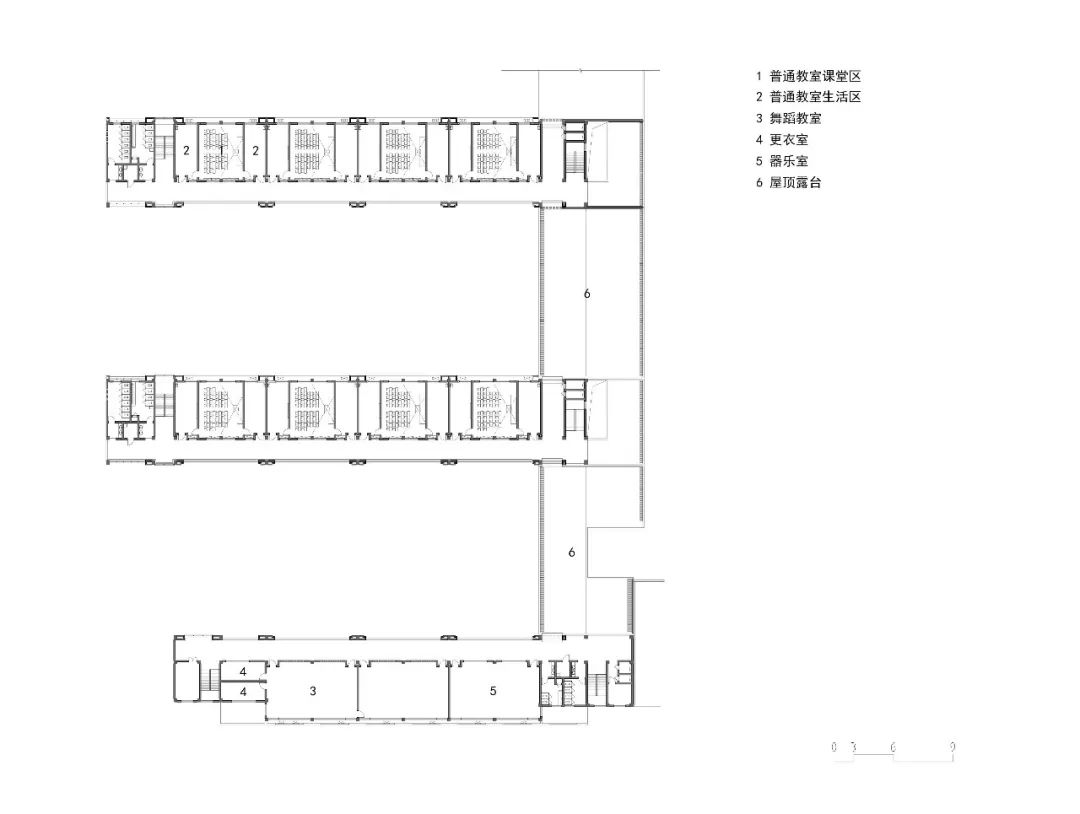
教学区三层平面-北

教学区三层平面-南

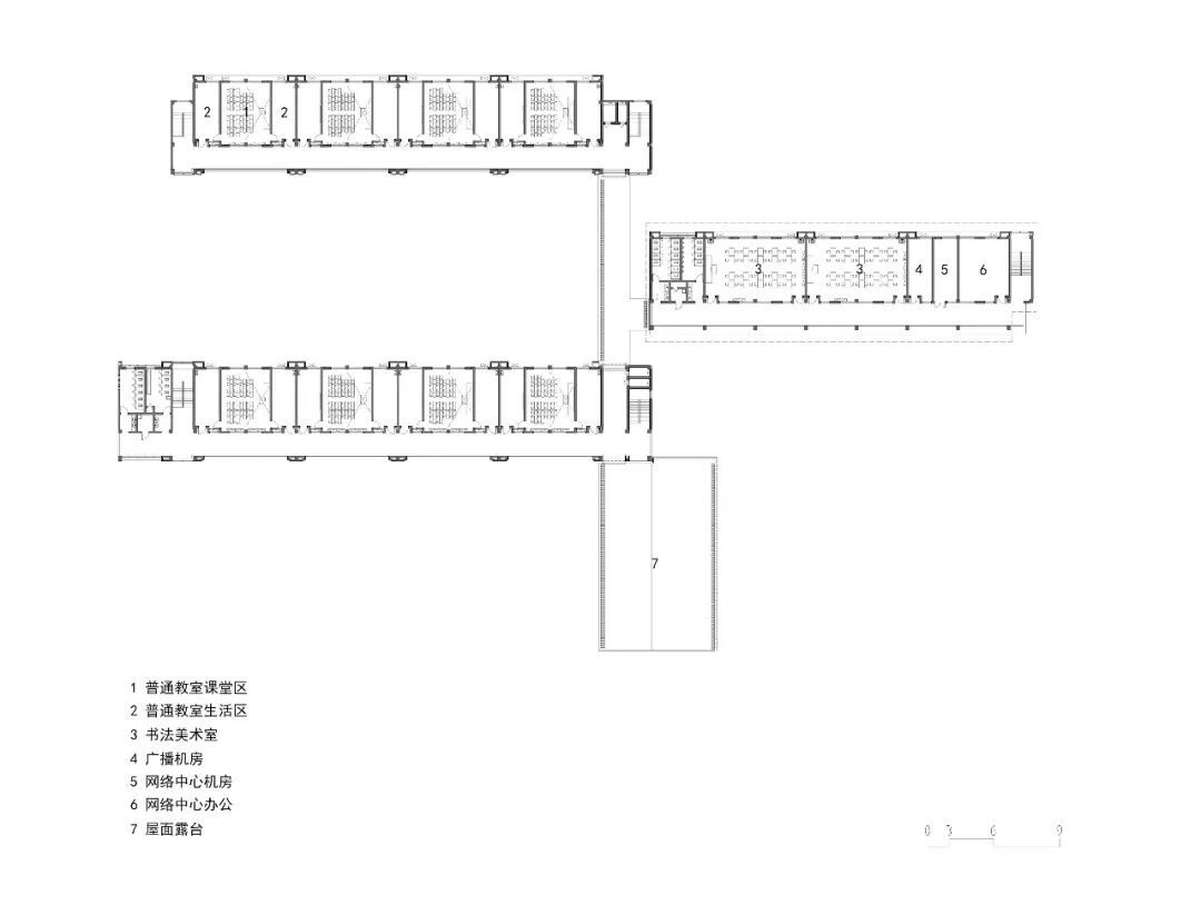
教学区四层平面-北

教学区四层平面-南

教学楼南立面

教学楼北立面

教学楼西立面

教学楼东立面

教学楼剖面图

泛学习走廊示意

体验式教学单元

来源:愿景科技
-- END --

