轻钢别墅35天完工,轻钢别墅施工详情
35天完工,轻钢别墅施工详情图,值得收藏!
(1)轻钢别墅的轻钢结构配件制作工厂化和机械化程度高,商品化程度高。
(2)轻钢别墅的现场施工速度快,不会影响到附近居民有利于文明施工。
(3)轻钢别墅的自重轻,抗震性能好。
(4)轻钢别墅的综合经济指标不高于钢筋混凝土结构。
(5)轻钢别墅相比砖混住宅来说,可以避免用土烧砖带来的资源浪费
(6)轻钢别墅因为轻钢结构的墙体厚度小,比砖混结构可以增加有效使用面积;

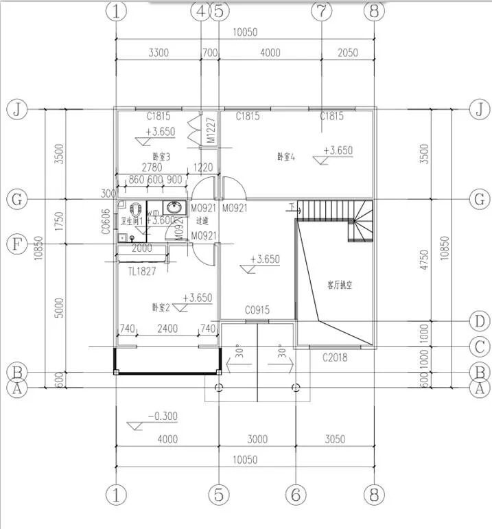
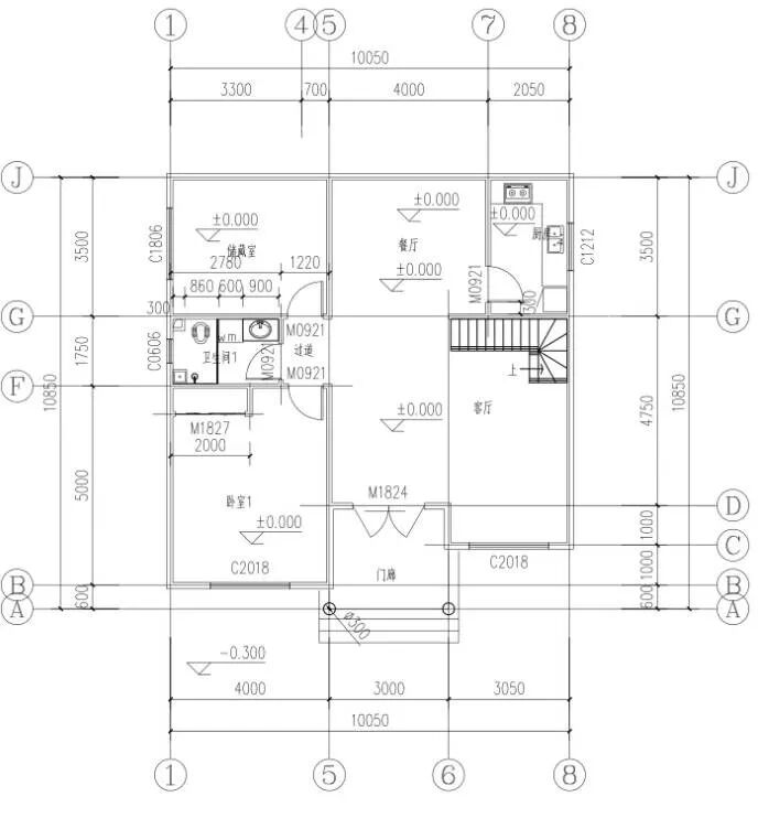
↑ 3D模型详图
↑圈梁施工
↑安装给排水管线
↑浇筑整体大板基础
↑ 大板基础浇筑完成并整平
↑ 基础养护完成
↑ 轻钢龙骨
↑OSB板
↑ 小型构件组装
↑ 楼板桁架组装
↑墙体组装
↑ 底边梁与基础的锚固连接
↑墙体柱与底边梁、基础的固定连接
↑ 内外墙体安装
↑安装墙体的过程中用水准仪找平
↑ 墙体安装
↑楼板桁架安装
↑二层墙体安装
↑屋架安装
↑主体轻钢龙骨完成
↑外墙构造示意图
↑楼板和屋面OSB板钉装
↑外墙OSB板钉装
↑外墙呼吸纸铺贴
↑挂网抹灰完成
↑安装真石漆一体板
↑屋面SBS防水层铺贴
↑屋面SBS防水层和沥青瓦铺装

↑内墙钉装石膏板

↑卫生间瓷砖装饰


