实例 | 轻钢别墅,关键节点做法及实战经验
本文结合某房地产开发项目的应用实例,从建筑构造等方面,详细介绍轻钢别墅的关键节点做法及实战经验。
本项目为北美体系轻钢别墅,单体建筑面积249~1400平方米,2~3层,层高3.2米,共197栋。
采用条形基础,主体为钢结构,来看看和国内常见的轻钢体系有什么不同。

《蒸压加气混凝土砌块建筑构造标准图》
(03J104)(原为SJ139)
《非承重混凝土小型砌块砌体工程技术规程》
(DBJ/T15-18-97)
《内隔墙建筑构造》
(J111~J114)
外墙:加气混凝土砌块+保温棉+内侧12厚石膏板。
居室内隔墙:轻钢龙骨+保温棉+双面12厚石膏板。
车库内侧隔墙:轻钢龙骨+保温棉+12厚防火石膏板。
卫/厨内侧隔墙:轻钢龙骨+保温棉+12厚防水石膏板。
卫生间、洗衣房、厨房处的石膏板为防水石膏板;
卫生间、洗衣房、厨房墙面刷防水胶后贴面砖;
二层卫生间及露台地面刷防水涂料两道,四周翻起200后再贴面材;


▲墙体做法大样
A,8~10厚地砖素水泥擦缝。
B,5厚水泥胶结合层。
C,地面刷851防水涂料两道,四周沿墙上翻200高。
D,20厚1:3水泥砂浆找平。
E,素水泥浆结合层一遍。
F,25或45厚C15砼,0.5%找坡,坡向地漏。
G,80厚钢筋网片砼垫层。
H,素土夯实。
A,1.5~2.0厚塑料地板。
B,202胶或XY401胶粘剂粘结。
C,107胶水+水泥腻子批嵌平整。
D,地面刷851防水涂料两道,四周沿墙上翻200高。
E,20厚1:3水泥砂浆找平。
F,素水泥浆结合层一遍。
G,38或58厚C15砼,0.5%找坡,坡向地漏。
H,80厚C20钢筋网片砼垫层。
A,进口地毯。
B,四面结合胶。
C,刷851防水涂料两道,四周沿墙上翻200高。
D,80厚钢筋网片砼垫层。
E,素土夯实。
A,水泥地板漆。
B,30厚C20细石砼随打随抹光。
C,20厚1:3水泥砂浆找平。
D,80厚C20钢筋网片砼垫层,0.5%找坡,坡向库门。
E,素土夯实。
A,8厚复合木地板。
B,沥青油毡一层。
C,刷851防水涂料两道,四周沿墙上翻200高。
D,80厚C20钢筋网片砼垫层。
E,素土夯实。
A,6厚地砖素水泥擦缝。
B,接合胶。
C,25厚细石砼找坡,最薄处大于10,
D,50厚压型钢板。
E,素土夯实。
A,8厚100×600复合木地板。
B,防潮地垫。
C,11.5厚OSB板。
D,76厚压型钢板。
A,进口地毯。
B,四面结合胶。
C,11.5厚OSB板。
D,76厚压型钢板。
A,6厚地砖素水泥擦缝。
B,15厚1:4干硬性水泥砂浆面撒素水泥一道。
C,1.5厚防水卷材两层。
D,851防水涂料两道。
E,刷基层处理剂一道。
F,15厚1:2.5水泥砂浆找平。
G,30厚水泥膨胀珍珠岩,2%找坡。
H,50厚压型钢板。

▲楼面及吊顶做法大样

▲楼地面做法大样
塑钢门窗均采用乳白色型材,门为6厚净面双层玻璃,窗为5厚净面双层玻璃。
大门为铁质模压门,卧室门,卫生间门,佣人房门,厨房门均为成品木质模压门。
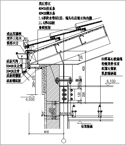
英红彩瓦,40*25挂瓦条,40*20顺水条,1.5厚防水卷材2层,端头包住雨水沟内檐,11.5厚OSB板,钢屋架,保温棉(带锡箔密闭层),钢丝网,轻钢龙骨,12厚防火石膏板。

▲屋面、檐口及吊顶做法大样
建筑防火等级按照规范定为二级。对所有结构受力构件均涂超薄膨胀型防火涂料,涂层厚度要求满足《建筑设计防火规范》GBJ16-87的要求,做到承重柱、梁、屋架和檩条分别满足2.5、1.5、0.5h的耐火极限要求。
钢结构构件出厂前必须做热镀锌防锈处理,双面镀锌量不小于275 g/m2。同时要求构件安装完成后必须做构件表面防锈检查,破坏的面层补刷防锈漆,并刷酚醛瓷漆面漆。防锈漆与超薄膨胀型防火涂料相容。
室外保温对造型复杂的别墅较为困难,所以主要采用室内保温。屋面及天花采用双重保温隔热措施,先在屋面下直接做一层保温层,尽量减少屋面日照的热辐射作用。在吊顶上部紧贴着天花板做一层保温层起到直接的保温效果。
外墙的保温与屋面保温相似,在轻钢龙骨石膏板内墙面与钢结构之间密布保温棉。墙体材料则选择了保温性能较优的加气混凝土砌块,起到保温作用。
底层地面的防潮,选择耐水性好的保温材料铺设于地面装饰层下。房八斗看到为避免钢结构的冷桥作用而出现室内结露的现象,本项目在内墙石膏板及吊顶石膏板和保温材料之间做一层隔汽膜作为防湿措施。并且要求隔汽膜必须做到密闭,铺设时的相互搭接保证100mm以上的宽度。
考虑到混凝土基础中的浸透水会对钢结构柱脚形成腐蚀,在基础混凝土与柱脚之间设有聚乙烯塑料膜作为防湿措施。
为了防止室内的水蒸汽上升到吊顶内,在钢屋架上或柱子的上端出现结露现象,在吊顶上屋架内还设置了通风装置。选择比较柔软的保温材料,以便在施工时堵实天花的各种缝隙,杜绝室内水蒸汽逸入吊顶之内。
楼面:吸音地毯+防潮层+钢龙骨+隔音棉+12厚石膏板;
内隔墙:轻钢龙骨+保温棉+双面12厚石膏板;
外墙体的内面:加气混凝土砌块+保温棉+12厚石膏板;
车库内侧隔墙:轻钢龙骨+保温棉+ 12厚防火石膏板;

别墅最复杂的地方就是屋架部分,屋面有三面坡,四面坡,五面坡,甚至六面坡。建筑造型复杂,导致结构做法也比较复杂。钢结构屋面存在多根屋面梁汇交的情况。屋面斜钢梁多根汇交,采用Φ102X7钢管作为连接接点,在Φ102X7工厂焊接8厚钢连接板,采用高强螺栓与屋面斜钢梁连接。

▲屋面钢结构梁汇交施工现场

▲屋面钢结构梁汇交节点大样
钢结构梁柱均采用大通高频焊接H型钢。梁腹板采用高强螺栓与柱上耳板连接, 上下翼缘熔透焊, 焊缝等级为二级, 超声波探伤。
主要梁型号为:
H250X150X4.5X6
H200X100X4.5X6
H150X100X4.5X6
主要柱型号为:
H100X100X4.5X6
2H100X100X4.5X6
H100X100X6X8

▲梁柱刚接节点大样
在条形基础施工预埋4Φ20X480锚栓,钢柱柱脚与预埋锚栓连接定位后浇到C20混凝土。

▲钢柱与基础梁连接大样
第一,施工中容易出现砌块达接长度过小、拉接钢筋不按要求设置以及裂缝等质量通病产生。应严格按规范施工,加强施工过程监管、构造措施及操作人员培训。
第二,加气混凝土砌块露天堆放时,要采取遮盖措施及四周做好排水处理,避免雨水淋湿。现场施工比较容易出现砌块不进行浇水湿润或浇水不够,砌块砌筑前24h浇水湿润,直到表面充分湿润为止,砌筑时要达到面干状态,含水率小于15%。
第三,加气混凝土砌块施工,比较容易出现砌块水平灰缝、垂直灰缝饱满度不足。在砌筑过程中,应采用“挤法”或“灌浆法”使竖缝灰浆饱满,一边砌筑,一边进行补缝、勾缝处理。在砌筑完上层砌块后,应隔层砌块对灰缝进行二次勾缝。待砌体砌筑完毕至少7天后用红砖进行顶部斜砌(角度60°~75°)顶紧,并用砂浆填实。
第四,由于坡屋面的原因,本项目墙体没有在顶部设计圈梁,导致部分房屋墙体出现裂缝。建议墙体顶部做钢筋混凝土圈梁压顶。
第五,外墙及隔墙均采用加气混凝土砌块+保温棉+12厚石膏板做法。业主在使用中在墙面安装挂钩等均不方便,导致业主对该做法的不认可及投诉。建议内墙面改用其他较厚轻质墙板,或安装专用挂钩龙骨并给业主提供专用挂钩龙骨安装位置图,方便业主二次装修。
第六,楼面主要采用76厚压型钢板+11.5厚OSB板做法。相比之下改为压型钢板+钢砼结构做法效果会更好。
第七,本项目层高3.2米,采用中央空调。空调管及机电管线均穿吊顶。实际装修后净高2.6米左右,在别墅大户型中显得比较矮。建议大户型别墅层高设计为3.6~3.9米会比较舒服。
第八,屋面排水沟采用成品塑料天沟,车库门采用压型成品自动卷闸门。使用3年左右出现发黄及变形现象。应加强制作材质的选择和厂家生产能力的考察。

