资料 | 低层轻型钢结构住宅体系构造图集
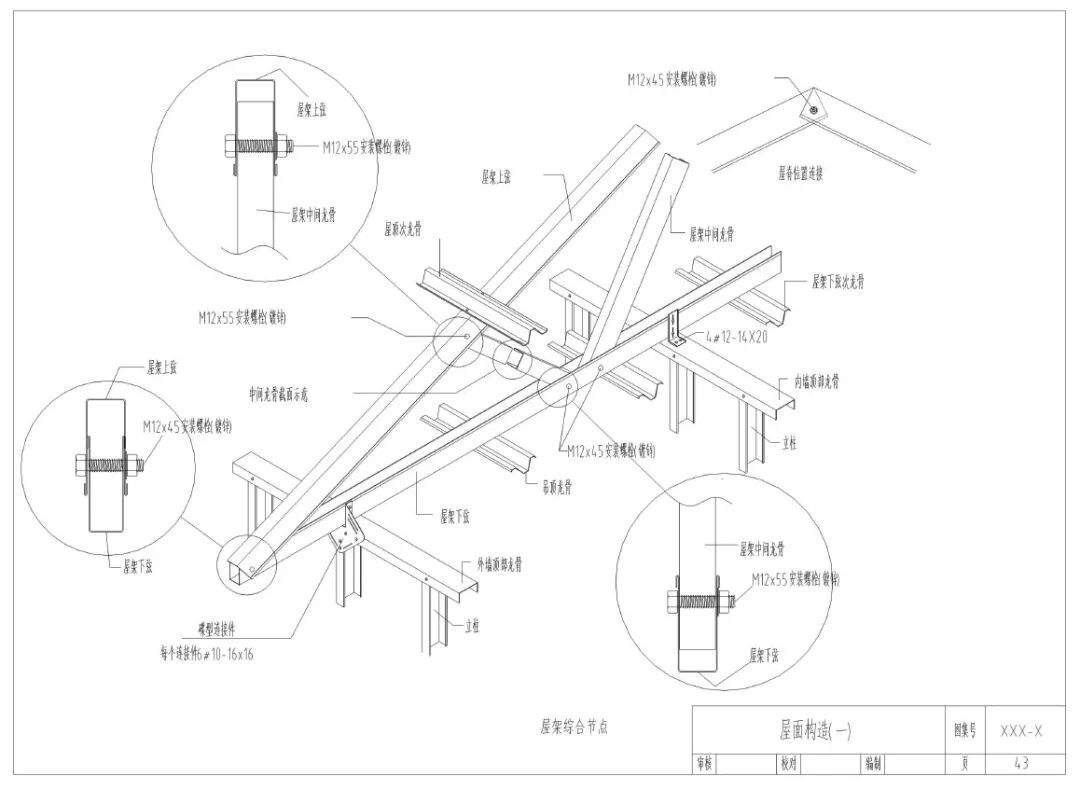
图集适用于带地下室的两层或局部三层以下的独立或联排轻型钢结构装配式住宅。其平面尺寸最大长度为18m,宽度为11m,承重墙高度为3m,屋面坡度取值宜在1:4~1:1的范围内,斜挑梁悬梁尺寸最大为300mm,其他悬梁构件悬挑最大尺寸610mm。
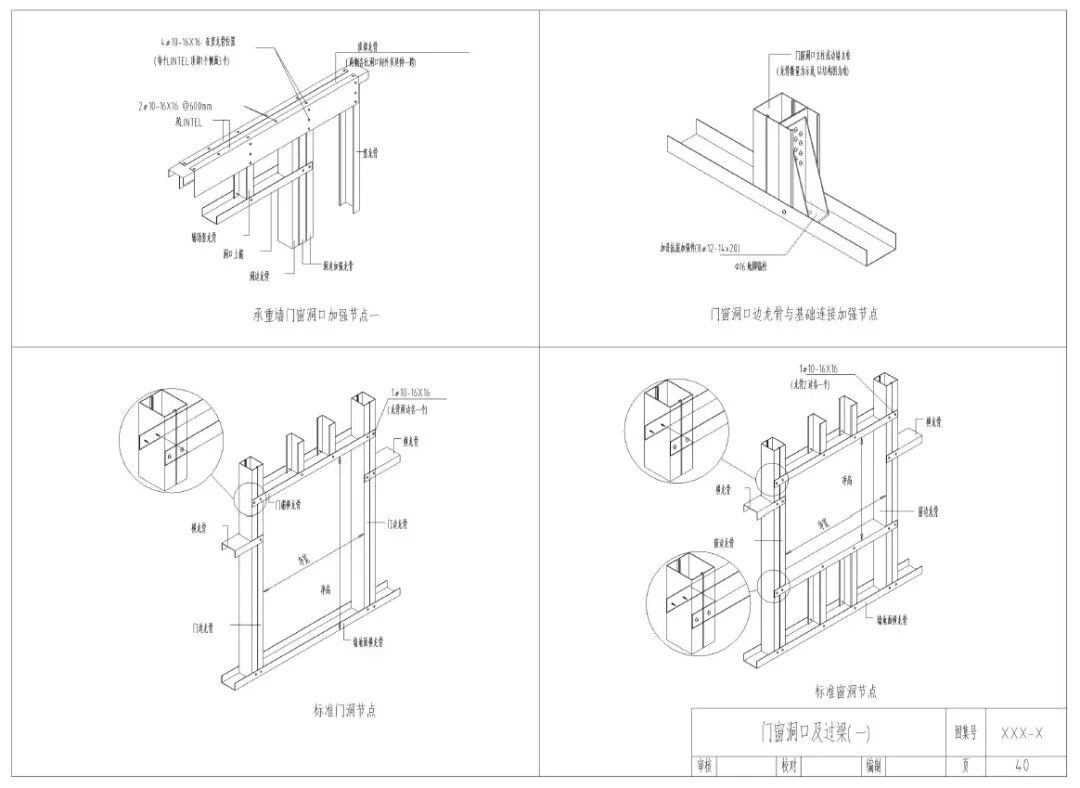
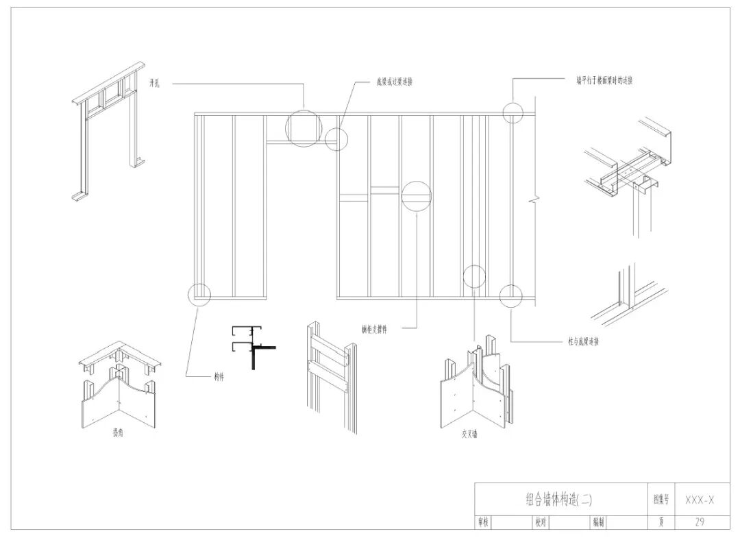
图集结构节点构造措施主要包括墙体、楼盖、屋盖及维护结构的连接。
图集组合梁、柱连接方式采用焊接和紧固件连接,其墙面、楼面及屋面构造所选用的板型连接件方式为紧固件连接。
图集适用于抗震设防烈度≤9度的地区。
图集在强台风地区应谨慎使用,如需使用,设计者必须采取适当的防风措施,亦应采取加强连接的构造措施。
点我咨询留下您的需求,我会第一时间回复您!
点我咨询













