二层新中式别墅,大面宽尊贵豪华!

设计来源:南城爵

建筑信息
开间:19米
进深:15米
建筑面积:351平米

建筑主体为新中式风格,外立面主要采用文化石装饰,米白色干净简约,为整体增加一种富丽的感觉。

俯视的角度

建筑右侧面

建筑左侧面

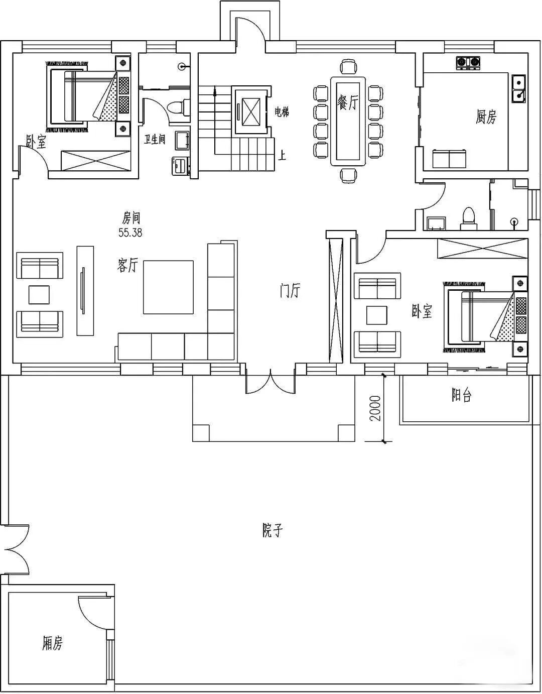
平面布局效果:


上一篇:农村建房不能建院子?是时候收藏这栋独立别墅了!
下一篇:【分享】264平方米装配式钢结构别墅设计图