【分享】264平方米装配式钢结构别墅设计图
开间:14米
进深:11.5米
占地面积:141平方米
建筑面积:264平方米
层数:2层
主体结构:装配式钢结构
屋顶形式:坡屋顶

一层西侧设计两间卧室,公卫位于中间,方便使用。由于空间变化、功能分区使得卧室居住环境极佳。东侧为公共空间,客厅面积适中,临近过厅和楼梯间。厨房与餐厅紧邻,为方便使用,厨房位置开有后门。
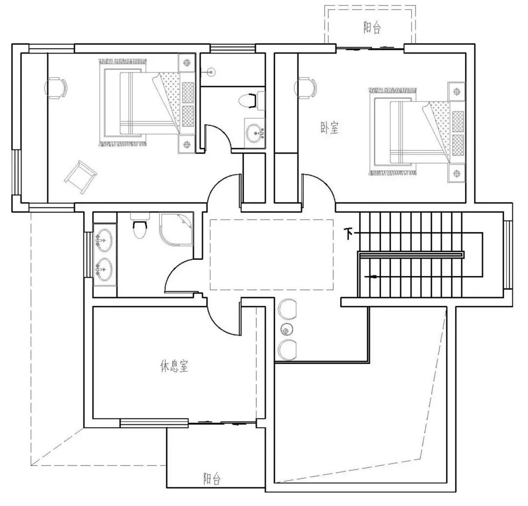
二层主要为起居空间,北侧两间卧室并列,南侧预留一间休息室,后续业主可根据需求进行房间功能调整。由于客厅为挑空形式,因此二层和一层交流增多。
屋顶为欧式经典的四坡屋顶,在空间凹凸变化部分利用局部凸起进行强调,从而增加立面层次感,使得建筑整体视觉上十分丰富。
二层阳台部分以玻璃围栏增加通透性,挑空客厅的窗户选用拱形窗,室内采用白色窗帘,配合窗户部分的黑色分隔,展现了极美的视觉效果。
庭院预留停车空间,靠近卧室的西南角设计有休息平台,其余空间以草坪铺地,打造出错落有致的空间感。侧面过道点缀两棵花树,自成一景。





— THE END —

