农村经典简欧风格二层别墅设计,挑空客厅配落地窗,既实用又气派!
随着春节后天气逐渐变暖,建房旺季也越来越近,不少人都在筹划着今年盖新房的事。农村盖房子就怕各种限制,限高度,限面积,盖出来的效果不尽人意又如何处理,这些问题在今天要给大家展示的户型里,几乎得到了全部解决,既实用又适用于农村的生活。
如果你想进一步了解以下户型,可扫文末二维码与我们联络,获取详细的房屋估价、建装材料、施工报价等资料。
建筑开间:14米
建筑进深:11.5米
占地面积:141平方米
建筑面积:264平方米
建筑层数:2层
屋顶形式:坡屋顶
建筑整体为简欧风格,立面选用文化石和真石漆进行装饰,建材转变勾勒出空间层次,使得建筑视觉上更加舒适。同时,业主在易盖房建材商城选择的两种建材颜色相近,让建筑整体性得到保证。
一层西侧设计两间卧室,公卫位于中间,方便使用。由于空间变化、功能分区使得卧室居住环境极佳。东侧为公共空间,客厅面积适中,临近过厅和楼梯间。厨房与餐厅紧邻,为方便使用,厨房位置开有后门。
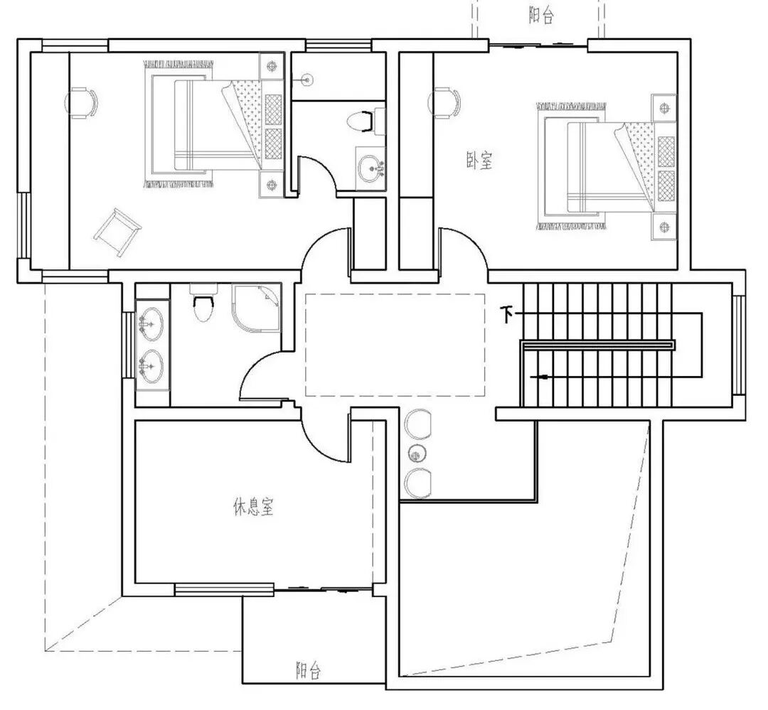
二层主要为起居空间,北侧两间卧室并列,南侧预留一间休息室,后续业主可根据需求进行房间功能调整。由于客厅为挑空形式,因此二层和一层交流增多。

屋顶为欧式经典的四坡屋顶,在空间凹凸变化部分利用局部凸起进行强调,从而增加立面层次感,使得建筑整体视觉上十分丰富。
二层阳台部分以玻璃围栏增加通透性,挑空客厅的窗户选用拱形窗,室内采用白色窗帘,配合窗户部分的黑色分隔,展现了极美的视觉效果。

庭院预留停车空间,靠近卧室的西南角设计有休息平台,其余空间以草坪铺地,打造出错落有致的空间感。侧面过道点缀两棵花树,自成一景。

如果您喜欢以上房型、或想了解
自建房材料、价格及装配式建筑项目
可下方二维码与我们联络

