沉稳大气有意境的中式别墅,建一栋邻居羡慕不已


 

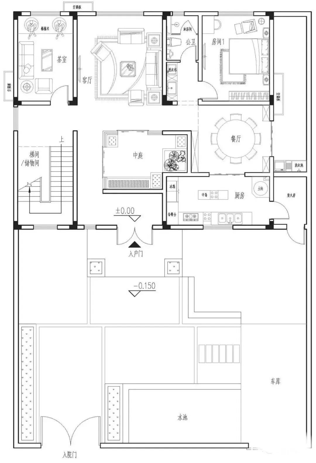
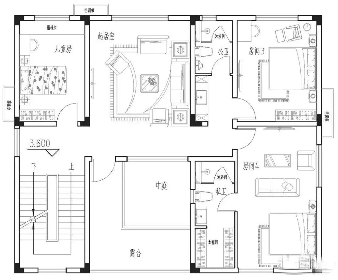
1





 

2





 

3





 

4





 

5



上一篇:2021年最新户型:回乡建别墅,光宗还耀祖!
下一篇:5款别墅精美绝伦,建栋享受生活的灵性