分享|8套二层中式风格装配式钢结构别墅设计
户型一

基本信息
开间:12.4米
进深:12.7米
占地面积:148.5平方米
建筑面积:431.9平方米
主体结构:装配式钢结构
平面布局

一层设有:堂屋、客厅、餐厅、厨房、生活阳台、2卧室、卫生间、储藏室、门厅、观景平台

二层设有:起居室、主卧(附卫生间)、3卧室、卫生间、阳台
户型二

基本信息
开间:13.7米
进深:9.2米
占地面积:126平方米
建筑面积:207.6平方米
主体结构:装配式钢结构
平面布局
一层设有:门廊、客厅、餐厅、老人房、厨房、卫生间、楼梯间、露台

二层设有:主卧(阳台、衣帽间)、客房、儿童房、洗手间、露台
户型三

基本信息
开间:14.9米
进深:10.3米
占地面积:106平方米
建筑面积:200平方米
主体结构:装配式钢结构
平面布局

二层设有:主卧室(书房、衣帽间、卫生间)、2次卧室、卫生间
户型四

基本信息
开间:14.1米
进深:11.3米
占地面积:132.4平方米
建筑面积:273.33平方米
主体结构:装配式钢结构
平面布局
一层设有:门厅、前厅、客厅、餐厅、厨房、老人房(卫生间)、卧室、公卫、柴火房

二层设有:家庭厅、4卧室、公卫、2露台
户型五

基本信息
开间:15米
进深:13.6米
占地面积:131.1平方米
建筑面积:262.2平方米
主体结构:装配式钢结构
平面布局

一层设有:客厅、餐厅、厨房、老人房(附卫生间)、公卫、次卧、庭院

二层设有:主卧套房(衣帽间、卫生间)、儿童房、公卫、次卧、书房
户型六

基本信息
开间:9.9米
进深:9.6米
占地面积:95平方米
建筑面积:163.78平方米
主体结构:装配式钢结构
平面布局
一层设有:门厅、客厅、餐厅、厨房、洗衣间、储藏室、卫生间、和室
二层设有:主卧(衣帽间、卫生间)、儿童房、公卫、客房、露台
户型七

基本信息
别墅占地:12.8mX10.7m
占地面积:136.96㎡
建筑面积:237㎡
主体结构:装配式钢结构
平面布局

二层设有:主卧(附卫生间)、次卧(阳台)、客卧、起居室、露台、公卫
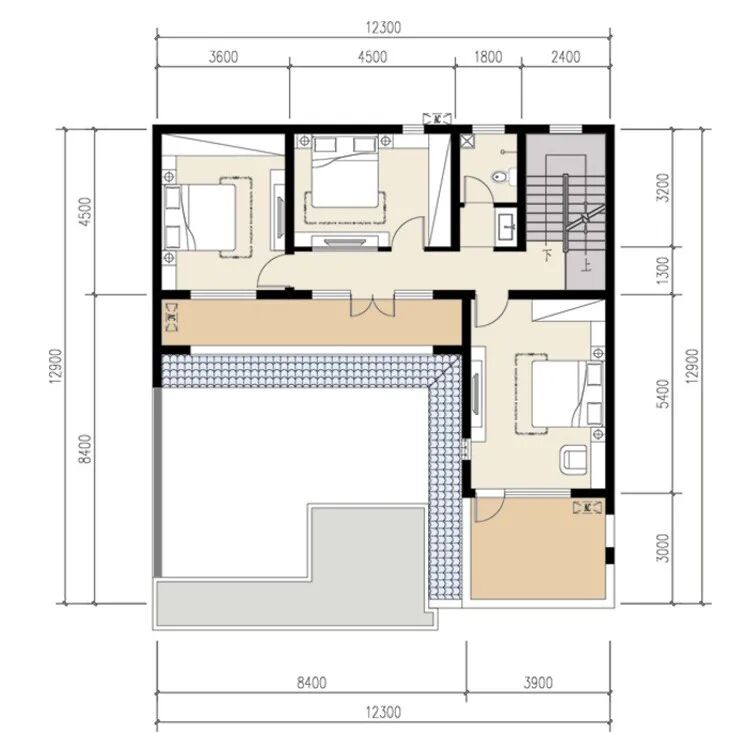
户型八

基本信息
开间:12.3米
进深:12.9米
占地面积:158平方米
建筑面积:215平方米
主体结构:装配式钢结构
平面布局

一层设有:客厅、餐厅、厨房、卫生间、老人房
二层设有:3卧室、卫生间

