八套二层装配式钢结构别墅设计图分享
户型一
开间:16.2米
进深:11.4米
占地面积:191平方米
建筑面积:382.7平方米
主体结构:装配式钢结构

▲效果图

一层:门厅、客厅、2卧室、厨房、卫生间、走廊;

二层:客厅、主卧(附书房,卫生间)、次卧、卫生间、阳台。
户型二
开间:13.5米
进深:11.8米
占地面积:140.7平方米
建筑面积:280.4平方米
主体结构:装配式钢结构

▲效果图

一层:门厅、客厅、餐厅、厨房、卧室、卫生间;

二层:客厅(附阳台)、卧室(附卫生间)、卧室、书房、卫生间、阳台。
户型三
开间:13.2米
进深:12.6米
占地面积:154.56平方米
建筑面积:383.5平方米
主体结构:装配式钢结构

▲效果图

一层有:门厅、客厅、神位、厨房、餐厅、储藏间、两间卧室、一间卫生间;

二层设有:棋牌室、四间卧室、一间卫生间、一个阳台。
户型四
开间:16.8米
进深:10.5米
占地面积:161平方米
建筑总面积:313平方米
主体结构:装配式钢结构

▲效果图

一层设车库、堂屋、客厅、厨房、2卧室、卫生间、储藏室;

二层设4卧室、卫生间、活动室、客厅、露台。
户型五
开间:13.4米
进深:11米
占地面积:147平方米
建筑面积:260平方米
主体结构:装配式钢结构

▲效果图

一层设玄关、客厅、餐厅、厨房、卫生间、2卧室;

二层设客厅、3卧室、书房、卫生间、露台、阳台等。
户型六
开间:15米
进深:10米
占地面积:155平方米
建筑面积:310平方米
主体结构:装配式钢结构

▲效果图

一层设大堂、客厅、餐厅、厨房、杂物间、3卧室、2卫生间;

二层设客厅、5卧室、2卫生间、阳台。
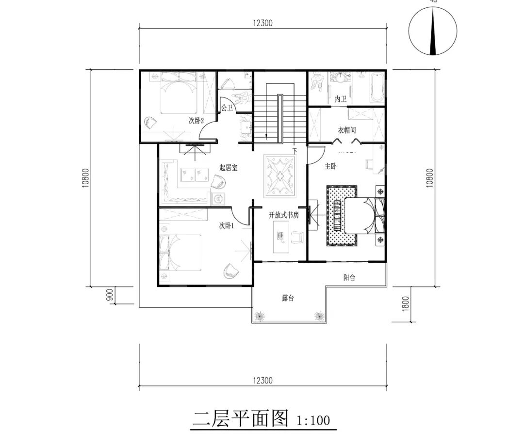
户型七
开间:12.3米
进深:12.6米
占地面积:143.2平方米
建筑面积:290.88平方米
主体结构:装配式钢结构

▲效果图

一层:客厅、餐厅、厨房、公卫、老人房(附卫生间)、阳台;
二层:起居室、书房、2次卧、公卫、主卧(附衣帽间、卫生间)、阳台。
户型八
开间:12.1米
进深:12米
占地面积:116平方米
建筑面积:213.53平方米
结构形式:装配式钢结构

▲效果图

一层:会客厅、卧室(附卫生间)、2卧室、厨房、餐厅、卫生间;

二层:起居室、卧室(附卫生间)、卧室(附书房)、卧室、卫生间、晒台。

