90后成建房主力军,这6套二层现代别墅,就是最好的选择
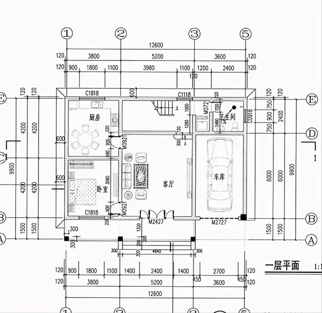
农村小别墅户型一
占地尺寸:12.6x9.9米
占地面积:110.94㎡
建筑面积:220.39㎡
效果图



农村小别墅户型二
占地尺寸:12.4x12m
占地面积:148㎡
建筑面积:251.13㎡
建筑情况:4室2厅2卫
效果图


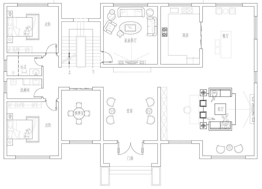
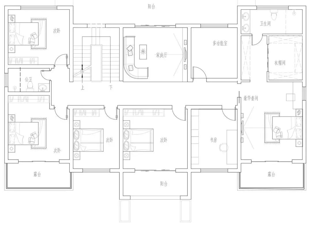
农村小别墅户型三
开间:19.9米
进深:12.2米

平面图



农村小别墅户型四
开间:15米
进深:15米

平面图



农村小别墅户型五
开间:9米
进深:12.7米

平面图




农村小别墅户型六
面宽:15.3米
进深:8.4米
建筑面积:258.0㎡
建筑层数:2层
屋顶形式:坡屋顶

平面图



