传统与现代经典相融,5套新中式别墅设计,车库庭院俱全
现在的农村自建房,大多数为欧式、美式、现代等风格,而传统的中式风格别墅则并不多见。其实,在所有风格的自建房中,中式风格才是最适合我们国人居住的理想家园,舒适度与品质感都尤为突出。 在建筑设计师们恒久 创新之下, 在传统中式风格基础上,将现代化气息融入,如今的新中式别墅,真可谓掀起了别墅建筑的新篇章!
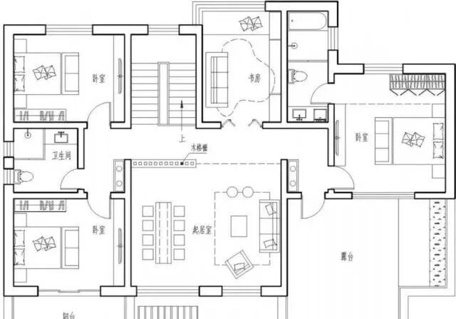
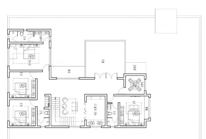
建筑层数:2层
建筑风格:新中式
建筑尺寸:13.4mx11.3m
建筑面积:266.38㎡
占地面积:139.89㎡
户型概况:5室3厅3卫1厨1储物间1茶室
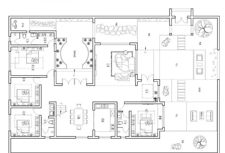
建筑层数:2层
建筑风格:新中式
建筑尺寸:17.3mx13.1m
建筑面积:348㎡
占地面积:226㎡
户型概况:7室3厅5卫1厨1书房1阳台1露台
建筑层数:3层
建筑风格:新中式
建筑尺寸:14.4mx13.4m
建筑面积:690㎡
占地面积:193㎡
户型概况:9室2厅8卫1厨3衣帽间1阳台1露台
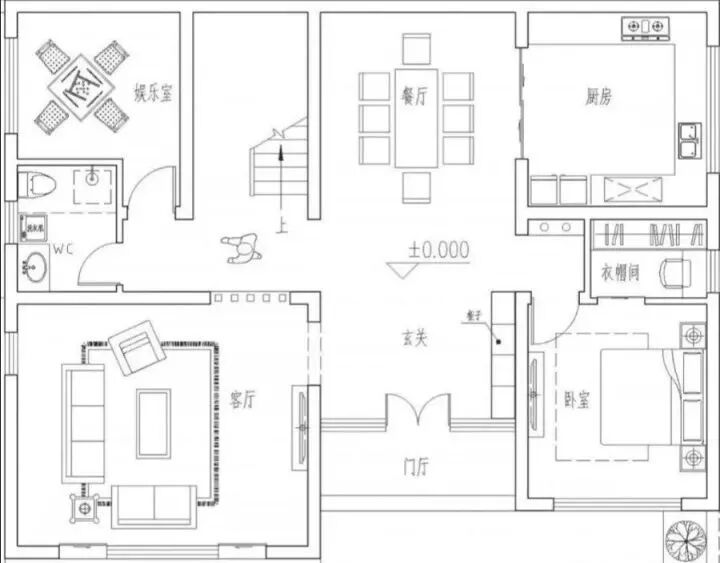
建筑层数:2层
建筑风格:新中式
建筑尺寸:26.0mx17.3m
建筑面积:363㎡
户型概况:8室3厅5卫1厨2衣帽间1棋牌室1露台
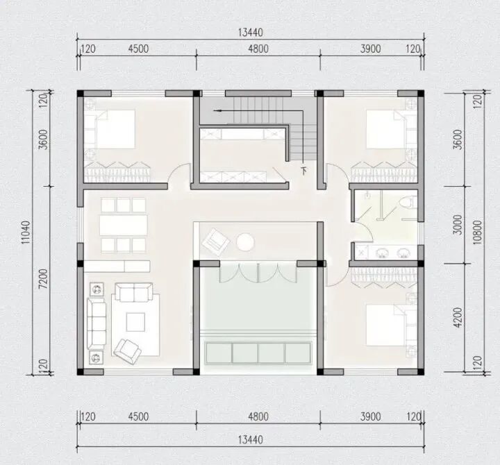
建筑层数:3层
建筑风格:新中式
建筑尺寸:13.4mx10.5m
建筑面积:326㎡
占地面积:140㎡
户型概况:5室3厅3卫1厨2衣帽间2阳台1露台
如果您喜欢以上房型、或想了解
自建房材料、价格及装配式建筑项目
请扫下方二维码或直接致电

