精选7款农村别墅,回农村25万盖房养老,你看哪套更好?
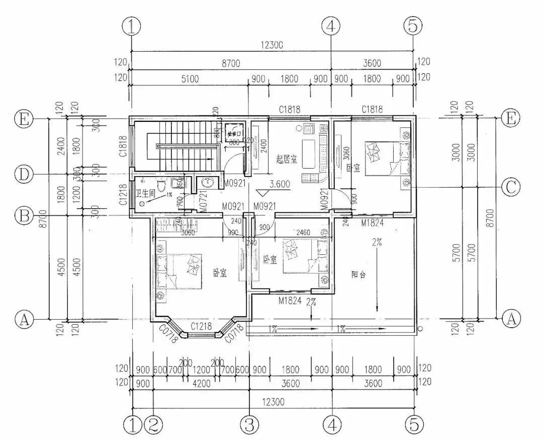
第一套:
农村别墅基本信息
占地尺寸:12.3米*9.4米 占地面积:106.71平方米 建筑面积:195.9平方米 建筑结构:砖混结构 主体造价:22万



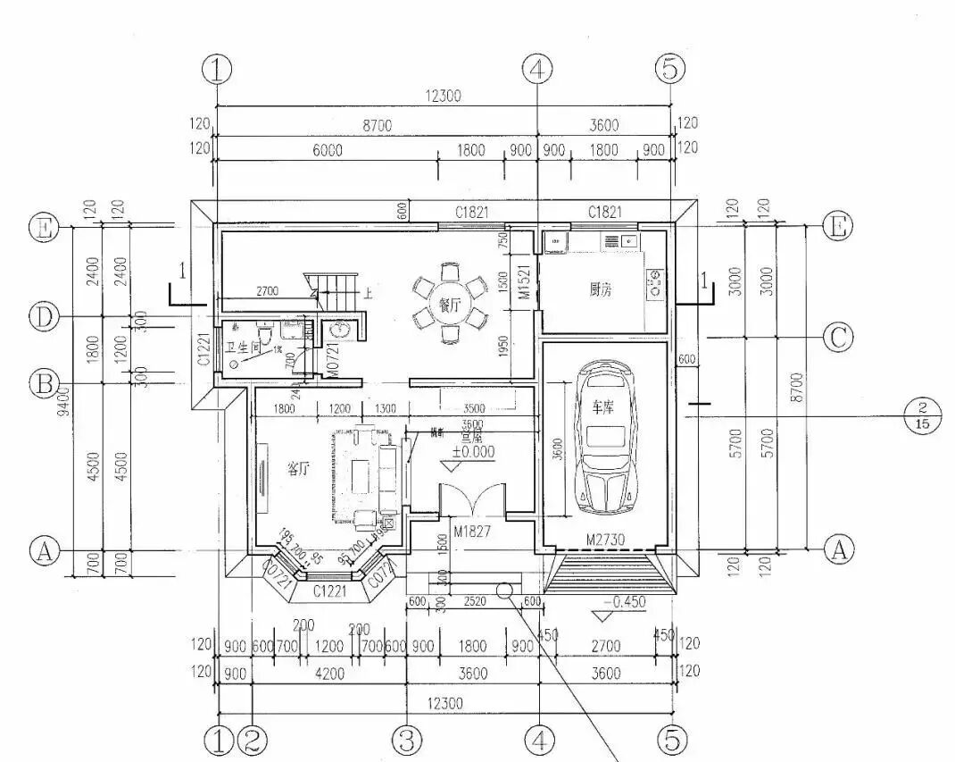
第二套:
农村别墅基本信息
占地尺寸:16.6米×8.5米 占地面积:141.1平方米 建筑面积:290平方米 主体造价:40万以上



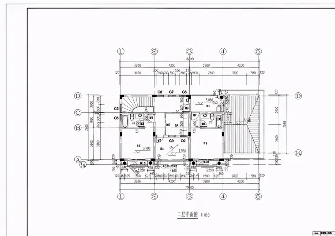
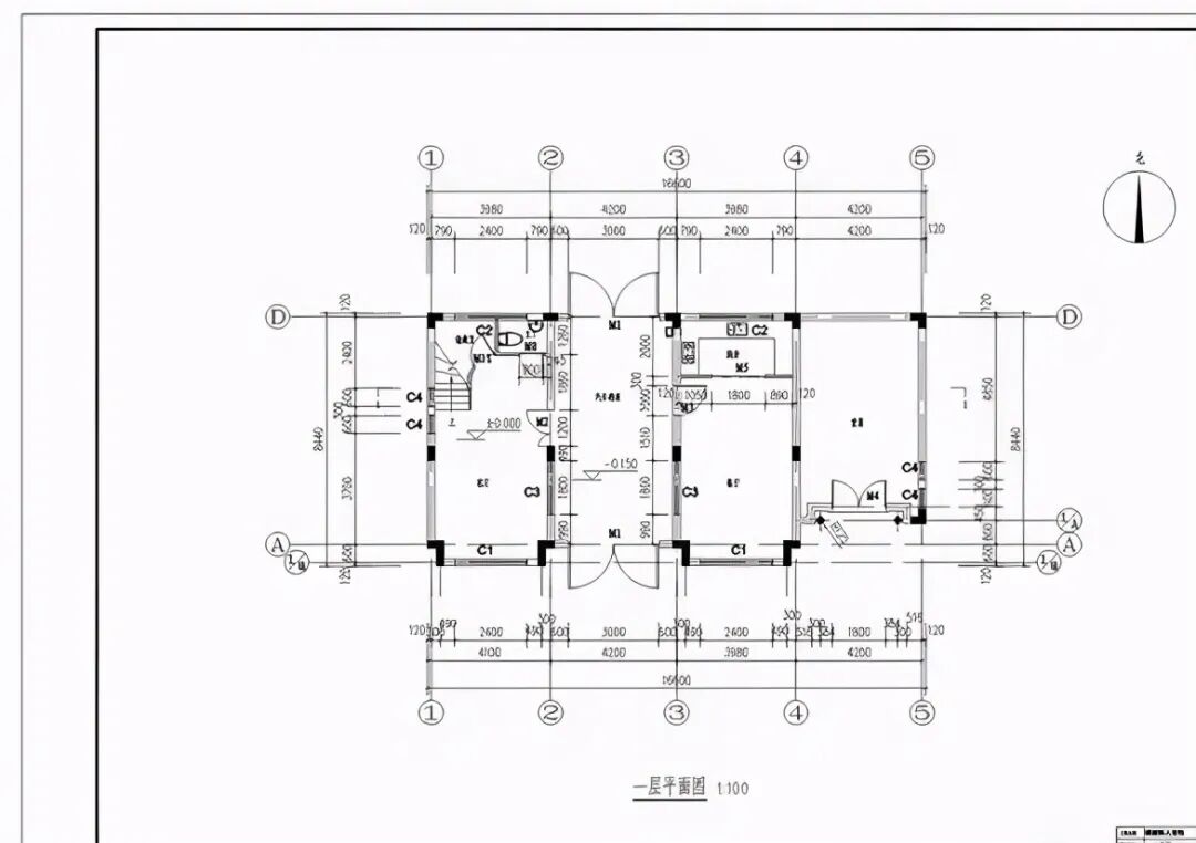
第三套:
农村别墅基本信息
占地尺寸:16.6米×8.5米 占地面积:141.1平方米 建筑面积:290平方米 主体造价:40万以上


二层设计有二间卧室带卫生间,一间书房,一个阳台和一个露台。

第四套:
农村别墅基本信息
占地尺寸:17.6米*13米 占地面积:220.45㎡ 建筑面积:425.93㎡ 造价估算:30-35万


建筑平面预览图

第五套:
农村别墅基本信息
占地尺寸:21.3x9.8米 占地面积:126.30㎡ 建筑面积:477.39㎡ 造价估算:28万





第六套:
农村别墅基本信息
占地尺寸:13.2x14.2米 占地面积:187.44平方米 建筑面积:520平方米, 造价估算:30-35万左右



第七套:
农村别墅基本信息
占地尺寸:12.9x11.4米 占地面积:139.95㎡ 建筑面积:362㎡ 造价估算:32-36万
效果图





以上价格仅供参考 具体价格以实际为准

