小宅基地也有大排场!7款120㎡二层别墅美得不像话,村长都眼红

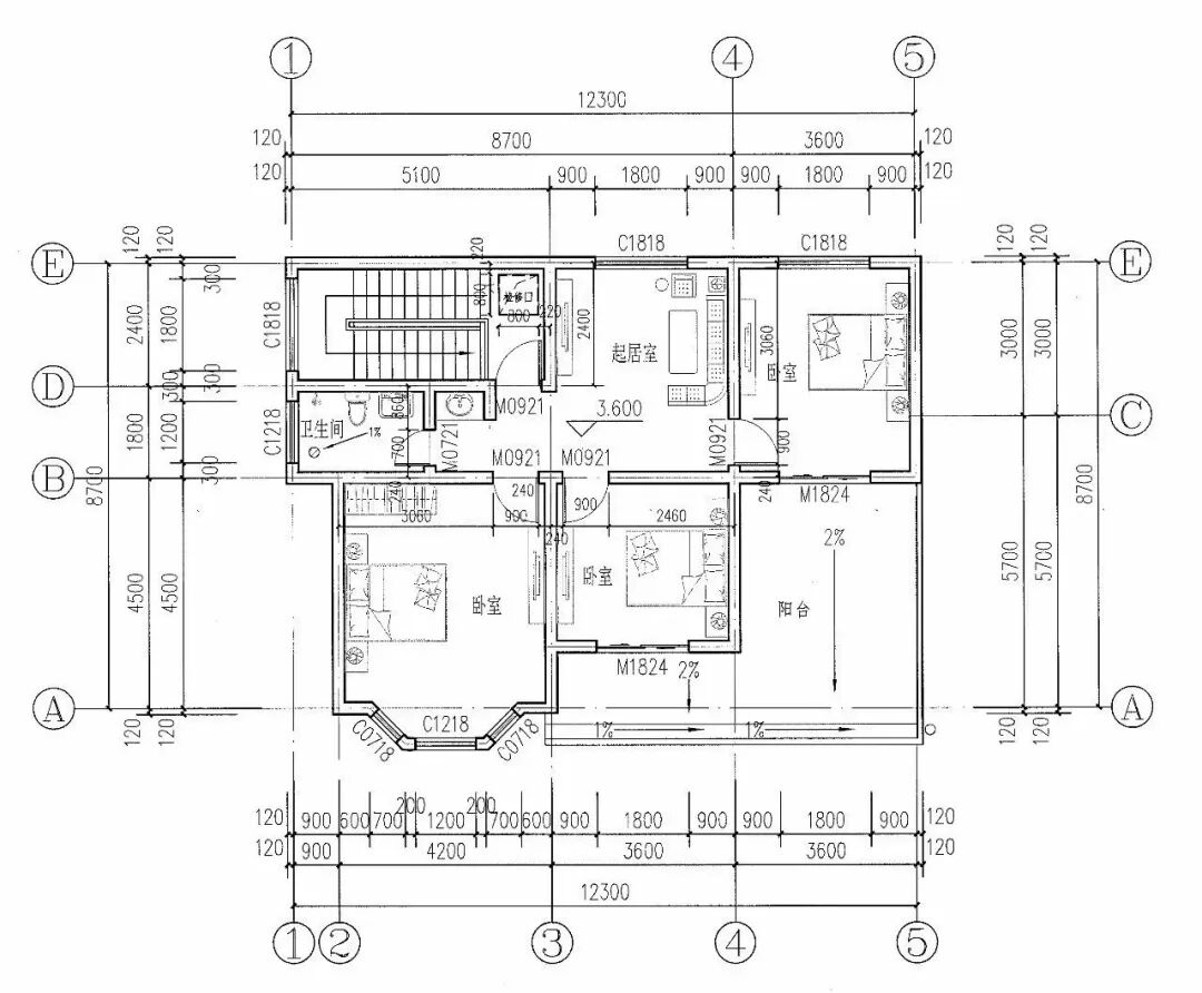
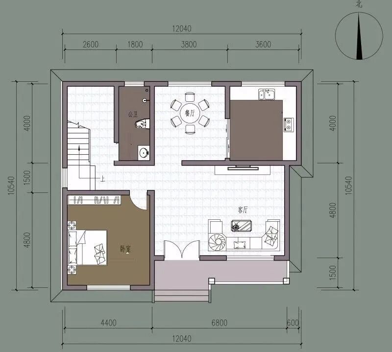
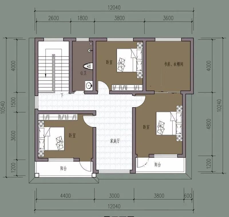
中国人骨子里深藏着“落叶归根”的情怀,所以越来越多的人喜欢在农村建房,如果宅基地面积不是很大,不能建一栋有排场的别墅实在是一种遗憾,现在为大家介绍7款小面积大气场的高品质别墅,感兴趣的朋友可以收藏起来!

1


2


3




4


5



6



7


上一篇:户型鉴赏:故乡山水最是妙,5款三层别墅建栋生活乐逍遥
下一篇:难怪轻钢别墅那么火,看完这10款我也彻底心动了!