还在为建房发愁!强烈推荐这7款别墅
别墅怎么能少得了大露台,一个大的屋顶露台,既增加了别墅的美感,实用性又很强,所以露台已成为别墅豪宅的标配,今天给大家精选了7套别墅,建回家一定会让你的邻居嫉妒的。
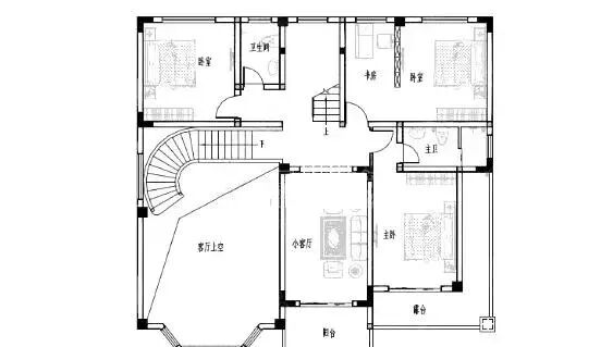
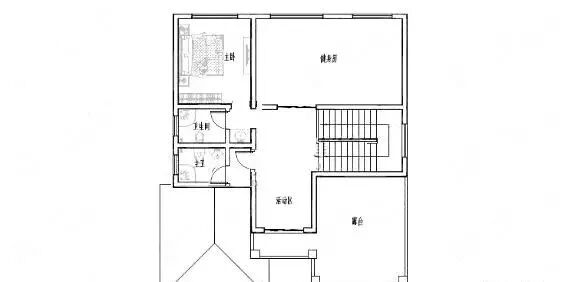
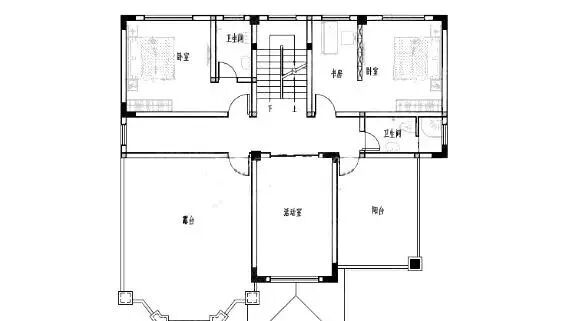
户型一
开间:12.9米
进深:12米
占地面积:160.83平方米
建筑面积:477.39平方米
层数:三层

设计功能
一 层:门厅、客厅(中空)、卧室(附卫生间)、卧室、棋牌室、厨房、餐厅、卫生间
二 层:主卧(附书房,衣帽间,卫生间,阳台,露台)、卧室(附书房)、卧室、卫生间
三 层:健身房(附储藏间)、卧室(附露台)、卧室(附书房)、卧室、卫生间、露台



户型二
开间:10.6米
进深:14.62米
占地面积:149.18平方米
建筑面积:391.43平方米
层数:三层

设计功能
一 层:门厅、客厅、卧室(附卫生间)、卧室、厨房、餐厅、卫生间
二 层:客厅、茶厅、卧室(附卫生间,阳台)、卧室(附书房)、卧室、卫生间
三 层:卧室(附卫生间)、健身房、卫生间、露台



户型三
层数:三层
开间:14米
进深:13.8米
占地面积:196.66平方米
建筑面积:434.81平方米

设计功能
一 层:走廊、堂屋、客厅(中空)、会客室(附内阳台)、卧室(附卫生间)、厨房、餐厅、卫生间
二 层:小客厅(附阳台)、卧室(附卫生间,露台)、卧室(附书房)、卧室、卫生间
三 层:活动室、卧室(附卫生间)、卧室(附书房)、卫生间、阳台、露台



户型四

开间:13.6米
进深:8米(含门柱进深9.8米)
占地面积:106.12平方米
总建筑面积:216.68平方米
层数:二层

户型五

开间:12.1米
进深:7.8米
占地面积:94.38平方米
建筑面积:198.42平方米
层数:二层

户型六

开间:11米
进深:11米(总尺寸是12米X12米)
占地面积:123平方米
建筑面积:297平方米
层数:三层

户型七

开间:10米
进深:10米
占地面积:96平方米
总建筑面积:175平方米
层数:二层

这样的别墅,随便一套建回家去,肯定会成为全村的亮点。

