卧 室
效果图
基本信息
占地尺寸:17.3x13.10米
占地面积:196平方米
建筑面积:348平方米
主体结构:装配式轻钢结构

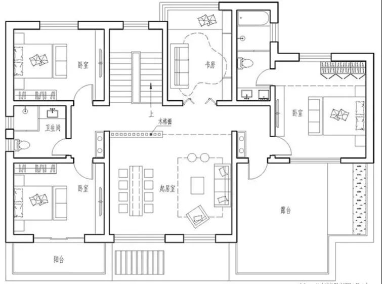
平面布局
一层设小院子、客厅、餐厅、厨房、三间卧室、两间卫生间。

二层为主要的居住空间设健身房,书房、3个卧室、2间卫生间、1个阳台,一个露台。

装修参考图
卧 室
书 房
餐 厅
健身房
浴 室