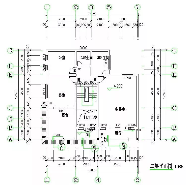
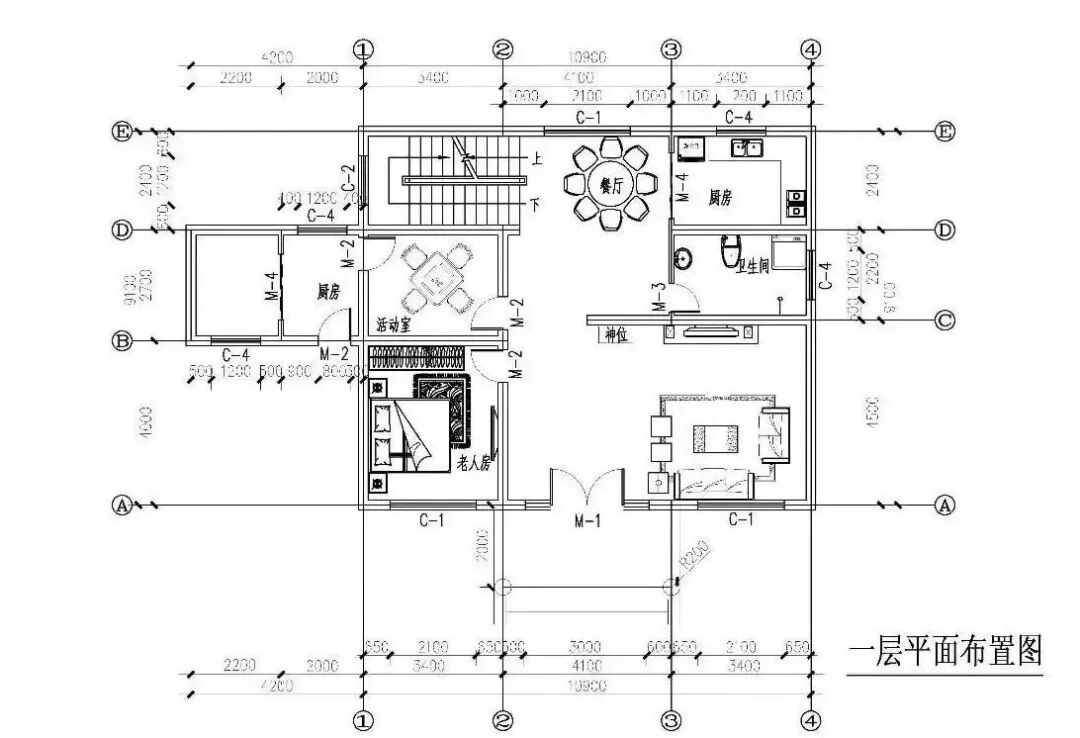
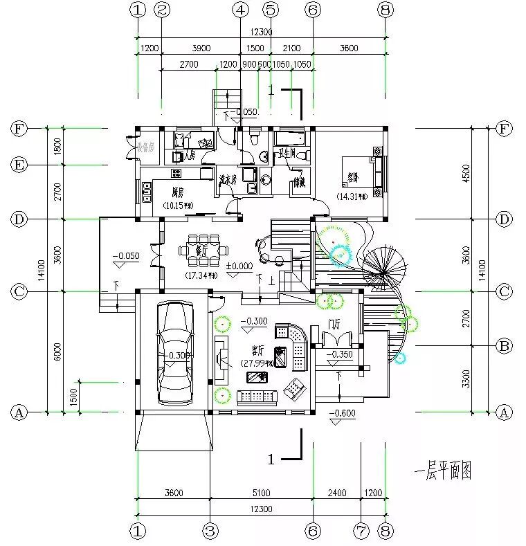
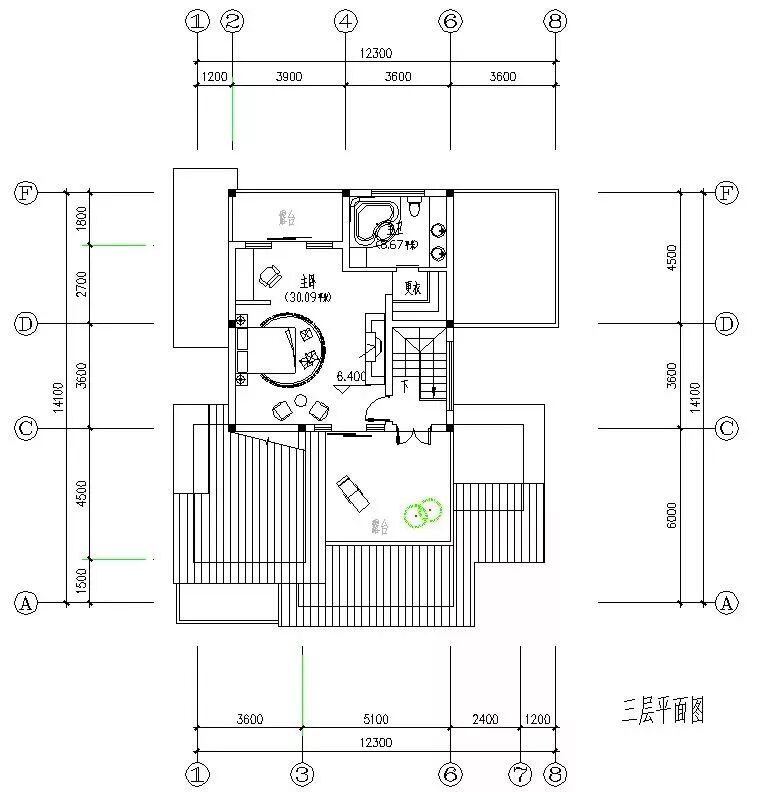
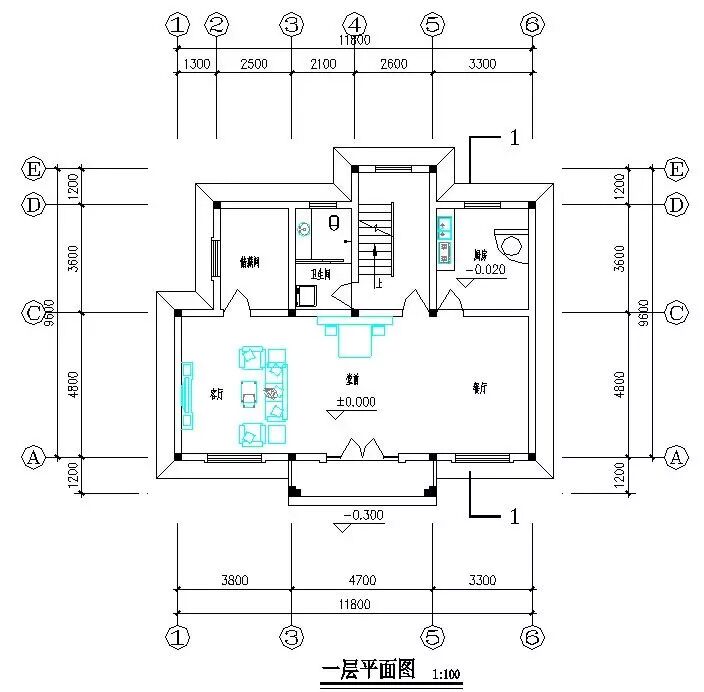
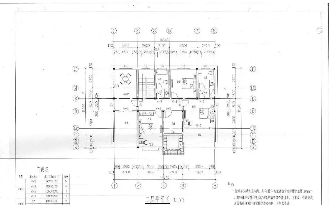
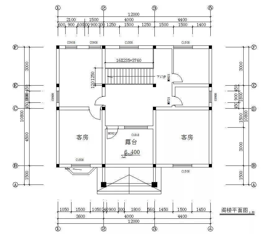
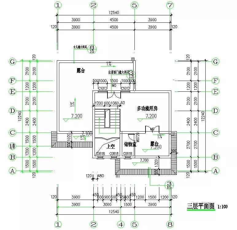
【户型】惊艳全村!经典风格的8款自建别墅独树一帜

1







2







3







4



5



6



7



8





点我咨询留下您的需求,我会第一时间回复您!
点我咨询


上一篇:等我老了就这样建房!这9款二层自建别墅经典永流传
下一篇:6款现代简约的轻钢别墅户型图分享!