6款现代简约的轻钢别墅户型图分享!
01
<<向左滑动<<
基本信息
占地尺寸:10.1mx9.32m
建筑面积:168㎡
建筑层数:2层
建筑结构:装配式轻钢结构
平面布局:一层平面布局:门厅x1、厨房x1、客厅x1、餐厅x1、卫生间x1、卧室x1。
二层平面布局:休息间x1、卧室x2、卫生间x2、书房x1、露台x1。
02
<<向左滑动<<
基本信息
占地尺寸:14.7mx10.3m
建筑面积:320.8㎡
建筑层数:2层
建筑结构:装配式轻钢结构
平面布局:一层:卧室x3、餐厅x1、厨房x1、客厅x1、卫生间x1。
二层:卧室x4、起居室x1、棋牌室x1、卫生间x3、书房x1、露台x1。
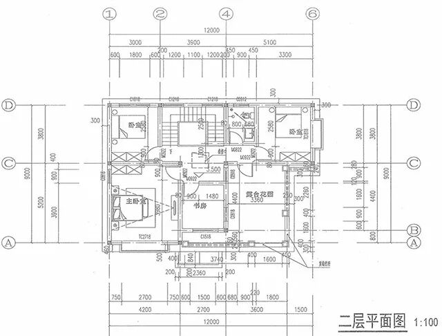
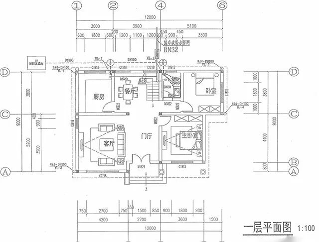
03
<<向左滑动<<
基本信息
占地尺寸:12mx9m
建筑面积:184.67㎡
建筑层数:2层
建筑结构:装配式轻钢结构
平面布局:一层:卧室x2、餐厅x1、厨房x1、客厅x1、卫生间x1。
二层:卧室x3、卫生间x1、书房x1、露台花园x1。
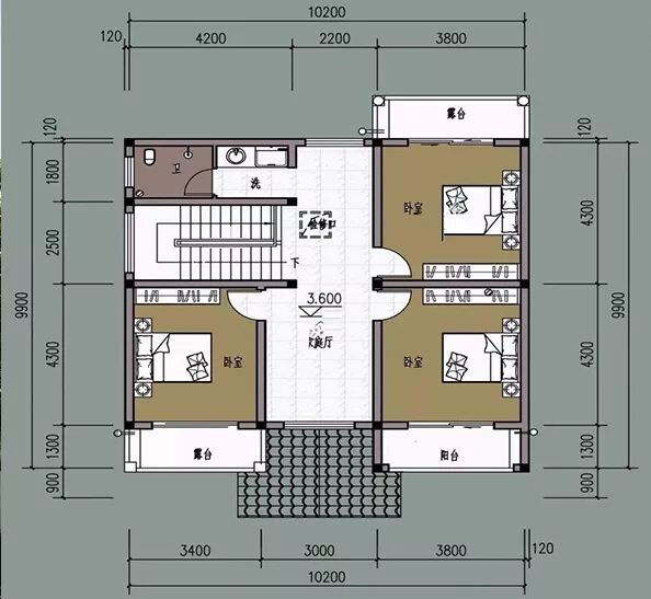
04
<<向左滑动<<
基本信息
占地尺寸:10.2mx9.9m
建筑面积:206㎡
建筑层数:2层
建筑结构:装配式轻钢结构
平面布局:一层:卧室x1、餐厅x1、厨房x1、客厅x1、卫生间x1。
二层:卧室x3、卫生间x1、客厅x1、露台x2。
05
<<向左滑动<<
基本信息
占地尺寸:11.1mx11.1m
建筑面积:196.7㎡
建筑层数:2层
建筑结构:装配式轻钢结构
平面布局:一层:卧室x2、餐厅x1、厨房x1、客厅x1、卫生间x2。
二层:主卧、儿童房、书房、卫生间、储物间、露台。
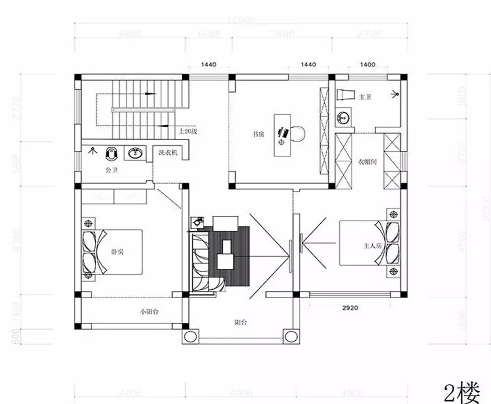
06
<<向左滑动<<
基本信息
占地尺寸:12mx10.9m
建筑面积:323.45㎡
建筑层数:3层
建筑结构:装配式轻钢结构
平面布局:一层:卧室x1、餐厅x1、厨房x1、客厅x1、卫生间x1。
二层:主卧x1、次卧x1、书房x1、客厅x1、卫生间x2、衣帽间x2、阳台x2。
三层:卧室x2、卫生间x2、衣帽间、大阳台。
End

