美哭了!这6款自建别墅美观大气,建一栋生活美滋滋
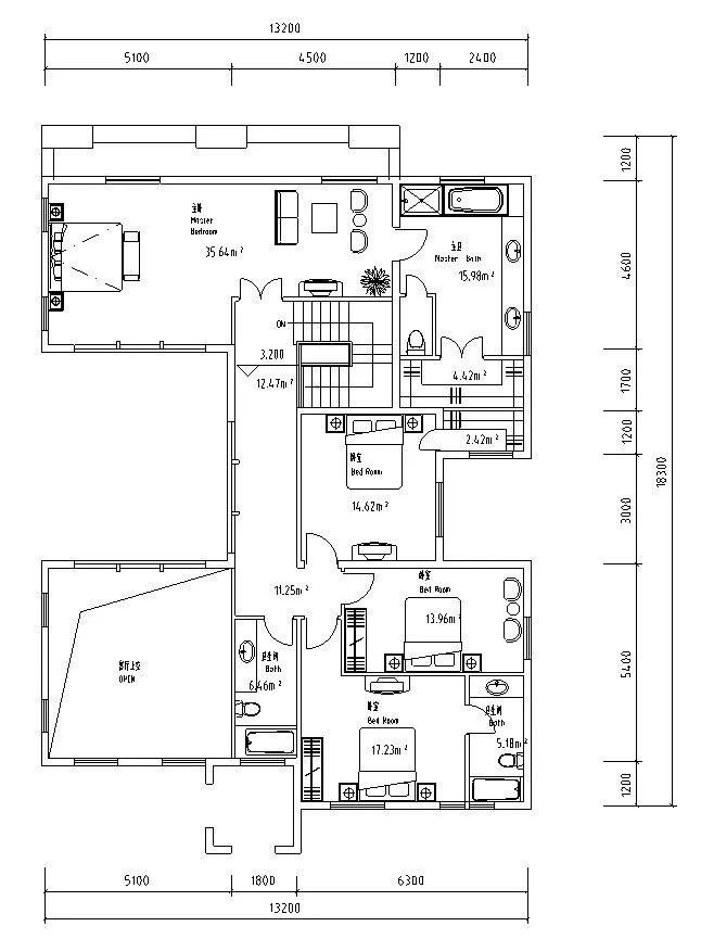
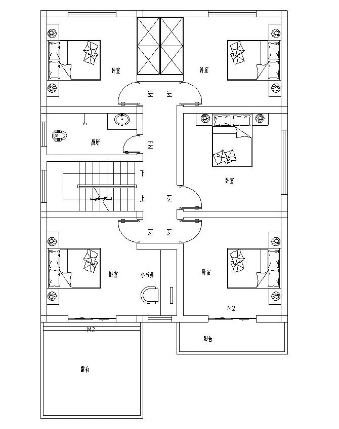
开间:13.2米
进深:18.3米
占地面积:230.6平方米
建筑面积:592.9平方米
楼层:2层+地下室
结构:框架结构
屋顶形式:坡屋顶

开间:10.5米
进深:12.3米
占地面积:129.15平方米
建筑面积:356平方米
建筑高度:12米
开间:7米
进深:16.2米
占地面积:113.4平方米
建筑面积:302.6平方米
建筑高度:12.67米
开间:13.5米
进深:11.8米
占地面积:140.7平米
建筑面积:280.4平米
建筑高度:7.1米
开间:9米
进深:15米
占地面积:135平方米
建筑面积:340平方米
建筑层数:3层
建筑高度:11米
面宽:14.1米
进深:11.7米
总建筑面积:311.36平米
占地面积:135.26平米
建筑檐口高度:9.6米
点我咨询留下您的需求,我会第一时间回复您!
点我咨询

