今生搏一回!5款轻钢别墅华美典雅,读得懂您想要的生活

01


02


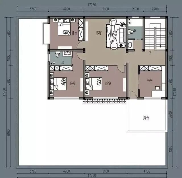
03


04


05

如需了解更多
请扫下方二维码
正规轻钢厂家
↓ ↓ ↓ ↓ ↓


上一篇:心动的感觉!5套轻钢别墅美得出众,建栋成为别人眼中的风景
下一篇:88套轻钢别墅效果图,你看上哪一款?