眼光毒辣!7款三层别墅都是潜力股,建一栋不输欧美国家
01
占地尺寸:14.5米×14.37米
占地面积:208平方米
建筑面积:589平方米
层数:3层



02
占地尺寸:14.6米×9.2米
占地面积:134平方米
建筑面积:300平方米
层数:3层



03
占地尺寸:17.2米×12.2米
占地面积:210平方米
建筑面积:400平方米
层数:2层



04
占地尺寸:12米×10.8米
占地面积:126平方米
建筑面积:250平方米
层数:2层



05
占地尺寸:15.3米×10.8米
占地面积:158平方米
建筑面积:390平方米
层数:3层



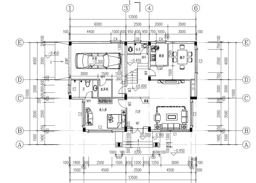
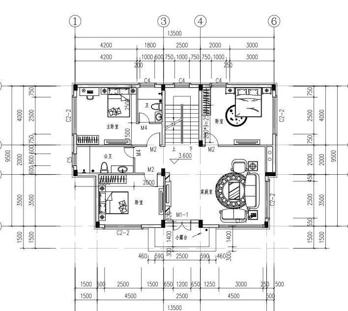
06
占地尺寸:13.5米×11米
占地面积:148平方米
建筑面积:329平方米
层数:3层



07
占地尺寸:9.9米×13米
占地面积:128平方米
建筑面积:280平方米
层数:三层




