这样的别墅相当霸气!5款独栋别墅藏着父母向往的生活
现代节奏太快了,所以很多人向往诗和远方的生活,特别是操劳了一辈子的父母,奔波半生,就想着以后能回到家乡,建一栋别墅,面上有光,白天弄弄花草,浇浇蔬菜,朋友上门把就在客厅谈笑风生,晚上共赏繁星,回忆往昔,惬意生活,从此刻开始。
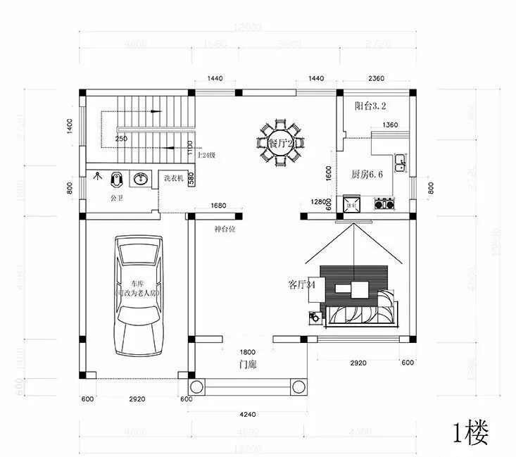
NO.1
别墅占地:9.8mX13.8m
占地面积:116.8㎡
建筑面积:435.3㎡

NO.2
别墅占地:13.2mX16.8m
占地面积:181.93㎡
建筑面积:181.98㎡

NO.3
占地尺寸:12x12.8米
占地面积:162平方米
建筑面积:420平方米
建筑结构:框架结构





NO.4
占地尺寸:16.2米*10.67米
占地面积:178.56平方米
建筑面积:357.12平方米




NO.5
占地尺寸:12米,进深:10.9米
占地面积:120平方米
建筑面积:323.45平方米






