5款二层别墅璀璨夺目,建一栋风光无限
01
占地尺寸:16.8*13.4米
占地面积:225.12平方米
建筑面积:450.24平方米
结构类型:框架结构
建筑层数:2层



02
开间:13.5米
进深:12米
占地面积:139.66平米
建筑面积:275.87平米



03
开间:15.2米
进深:15.7米
占地面积:238平方米
建筑面积:344平方米
建筑层数:2层



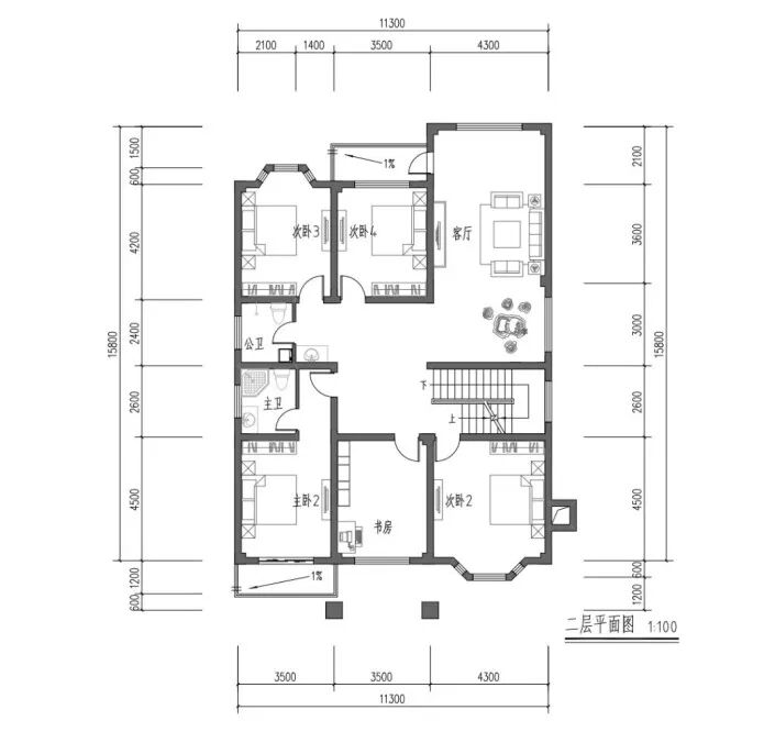
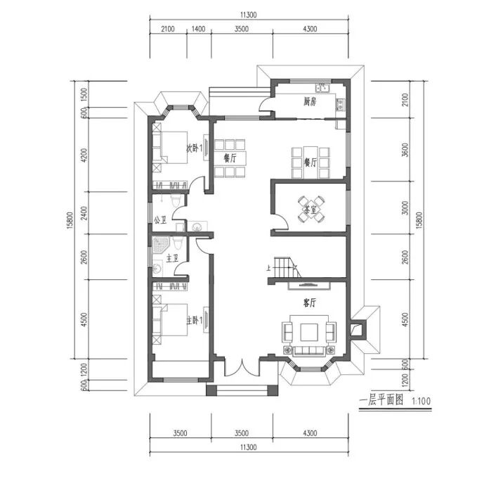
04
开间:11.3米
进深:15.8米
占地面积:178平方米
建筑面积:356平方米
建筑层数:2层



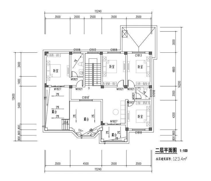
05
开间:12.24m
进深:11.84m
占地面积:136.14㎡
建筑面积:239.2㎡



